Bénéficiez des services de nos partenaires locaux soigneusement sélectionnés
pour vous accompagner dans votre parcours d'achat immobilier

Vente appartement t3 dernier étage ajaccio

— Ajaccio 20000 —
285 000 €
70 m²
3 pièces
balcon/terrasse

Nos partenaires locaux
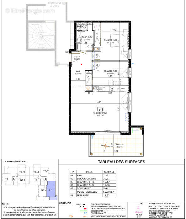
L'agence STG IMMOBILIER vous propose cet appartement T3 situé dans une résidence sécurisée à Ajaccio sur le secteur d'alzo di leva en retrait de la rocade, à seulement trois minutes en voiture du centre Ville d'Ajaccio
Cet appartement se situe au 6ème et dernier étage avec ascenseur.
Il bénéficie d'une belle luminosité de part son exposition Est.
D'une surface de 69,70 m2, il se compose comme suit:
-Un hall d'entrée, un séjour d'environ 30 m2, une cuisine ouverte de 12,40 m2, deux chambres de 15,17 m2 et 11,06 m2 avec placards, une salle d'eau et un WC indépendant.
-Une terrasse de 13,32 m2 côté séjour.
Un garage en sous-sol complète ce lot.
Cette résidence est idéale pour les personnes qui souhaitent vivre à la campagne tout en restant proche du centre ville et des commerces.
Prestations : double vitrage ; climatisation et convecteurs ; cumulus ; volets roulants électriques ; WC suspendu
Cet appartement vous intéresse ? Contactez Maxime CANAVAGGIO au [Coordonnées masquées] / [Coordonnées masquées]
Voir plus

Barème des honoraires
DPE
A
B
C
D
E
F
G
GES
A
B
C
D
E
F
G

Prêt immobilier

Vous souhaitez connaître votre capacité d’emprunt et trouver le meilleur crédit immobilier ?
Réaliser une simulation gratuite

Appartement à AJACCIO
Appartement à AJACCIO
Appartement à AJACCIO
Appartement à AJACCIO
Appartement à AJACCIO
Appartement à AJACCIO
Appartement à AJACCIO
Ce site est protégé par reCAPTCHA la Politique de confidentialité et les Conditions d’utilisation de Google s’appliquent.
Obtenir un prêt immobilier au meilleur taux ?

En poursuivant votre navigation sans modifier vos paramètres, vous acceptez l'utilisation de cookies susceptibles de réaliser des statistiques de visite. Cliquez ici pour plus d'informations