Bénéficiez des services de nos partenaires locaux soigneusement sélectionnés
pour vous accompagner dans votre parcours d'achat immobilier

Francheville - bureau/entrepôt en plateau - 128m2 - jardin & stationnement

— Francheville 69340 —
190 000 €
128 m²
1 pièce

Nos partenaires locaux
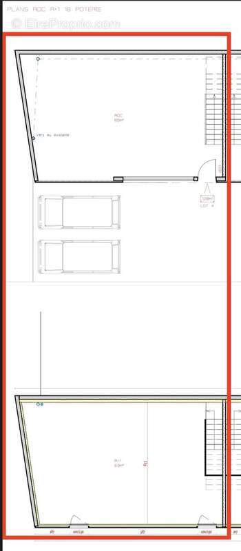
Hamac Immobilier est ravi de vous présenter un plateau à rénover idéalement situé dans un emplacement stratégique de Francheville, offrant un espace de 128m2, parfait pour un usage professionnel. Ce plateau sur deux niveaux en duplex présente un potentiel remarquable pour la création d'un bureau fonctionnel ou d'un espace de stockage avec bureau intégré.

La propriété comprend un rez-de-chaussée de 65m2 et un étage de 63m2, à aménager selon vos besoins spécifiques. Bien que la configuration puisse varier, un espace de stockage au rez-de-chaussée et un bureau à l'étage semblent être des options privilégiées. Les parties communes seront neuves, mais l'intérieur nécessitera une optimisation selon vos préférences.

Sa position stratégique à proximité de toutes les commodités et des commerces locaux facilite l'accessibilité pour vos activités professionnelles. De plus, son exposition est-ouest garantit une luminosité naturelle optimale tout au long de la journée, offrant ainsi un environnement de travail agréable.

Cette propriété représente une opportunité intéressante pour les entreprises cherchant un espace adaptable à leurs besoins spécifiques. Que vous souhaitiez établir un siège social, des bureaux supplémentaires ou un espace de stockage, ce plateau à rénover offre une toile vierge pour concrétiser votre vision professionnelle.

Le plateau est équipé de réseaux en attente, et un marché travaux est disponible sur demande, avec l'appui d'un maître d'œuvre pour le suivi du chantier.

Deux places de stationnement privatives viennent compléter cet ensemble.

Tous les travaux de gros œuvre, de façade, des parties communes et de la toiture sont à la charge du vendeur.

N'hésitez pas à contacter Romain Monneri Fons, Directeur d'agence, au [Coordonnées masquées] pour organiser une visite et découvrir par vous-même les nombreux avantages de ce plateau !

La présente annonce immobilière a été rédigée sous la responsabilité éditoriale de Monsieur Monneri-Fons Romain conseiller en immobilier indépendant (sans détention de fonds), agent commercial de la SAS Hamac Investissement & Patrimoine immatriculé au RSAC de LYON sous le numéro 843 309 899
Voir plus

Référence: 84468565
Barème des honoraires

Prêt immobilier

Vous souhaitez connaître votre capacité d’emprunt et trouver le meilleur crédit immobilier ?
Réaliser une simulation gratuite

Commerce à FRANCHEVILLE
Commerce à FRANCHEVILLE
Commerce à FRANCHEVILLE
Ce site est protégé par reCAPTCHA la Politique de confidentialité et les Conditions d’utilisation de Google s’appliquent.
Obtenir un prêt immobilier au meilleur taux ?

En poursuivant votre navigation sans modifier vos paramètres, vous acceptez l'utilisation de cookies susceptibles de réaliser des statistiques de visite. Cliquez ici pour plus d'informations