Appartement neuf avec garage et jardin

— Cabestany 66330 —
261 000 €
3 pièces
parkingjardin

Efficac'Immo vous propose :

ACHEVÉ ET DISPONIBLE !

Appartement T3 neuf avec frais de notaire réduits, RE2020, garanties décennales et dommage ouvrage !

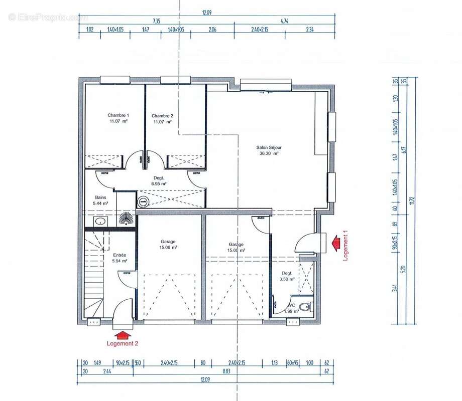
Dans un quartier calme sur Cabestany, cet appartement T3 en 3 faces, d'une superficie totale de 91.32m2 en rez-de-chaussée avec garage privé et jardin.

Il se compose comme suit :

Un grand salon/séjour avec un espace cuisine ouvert, l'ensemble donnant sur le jardin de 140m2.

Une salle d'eau avec douche à l'italienne, deux chambres de 11m2, wc indépendant et un garage de 15m2.

Climatisation réversible gainable Bi-Zone
Récupérateur d'eau enterré

Pas de frais de copropriété, il s'agit d'une maison individuelle construction 2024 divisée en deux logements.

Swann VELLARD, votre conseillère Efficac'Immo immatriculée au RSAC de PERPIGNAN sous le numéro 900 140 559.
Les informations sur les risques auxquels ce bien est exposé sont disponibles sur le site Géorisques:
www.georisques.gouv.fr
Voir plus

Référence: 85581544
Barème des honoraires
DPE
A
B
C
D
E
F
G

Prêt immobilier

Vous souhaitez connaître votre capacité d’emprunt et trouver le meilleur crédit immobilier ?
Réaliser une simulation gratuite

Appartement à CABESTANY
Appartement à CABESTANY
Appartement à CABESTANY
Appartement à CABESTANY
Appartement à CABESTANY
Appartement à CABESTANY
Appartement à CABESTANY
Appartement à CABESTANY
Appartement à CABESTANY
Appartement à CABESTANY
Appartement à CABESTANY
Appartement à CABESTANY
Appartement à CABESTANY
Appartement à CABESTANY
Appartement à CABESTANY
Appartement à CABESTANY
Appartement à CABESTANY
Ce site est protégé par reCAPTCHA la Politique de confidentialité et les Conditions d’utilisation de Google s’appliquent.
Obtenir un prêt immobilier au meilleur taux ?

En poursuivant votre navigation sans modifier vos paramètres, vous acceptez l'utilisation de cookies susceptibles de réaliser des statistiques de visite. Cliquez ici pour plus d'informations