Appartement de 92 m2 avec terrasse, garage, cave

— Gigean 34770 —
200 000 €
92 m²
4 pièces
parkingbalcon/terrasse

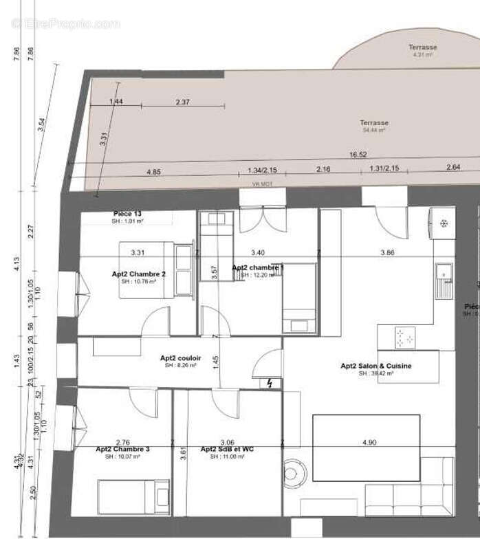
Situé au premier et dernier étage d’une maison divisée en 3 lots, cet appartement de 92 m2 séduit par sa luminosité, son calme et son potentiel d’aménagement. Les atouts du bien : Spacieuse pièce de vie de 40 m2, chaleureuse et baignée de lumière Accès direct sur une terrasse de 30 m2, parfaite pour profiter des beaux jours Trois chambres confortables, idéales pour une vie de famille Grande salle de bain avec douche Offrant un espace supplémentaire à aménager selon vos besoins Annexes et stationnement : Garage fermé de 23 m2 Place de stationnement privative Cave privative Emplacement privilégié, en plein cœur de Gigean, à deux pas des commerces, des écoles et des accès autoroutiers.
Des travaux seront nécessaires pour que l’appartement corresponde pleinement aux plans.
Voir plus

Bien en copropriété.
Barème des honoraires
DPE
A
B
C
D
E
F
G
GES
A
B
C
D
E
F
G

Prêt immobilier

Vous souhaitez connaître votre capacité d’emprunt et trouver le meilleur crédit immobilier ?
Réaliser une simulation gratuite

Appartement à GIGEAN
Appartement à GIGEAN
Appartement à GIGEAN
Appartement à GIGEAN
Appartement à GIGEAN
Appartement à GIGEAN
Appartement à GIGEAN
Appartement à GIGEAN
Appartement à GIGEAN
Appartement à GIGEAN
Appartement à GIGEAN
Ce site est protégé par reCAPTCHA la Politique de confidentialité et les Conditions d’utilisation de Google s’appliquent.
Obtenir un prêt immobilier au meilleur taux ?

En poursuivant votre navigation sans modifier vos paramètres, vous acceptez l'utilisation de cookies susceptibles de réaliser des statistiques de visite. Cliquez ici pour plus d'informations