Bénéficiez des services de nos partenaires locaux soigneusement sélectionnés
pour vous accompagner dans votre parcours d'achat immobilier

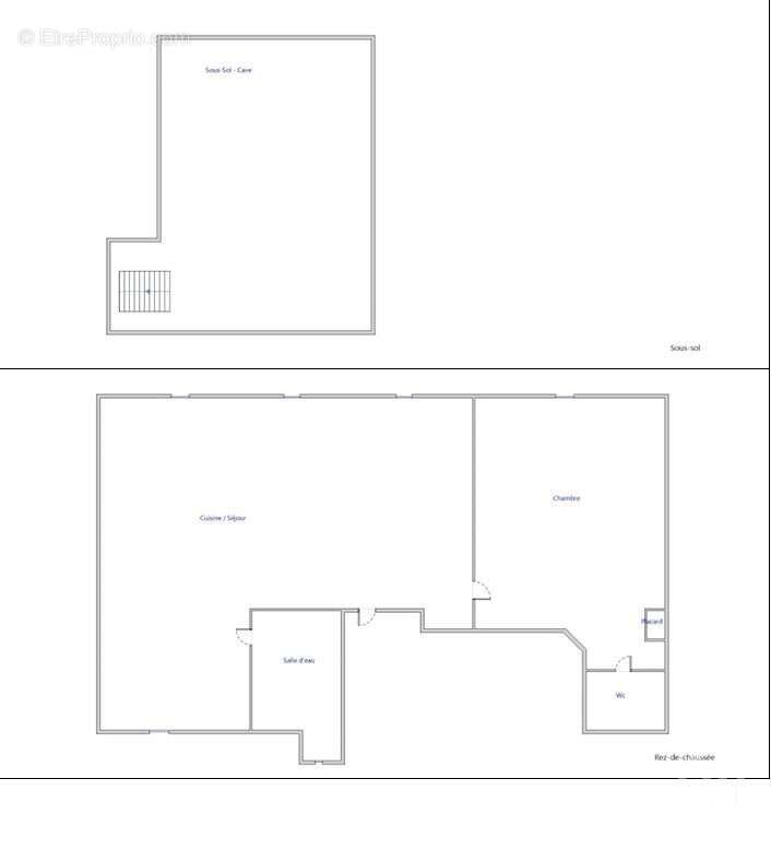
Maison 132m² à saint-soupplets

— Saint-Soupplets 77165 —
250 000 €
133 m² / 150 m²
5 pièces

Nos partenaires locaux
Maison ancienne divisée en 2 logements En plein centre ville rente des loyer 1500 euros pour les deux. Au RDC: (une entrée commune pour les deux logements) F2 composé comme suit: une entrée, une belle pièce principale très lumineuse, une cuisine ouverte aménagée et équipée, une salle d'eau, une grande chambre un wc . A l'étage: F4 composé commue suit: une entrée donnant sur une grande cuisine aménagée équipée, un séjour. Une salle d'eau, une chambre, un wc. Au second étage: un palier deux chambres.. Chauffage par clim neuve. Pour de plus amples renseignements contacter nathalie au [Coordonnées masquées]La commune de SAINT-SOUPPLETS se situe à 18km de l'aéroport de ROISSY CHARLES DE GAULLE, à 12km de la gare de MEAUX, à 8km de la gare du PLESSIS-BELLEVILLE, axe directe vers la RN2 et RN3, à 45km de PARIS. Sur place vous trouverez l'école maternelle du Parc du Château de Maulny, l'école élémentaire HENRY CAROLY et le collège NICOLAS TRONCHON. Des commerces : tabac/presse, boulangerie, pharmacie, centre commercial CARREFOUR MARKET, coiffeur, fleuriste, poste, sitis market épicerie, Rungis destock, Stock privée, NOZ, optic, barber, le code, Wilson (sandwicherie)Les transports KEOLIS : 7[Coordonnées masquées]4-715-753-67 et FILEO Un cabinet médical : médecins, podologue, ostéopathe, infirmiers, dentiste, pharmacien, kinésithérapeutes. Une maison de retraite médicalisée. Associations sportives : danse, judo, musique, tennis, foot, gymnastique, hand.Banques : CREDIT AGRICOLE, SOCIETE GENERALE.
Voir plus

Référence: 2046
Honoraires à la charge du vendeur.
Barème des honoraires
DPE
A
B
C
D
E
F
G
GES
A
B
C
D
E
F
G

Prêt immobilier

Vous souhaitez connaître votre capacité d’emprunt et trouver le meilleur crédit immobilier ?
Réaliser une simulation gratuite

Maison à SAINT-SOUPPLETS
Maison à SAINT-SOUPPLETS
Maison à SAINT-SOUPPLETS
Maison à SAINT-SOUPPLETS
Maison à SAINT-SOUPPLETS
Maison à SAINT-SOUPPLETS
Maison à SAINT-SOUPPLETS
Maison à SAINT-SOUPPLETS
Ce site est protégé par reCAPTCHA la Politique de confidentialité et les Conditions d’utilisation de Google s’appliquent.
Obtenir un prêt immobilier au meilleur taux ?

En poursuivant votre navigation sans modifier vos paramètres, vous acceptez l'utilisation de cookies susceptibles de réaliser des statistiques de visite. Cliquez ici pour plus d'informations