Bénéficiez des services de nos partenaires locaux soigneusement sélectionnés
pour vous accompagner dans votre parcours d'achat immobilier

* exclusivite * local commercial disponible à la vente * vendu loue * reichshoffen !

— Reichshoffen 67110 —
89 800 €

Nos partenaires locaux
** EXCLUSIVITÉ - VENTE - REICHSHOFFEN **

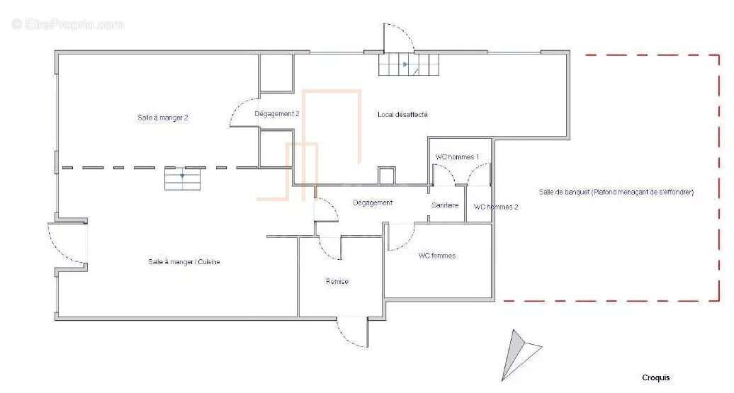
Dans le dynamique village de Reichshoffen - venez découvrir ce local présentant une surface au sol de 133.90 m² - de type restauration - situé au bord d'une route passante !


En franchissant la porte, vous découvrirez:

- une 1ère salle à manger de 43.75 m² avec bar et comptoir.
- une seconde salle située en hauteur, de 25.25 m².
- une remise de 6.25 m².
- des WC Hommes et Femmes.

Une dernière pièce de 33.95 m² à l'arrière du local, vient compléter la surface du bien, atteignant 99.95 m² (loi carrez).


Le local est actuellement loué à 800 €/mois depuis le 28 Septembre 2018.

Aucun retard de paiement - loyers à jour !



Vous l'aurez compris, ce local déjà loué, possède de réels atouts dans un village très convoité.


Pour davantage d'informations, n'hésitez pas à me contacter pour prévoir une visite à votre convenance:
SARL NEO CONCEPT IMMOBILIER - RCS Strasbourg TI 788 575 652 - N° Carte pro : CPI 67[Coordonnées masquées]30 235 délivrée par la CCI du Bas-Rhin - RCP : Generali 2 rue Pillet-Will 75009 PARIS - Transaction : Non détention de fonds

Maxime BRENNER, Conseiller en Immobilier- Entrepreneur individuel RSAC 877 794 412 -
Tél: [Coordonnées masquées]
Mail: [Coordonnées masquées]
Voir plus

Référence: 85320469

Prêt immobilier

Vous souhaitez connaître votre capacité d’emprunt et trouver le meilleur crédit immobilier ?
Réaliser une simulation gratuite

Commerce à REICHSHOFFEN
Commerce à REICHSHOFFEN
Commerce à REICHSHOFFEN
Commerce à REICHSHOFFEN
Commerce à REICHSHOFFEN
Commerce à REICHSHOFFEN
Commerce à REICHSHOFFEN
Commerce à REICHSHOFFEN
Commerce à REICHSHOFFEN
Commerce à REICHSHOFFEN
Commerce à REICHSHOFFEN
Commerce à REICHSHOFFEN
Ce site est protégé par reCAPTCHA la Politique de confidentialité et les Conditions d’utilisation de Google s’appliquent.
Obtenir un prêt immobilier au meilleur taux ?

En poursuivant votre navigation sans modifier vos paramètres, vous acceptez l'utilisation de cookies susceptibles de réaliser des statistiques de visite. Cliquez ici pour plus d'informations