Bénéficiez des services de nos partenaires locaux soigneusement sélectionnés
pour vous accompagner dans votre parcours d'achat immobilier

Appartement marseille 4 pièce(s) avec balcon et stationnement - st henri - vue mer

— Marseille-16e 13016 —
184 000 €
61 m²
4 pièces
parkingbalcon/terrasse

Nos partenaires locaux
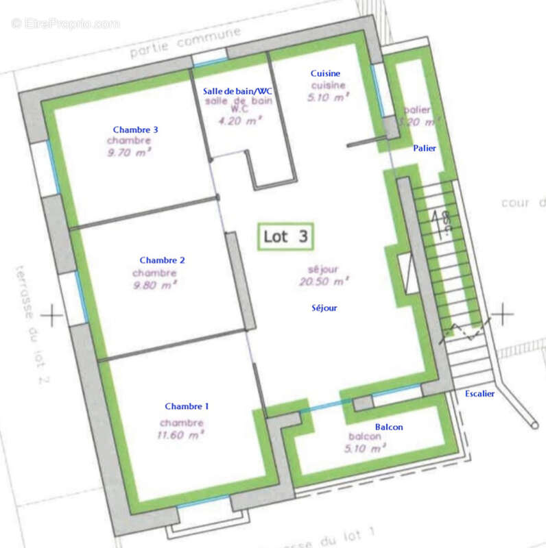
T4 avec balcon et stationnement - St Henri - vue mer Idéal pied-à-terre, investissement locatif ou premier achat L'appartement développe 60,90 m² habitables et se compose ainsi : Une entrée ouvrant sur une pièce de vie lumineuse, Une cuisine séparée, Trois chambres, Une salle d'eau avec WC. Environnement Saint-Henri, véritable village dans la ville, ambiance paisible. Proche de la mer, des commerces, restaurants, marchés, écoles et des accès autoroutiers. LES POINTS FORTS : -Un balcon de 5,10m2, idéal pour profiter du soleil, -Une vue mer depuis l'appartement et le balcon, -Deux places de stationnement privatives, -Calme absolu, -Belle exposition, -Appartement à rafraîchir, vous permettant de le personnaliser à votre goût, -Petite copropriété sans charges lourdes. Mentions légales DPE : non soumis au DPE car pas de mode de chauffage. Bien en copropriété. Montant annuel des charges : 0 euros. Nombre de lots : 6 (3 logements et 3 places de parking). Prix de vente : 195 000 euros frais d'agence inclus. Honoraires charge vendeur. RCS 982 785 834 Marseille Les informations sur les risques auxquels ce bien est exposé sont disponibles sur le site Géorisques : www.georisques.gouv.fr Bénéficiez d'un accès complet et exclusif à toutes les photos, descriptif détaillé du bien ou encore informations sur le quartier directement sur notre site internet www.aixty.com ! Copropriété de 6 lots ().
Voir plus

Référence: 0085
Bien en copropriété. Nombre de lots : 6.
Honoraires à la charge du vendeur.
Barème des honoraires

Prêt immobilier

Vous souhaitez connaître votre capacité d’emprunt et trouver le meilleur crédit immobilier ?
Réaliser une simulation gratuite

Appartement à MARSEILLE-16E
Appartement à MARSEILLE-16E
Appartement à MARSEILLE-16E
Appartement à MARSEILLE-16E
Appartement à MARSEILLE-16E
Appartement à MARSEILLE-16E
Appartement à MARSEILLE-16E
Appartement à MARSEILLE-16E
Appartement à MARSEILLE-16E
Appartement à MARSEILLE-16E
Appartement à MARSEILLE-16E
Appartement à MARSEILLE-16E
Appartement à MARSEILLE-16E
Appartement à MARSEILLE-16E
Appartement à MARSEILLE-16E
Appartement à MARSEILLE-16E
Appartement à MARSEILLE-16E
Appartement à MARSEILLE-16E
Ce site est protégé par reCAPTCHA la Politique de confidentialité et les Conditions d’utilisation de Google s’appliquent.
Obtenir un prêt immobilier au meilleur taux ?

En poursuivant votre navigation sans modifier vos paramètres, vous acceptez l'utilisation de cookies susceptibles de réaliser des statistiques de visite. Cliquez ici pour plus d'informations