Appartement

— Nice 06300 —
210 000 €
96 m²
5 pièces
balcon/terrasseascenseur

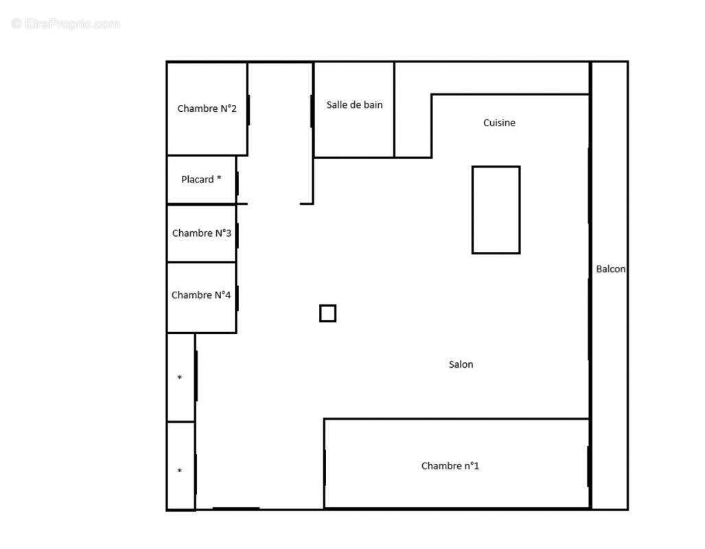
06300 - L'ARIANE - 5 PIÈCES - 96.0 M² - TRAVERSANT - VUE DÉGAGÉE - CAVE

Efficity, l'agence qui estime votre bien en ligne, vous propose ce très joli appartement traversant situé dans le quartier de l'Ariane à Nice.
D'une surface de 96 m², ce bien se compose d'un spacieux salon, de quatre chambres lumineuses, d'un wc séparé, d'une cuisine équipée et d'une salle de bain moderne avec wc.
L'atout principal de cet appartement est son balcon de 23 m² offrant une vue imprenable sur le Paillon.
Idéalement situé à proximité immédiate du parc, des commerces, des écoles et des transports en commun, cet appartement saura vous séduire par son emplacement idéal.
Situé au 8ème et dernier étage, il bénéficie d'une vue dégagée dans un environnement calme et lumineux.
Une cave de 4 m² complète ce bien.

Possibilité de louer une place de parking dans l'immeuble.

Contactez-moi dès maintenant pour organiser une visite et laissez-vous charmer par ce très joli bien.
Les informations sur les risques auxquels ce bien est exposé sont disponibles sur le site Georisque : georisques. gouv. fr
Cyril Ecalle - EI - est Agent Commercial mandataire en immobilier, immatriculé au Registre Spécial des Agents Commerciaux du Tribunal de Commerce de Nice sous le n°919789800.
Siège social du mandant : effiCity, 48 avenue de Villiers - 75017 PARIS - Société par Actions Simplifiée, société au capital de 132 373,05 euros, immatriculée au RCS Paris 497 617 746 et titulaire de la Carte professionnelle CPI 75[Coordonnées masquées]02 025 - CCI Paris IDF - Caisse de Garantie : GALIAN Assurances 89 rue de la Boétie 75008 Paris
Voir plus

Référence: 191366
Bien en copropriété. Nombre de lots : 500. Charges de copropriété : 266 €.
Honoraires à la charge du vendeur.
Barème des honoraires
DPE
A
B
C
D
E
F
G
GES
A
B
C
D
E
F
G

Prêt immobilier

Vous souhaitez connaître votre capacité d’emprunt et trouver le meilleur crédit immobilier ?
Réaliser une simulation gratuite

Appartement à NICE
Appartement à NICE
Appartement à NICE
Appartement à NICE
Appartement à NICE
Appartement à NICE
Appartement à NICE
Ce site est protégé par reCAPTCHA la Politique de confidentialité et les Conditions d’utilisation de Google s’appliquent.
Obtenir un prêt immobilier au meilleur taux ?

En poursuivant votre navigation sans modifier vos paramètres, vous acceptez l'utilisation de cookies susceptibles de réaliser des statistiques de visite. Cliquez ici pour plus d'informations