Bénéficiez des services de nos partenaires locaux soigneusement sélectionnés
pour vous accompagner dans votre parcours d'achat immobilier

Appartement 62m² à rueil-malmaison

— Rueil-Malmaison 92500 —
320 000 €
62 m²
4 pièces
parking

Nos partenaires locaux
À vendre – Appartement 3 pièces (poss. 4) – 61,74 m² – Quartier Plateau, Rueil-Malmaison

À deux pas des commerces, des écoles recherchées et de l'écoquartier de l'Arsenal avec sa Grande Halle, ses boutiques et sa piscine, cet appartement bénéficie d'une excellente desserte en transports :

- Bus au pied de la résidence : 141 (15 min de La Défense, dessert les lycées Richelieu, Saint-Nicolas, Daniélou et Passy Buzenval), 241 (10-15 min du RER A de Rueil et de la Porte d'Auteuil), 263 (10 min du T2)
- À 10 minutes à pied de la future gare Rueil–Suresnes Mont-Valérien (Ligne 15 du Grand Paris)

Pour les familles, plusieurs crèches et écoles maternelles / primaires se trouvent à moins de 5 minutes à pied.

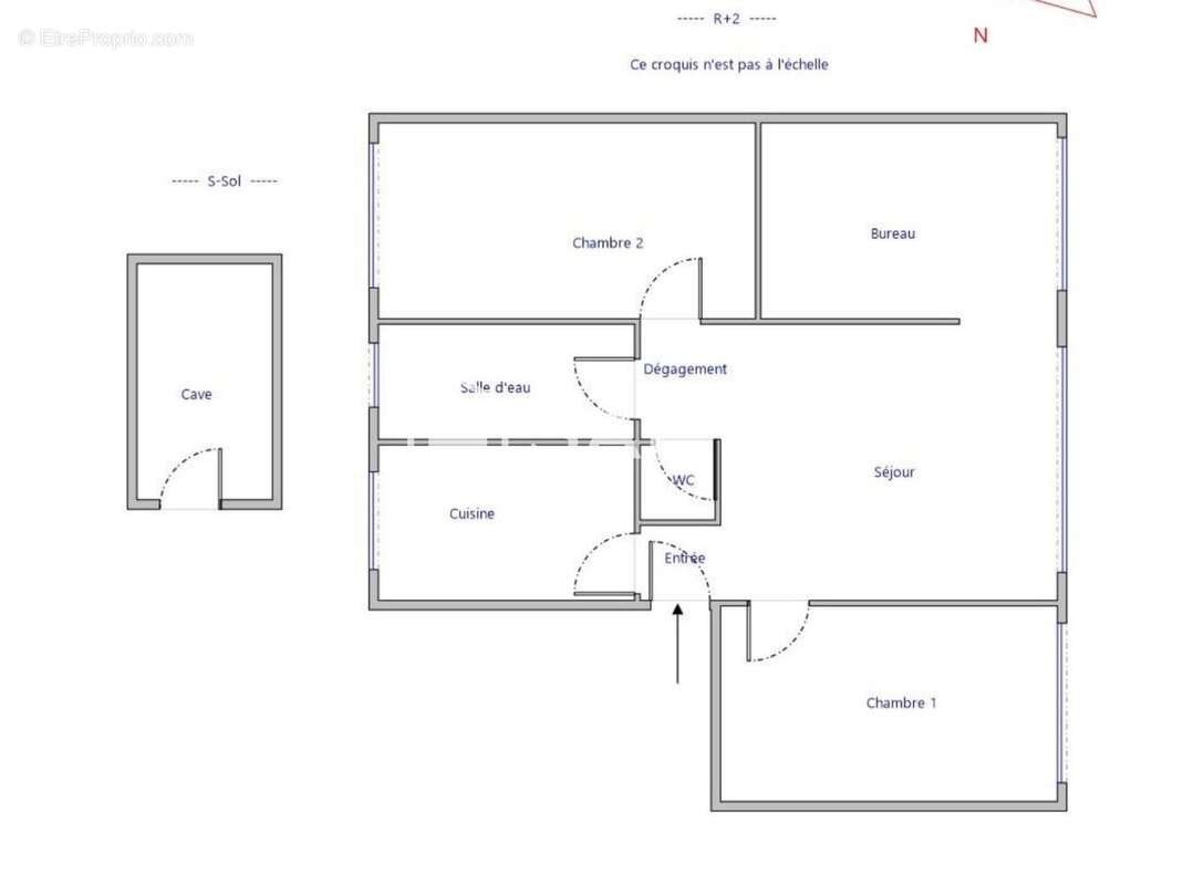
Situé au 2ème étage sur 4 d'une résidence arborée et bien entretenue avec gardien, cet appartement traversant de 61,74 m², orienté sud-ouest, offre une belle luminosité et une vue dégagée.

Il comprend un séjour spacieux, deux chambres (avec possibilité d'en créer une troisième ou d'opter pour un double séjour ou un bureau), une cuisine récente et équipée, une salle d'eau et des WC séparés. Les chambres disposent d'un parquet massif et les volets à projection permettent de moduler la lumière selon vos envies.

Le chauffage collectif au sol et au plafond par géothermie garantit un confort optimal en toute saison. Une grande cave, ainsi que la possibilité de stationner deux véhicules dans la résidence complètent ce bien.

En résumé, un appartement agréable à vivre, idéal pour une famille ou pour un projet évolutif dans un cadre agréable, au calme, avec tous les services à portée de main.

Le bien comprend 2 lots, et il est situé dans une copropriété de 258 lots (les charges courantes annuelles moyennes de copropriété sont de 3072 ¤ et le syndicat des copropriétaires ne fait pas l'objet d'une procédure citée à l'article L. 721-1 du code de la construction et de l'habitation).

Les informations sur les risques auxquels ce bien est exposé sont disponibles sur le site Géorisques : www.georisques.gouv.fr
Prix de vente : 320 000 ¤
Honoraires charge vendeur

Contactez votre conseiller SAFTI : Anastasia LAIDI-CORDA, Tél. : [Coordonnées masquées], E-mail : [Coordonnées masquées] - EI - Agent commercial immatriculé au RSAC de NANTERRE sous le numéro 839814001.
Informations LOI ALUR :
Soumis au régime de copropriété.
Nombre de lots : 258.
Quote part annuelle(moyenne) : 3072 euros.
Honoraires charge vendeur. (gedeon_26118_31722290)
Voir plus

Référence: 1513360
Bien en copropriété. Nombre de lots : 258. Charges de copropriété : 3072 €.
Honoraires à la charge du vendeur.
Barème des honoraires
DPE
A
B
C
D
E
F
G
GES
A
B
C
D
E
F
G

Prêt immobilier

Vous souhaitez connaître votre capacité d’emprunt et trouver le meilleur crédit immobilier ?
Réaliser une simulation gratuite

Photo 1 - Appartement à RUEIL-MALMAISON
Photo 1
Photo 2 - Appartement à RUEIL-MALMAISON
Photo 2
Photo 3 - Appartement à RUEIL-MALMAISON
Photo 3
Photo 4 - Appartement à RUEIL-MALMAISON
Photo 4
Photo 5 - Appartement à RUEIL-MALMAISON
Photo 5
Photo 6 - Appartement à RUEIL-MALMAISON
Photo 6
Photo 7 - Appartement à RUEIL-MALMAISON
Photo 7
Photo 8 - Appartement à RUEIL-MALMAISON
Photo 8
Ce site est protégé par reCAPTCHA la Politique de confidentialité et les Conditions d’utilisation de Google s’appliquent.
Obtenir un prêt immobilier au meilleur taux ?

En poursuivant votre navigation sans modifier vos paramètres, vous acceptez l'utilisation de cookies susceptibles de réaliser des statistiques de visite. Cliquez ici pour plus d'informations