Maison 126m² à quimper

— Quimper 29000 —
269 000 €
126 m² / 180 m²
7 pièces
parkingjardin

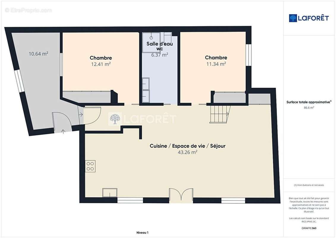
QUIMPER SUD - SECTEUR FRUGY - Venez découvrir cette maison de 2014 de 126m2 édifiée sur une parcelle de 180m2. Située en impasse, elle se compose au niveau 1 d'une cuisine ouverte sur le salon-séjour (40m2) lumineux, deux chambres avec rangements, une salle d'eau avec un wc. A l'étage, un espace mezzanine dessert deux belles chambres, un bureau, une salle d'eau avec wc. De plus, cette maison aux prestations de qualité bénéficie d'un environnement en retrait des axes passants. Les +: construction en béton cellulaire (DPE C), grand garage de 46m2. Pas de jardin, uniquement accès à une cour privative entretenue, facilitant le stationnement de deux véhicules (dont un sous carport). Visite virtuelle et plans du bien disponibles sur demande. Mandat 12557

Honoraires inclus de 3.46% TTC à la charge de l'acquéreur. Prix hors honoraires 260 000 €. Classe énergie C, Classe climat A Montant moyen estimé des dépenses annuelles d'énergie pour un usage standard, établi à partir des prix de l'énergie de l'année 2021 : entre 1360.00 et 1900.00 €. Les informations sur les risques auxquels ce bien est exposé sont disponibles sur le site Géorisques : georisques.gouv.fr.

Votre conseiller WEST IMMOBILIER : Nicolas Thomas
Agent commercial (Entreprise individuelle)
RSAC 853920452
Voir plus

Référence: 12557-WESTIMMO
Honoraires d'agence de 3.46% à la charge de l'acquéreur
Barème des honoraires
DPE
A
B
C
D
E
F
G
GES
A
B
C
D
E
F
G

Prêt immobilier

Vous souhaitez connaître votre capacité d’emprunt et trouver le meilleur crédit immobilier ?
Réaliser une simulation gratuite

Maison à QUIMPER
Maison à QUIMPER
Maison à QUIMPER
Maison à QUIMPER
Maison à QUIMPER
Maison à QUIMPER
Maison à QUIMPER
Maison à QUIMPER
Maison à QUIMPER
Ce site est protégé par reCAPTCHA la Politique de confidentialité et les Conditions d’utilisation de Google s’appliquent.
Obtenir un prêt immobilier au meilleur taux ?

En poursuivant votre navigation sans modifier vos paramètres, vous acceptez l'utilisation de cookies susceptibles de réaliser des statistiques de visite. Cliquez ici pour plus d'informations