Villa avec grande piscine

— Reillanne 04110 —
337 000 €
100 m² / 776 m²
piscine

Cette propriété bénéficie d'un emplacement privilégié à seulement 10 minutes à pied du centre du village.

Villa provençale d'environ 100 m² habitables sur deux niveaux.
Édifiée sur un terrain clos et arboré de 776 m², au calme absolu et sans vis-à-vis, avec piscine et chalet de 17 m².

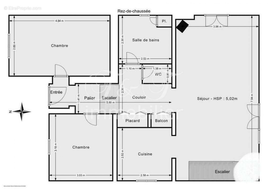
Au rez-de-chaussée :

Une entrée avec rangement menant vers une pièce de vie de 31,6 M², avec poêle à bois et belle hauteur sous plafond.

Cuisine semi-ouverte, totalement équipée et aménagée, donnant sur une jolie terrasse.

Une première chambres 14 M²
Une deuxième chambre 10M²

Une salle de bains et
un WC indépendant.

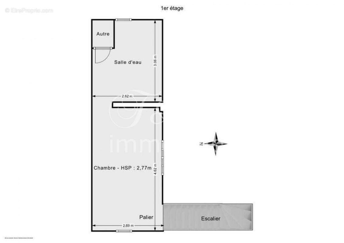
À l'étage :

Une chambre en mezzanine

avec sa salle d'eau (douche).

Le jardin est l'atout de cette maison, avec une terrasse couverte par une pergola.

Une grande piscine 12X6 au plus large avec enrouleur de bâche,

Un chalet de jardin de 17 m²,
de nombreuses variétés de plantes, etc.

Caractéristiques supplémentaires importantes:

- Carport
- Panneaux solaires sur le toit
- Adoucisseur d'eau
- Chauffe-eau solaire sur le toit
- Chauffage électrique
- Cheminée dans le salon
- Fenêtres double vitrage récent
- Connexion satellite
- ⁠AUCUN TRAVAUX

N'hésitez pas à me contacter pour plus de renseignements.

Analyse du secteur:

Située dans un cadre paisible et verdoyant au cœur du charmant village de Reillanne,
cette propriété bénéficie d'un emplacement privilégié à seulement 10 minutes à pied du centre du village, où vous trouverez commerces de proximité, marché local, restaurants et services essentiels (Médecins, kiné, infirmière ,boulangerie. poste, supérette…)

Les familles apprécieront la proximité immédiate de l'école primaire du village, accessible en quelques minutes à pied, tandis que les collèges et lycées se trouvent à Forcalquier, à environ 20 minutes en voiture.

Côté nature, le secteur est bordé de sentiers et d'espaces naturels offrant de belles balades, avec le parc naturel du Luberon à quelques kilomètres. Vous aimez la nature , le calme le chant des oiseaux , cette maison est pour vous .

La région est également bien desservie par la D4100, reliant rapidement Manosque (25 min) et l'autoroute A51, facilitant les trajets vers Aix-en-Provence ou Marseille. Un arrêt de bus scolaire dessert le quartier, et un service de transport interurbain relie Reillanne aux communes voisines.
Voir plus

Référence: LUB-001263

Prêt immobilier

Vous souhaitez connaître votre capacité d’emprunt et trouver le meilleur crédit immobilier ?
Réaliser une simulation gratuite

Maison à REILLANNE
Maison à REILLANNE
Maison à REILLANNE
Maison à REILLANNE
Maison à REILLANNE
Maison à REILLANNE
Maison à REILLANNE
Maison à REILLANNE
Maison à REILLANNE
Maison à REILLANNE
Maison à REILLANNE
Maison à REILLANNE
Maison à REILLANNE
Maison à REILLANNE
Maison à REILLANNE
Maison à REILLANNE
Maison à REILLANNE
Ce site est protégé par reCAPTCHA la Politique de confidentialité et les Conditions d’utilisation de Google s’appliquent.
Obtenir un prêt immobilier au meilleur taux ?

En poursuivant votre navigation sans modifier vos paramètres, vous acceptez l'utilisation de cookies susceptibles de réaliser des statistiques de visite. Cliquez ici pour plus d'informations