Appartement/duplex *** haut de gamme *** terrasses et climatisation

— Tours 37200 —
227 000 €
123 m²
5 pièces
parkingbalcon/terrasseascenseur

*** Bérengère MIRAULT by BSK IMMOBILIER ***

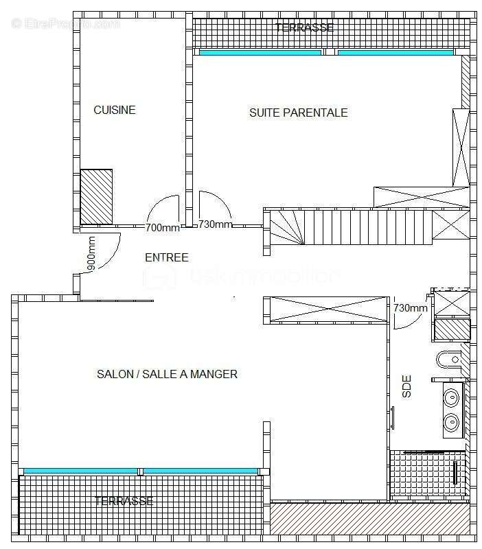
Idéalement situé à Tours Sud, dans une résidence sécurisée. Venez Découvrir ce somptueux duplex de standing, situé au 4ème et dernier étage avec ascenseur, offrant un cadre de vie d'exception ! Dès l'entrée, vous serez séduit par une cuisine moderne 'haut de gamme', entièrement aménagée et équipée, un lumineux salon/séjour de 35 m2 environ donnant accès à une agréable terrasse. La suite parentale de plus de 20 m2, véritable havre de paix, dispose d'un dressing sur mesure, d'une seconde terrasse intimiste et d'une salle d'eau à l'italienne élégamment équipée avec double vasque et sèche-serviettes, Wc suspendu. Couloir avec 2 grands placards aménagés. Un escalier en acajou et Inox vous mène à l'étage supérieur où vous trouverez une salle de bains raffinée avec double vasque, Wc suspendu, mobilier intégrant un espace buanderie (sèche-linge et machine à laver, deux chambres (12 et 9 m2) environ avec placards intégrés, ainsi qu'un bureau idéal pour le télétravail.
Confort : Climatisation - Les Velux sont motorisés (fermeture automatique en cas de pluie) avec volet roulant motorisé en aluminium et stores. Porte blindée.
Cave 11 m2 avec mezzanine de 6 m2 avec électricité et parking sécurisé en sous-sol complètent ce bien d'exception. Aucun travaux à prévoir.
Accès au local à vélos de la copropriété. Tram prévu en 2028 à 200 mètres.
Ne manquez pas cette opportunité unique d'acquérir un appartement alliant confort, fonctionnalité et raffinement. À visiter sans tarder !

Cette annonce référence 298084 vous est présentée par votre agent commercial BSK Immobilier BERENGERE MIRAULT (EI) immatriculé au RSAC de TOURS (37000) sous le numéro 75[Coordonnées masquées]12.

Prix du bien : 227 000,00 €
Les honoraires d'agence sont à la charge du vendeur.

A propos de la copropriété :
Pas de procédure en cours.
Nombre de lots : 1 851
Charges prévisionnelles annuelles : 4 838,92 €

A propos des performances énergétiques :
Date de réalisation du diagnostic énergétique : 26/07/2023
Score DPE : 96 kWhEP/m²/an
Score GES : 6 kgepCO2/m²/an
Montant estimé des dépenses annuelles d'énergie pour un usage standard : entre 886.00 € et 1198.00 € par an. Prix moyens des énergies indexés sur l'année 2021 (abonnements compris).

Les informations sur les risques auxquels ce bien est exposé sont disponibles sur le site Géorisques : www.georisques.gouv.fr
Voir plus

Référence: 298084
Bien en copropriété. Nombre de lots : 1851. Charges de copropriété : 403 €.
Honoraires à la charge du vendeur.
DPE
A
B
C
D
E
F
G
GES
A
B
C
D
E
F
G

Prêt immobilier

Vous souhaitez connaître votre capacité d’emprunt et trouver le meilleur crédit immobilier ?
Réaliser une simulation gratuite

Appartement à TOURS
Appartement à TOURS
Appartement à TOURS
Appartement à TOURS
Appartement à TOURS
Appartement à TOURS
Appartement à TOURS
Appartement à TOURS
Appartement à TOURS
Appartement à TOURS
Appartement à TOURS
Appartement à TOURS
Appartement à TOURS
Appartement à TOURS
Appartement à TOURS
Appartement à TOURS
Appartement à TOURS
Ce site est protégé par reCAPTCHA la Politique de confidentialité et les Conditions d’utilisation de Google s’appliquent.
Obtenir un prêt immobilier au meilleur taux ?

En poursuivant votre navigation sans modifier vos paramètres, vous acceptez l'utilisation de cookies susceptibles de réaliser des statistiques de visite. Cliquez ici pour plus d'informations