Maison 4 chambres villeneuve-loubet louée

— Villeneuve-Loubet 06270 —
699 000 €
126 m² / 57 m²
5 pièces
parkingbalcon/terrassejardin

Découvrez cette charmante maison mitoyenne construite en 1999, idéalement située au cœur du quartier résidentiel des Maurettes à Villeneuve-Loubet (06270). Nichée dans un environnement calme et verdoyant, elle bénéficie d’un emplacement recherché, à deux pas des commerces, des écoles et de la mer Méditerranée.

Caractéristiques principales :
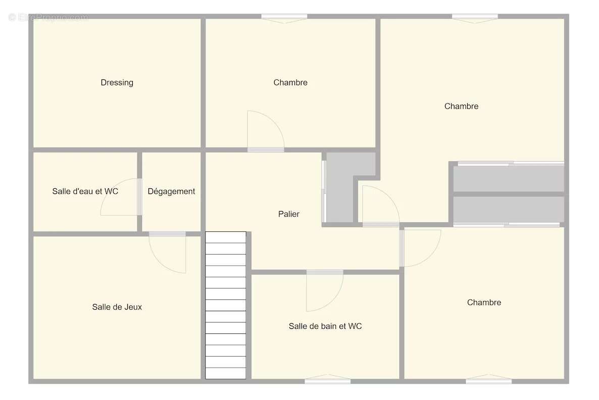
Superficie : 125 m² habitables (loi carrez) mais environ 160 m² utiles.
Grand séjour traversant lumineux avec accès d’un côté sur un jardin intimiste, et de l’autre sur une belle terrasse idéale pour vos repas en extérieur
Cuisine : ouverte et fonctionnelle
Chambres : 4 chambres spacieuses dont une au rez-de-chaussée avec salle d’eau. A l'étage, 2 salles de bains avec WC.
Espaces complémentaires : dressing, salle de jeux, garage

Agencement :
Rez-de-chaussée : une chambre, une salle d’eau, cuisine ouverte et séjour traversant donnant sur le jardin et la terrasse.
Étage : trois grandes chambres, deux salles de bains avec toilettes, un vaste dressing et une salle de jeux.

Localisation idéale :
La maison se trouve dans un quartier résidentiel prisé.
Proximité immédiate de la mer et des plages de Villeneuve-Loubet.
Commerces, écoles et services accessibles rapidement.
Accès facile vers Nice, Antibes et Sophia Antipolis.

Informations complémentaires :
La maison est actuellement louée 2 180 € par mois, bail en cours jusqu’à décembre 2026 (congé donné aux locataires).

Idéal pour un investissement locatif ou une future résidence principale.

Cette maison familiale allie confort, espace et localisation stratégique au cœur de la Côte d’Azur. Une belle opportunité à saisir à Villeneuve-Loubet !

Les informations sur les risques auxquels ce bien est exposé sont disponibles sur le site Géorisques http://georisques.gouv.fr
Voir plus

Référence: 86137917
Barème des honoraires
DPE
A
B
C
D
E
F
G
GES
A
B
C
D
E
F
G

Prêt immobilier

Vous souhaitez connaître votre capacité d’emprunt et trouver le meilleur crédit immobilier ?
Réaliser une simulation gratuite

Maison à VILLENEUVE-LOUBET
Maison à VILLENEUVE-LOUBET
Maison à VILLENEUVE-LOUBET
Maison à VILLENEUVE-LOUBET
Maison à VILLENEUVE-LOUBET
Maison à VILLENEUVE-LOUBET
Maison à VILLENEUVE-LOUBET
Maison à VILLENEUVE-LOUBET
Maison à VILLENEUVE-LOUBET
Maison à VILLENEUVE-LOUBET
Maison à VILLENEUVE-LOUBET
Maison à VILLENEUVE-LOUBET
Maison à VILLENEUVE-LOUBET
Maison à VILLENEUVE-LOUBET
Maison à VILLENEUVE-LOUBET
Maison à VILLENEUVE-LOUBET
Maison à VILLENEUVE-LOUBET
Maison à VILLENEUVE-LOUBET
Maison à VILLENEUVE-LOUBET
Maison à VILLENEUVE-LOUBET
Maison à VILLENEUVE-LOUBET
Maison à VILLENEUVE-LOUBET
Maison à VILLENEUVE-LOUBET
Maison à VILLENEUVE-LOUBET
Maison à VILLENEUVE-LOUBET
Maison à VILLENEUVE-LOUBET
Ce site est protégé par reCAPTCHA la Politique de confidentialité et les Conditions d’utilisation de Google s’appliquent.
Obtenir un prêt immobilier au meilleur taux ?

En poursuivant votre navigation sans modifier vos paramètres, vous acceptez l'utilisation de cookies susceptibles de réaliser des statistiques de visite. Cliquez ici pour plus d'informations