Bénéficiez des services de nos partenaires locaux soigneusement sélectionnés
pour vous accompagner dans votre parcours d'achat immobilier

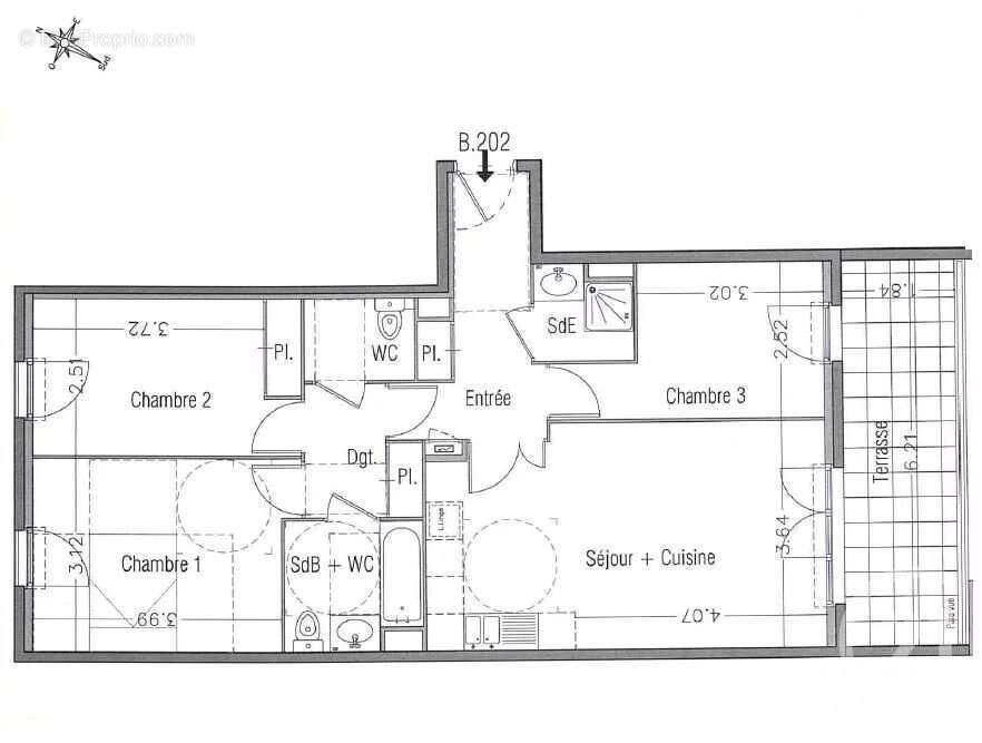
Appartement 75m² à mougins

— Mougins 06250 —
420 000 €
75 m²
4 pièces
parkingbalcon/terrasseascenseur

Nos partenaires locaux
MOUGINS SUD : Dans une superbe résidence de 2019 à l'architecture contemporaine bénéficiant d'une piscine et de jardins, au deuxième étage (comme un dernier étage car personne au dessus), très joli appartement 4 pièces de 75m² ouvrant sur une terrasse de de 12m². L'appartement est traversant et comprend une entrée, un séjour avec belle cuisine américaine ouvrant sur la terrasse, deux chambres côté Nord avec placard et vue sur le village de Mougins, et une 3e de légèrement moins que 9m² côté terrasse, une salle de bains avec WC, une salle de douche et un WC indépendant avec coin buanderie. Possibilité d'agrandir le séjour si pas de nécessité de la 3e chambre. L'appartement offre de très belles prestations : cuisine toute équipée de belle facture, volets roulants centralisés, climatisation gainée partout, porte blindée, point d'eau sur la terrasse). On pose ses valises ! Vendu avec deux places de parking en sous-sol, rare! Possibilité de fermer en garage. A pied de quelques commodités (boucherie, pharmacie, boulangerie, scène 55 ...) et facile d'accès à Cannes ou à l'autoroute. Arrêt de bus à 500m avec plusieurs lignes directes pour aller à Cannes ou au centre de Mougins. Les charges comprennent l'eau chaude, l'eau froide et le chauffage collectif. Montant estimé des dépenses annuelles d'énergie pour un usage standard entre 468.0 € et 634.0 €, indexées à l'année 2021 (abonnements compris).
Voir plus

Référence: 2022
DPE
A
B
C
D
E
F
G
GES
A
B
C
D
E
F
G

Prêt immobilier

Vous souhaitez connaître votre capacité d’emprunt et trouver le meilleur crédit immobilier ?
Réaliser une simulation gratuite

Appartement à MOUGINS
Appartement à MOUGINS
Appartement à MOUGINS
Appartement à MOUGINS
Appartement à MOUGINS
Appartement à MOUGINS
Appartement à MOUGINS
Appartement à MOUGINS
Appartement à MOUGINS
Appartement à MOUGINS
Appartement à MOUGINS
Appartement à MOUGINS
Appartement à MOUGINS
Appartement à MOUGINS
Appartement à MOUGINS
Appartement à MOUGINS
Appartement à MOUGINS
Ce site est protégé par reCAPTCHA la Politique de confidentialité et les Conditions d’utilisation de Google s’appliquent.
Obtenir un prêt immobilier au meilleur taux ?

En poursuivant votre navigation sans modifier vos paramètres, vous acceptez l'utilisation de cookies susceptibles de réaliser des statistiques de visite. Cliquez ici pour plus d'informations