Appartement saint maurice 4 pièce(s) 81 m2

— Saint-Maurice 94410 —
595 000 €
81 m²
4 pièces

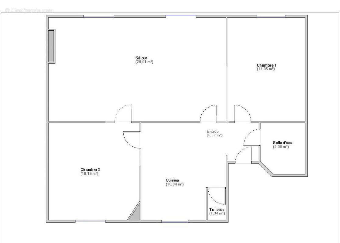
Coup de coeur assuré au plateau de Saint-Maurice ! Vous rêvez d'un appartement plein de charme, baigné de lumière et situé dans l'un des quartiers les plus prisés de Saint-Maurice ? Alors suivez-moi, on y est ! Emplacement idéal : en plein coeur du plateau, à deux pas du marché, des commerces, des écoles et des transports. Au dernier étage d'une petite copropriété très conviviale, ce 3 pièces de caractère ne demande qu'à révéler tout son potentiel. Dès l'entrée, on est immédiatement séduit par la luminosité exceptionnelle (exposition plein Sud et vue dégagée sans aucun vis-à-vis). Le grand séjour avec sa belle hauteur sous plafond, ses parquets, moulures et cheminées, offre une atmosphère chaleureuse où l'on se sent bien dès la première minute. Côté nuit, deux grandes chambres lumineuses (possibilité 3), calme et bien proportionnées vous offriront confort et tranquillité. La cuisine dînatoire, spacieuse, constitue un véritable lieu de vie pour partager de bons moments. Salle de douche et WC séparés complètent l'ensemble. On adore : Dernier étage avec vue imprenable sur les toits et le marché Calme absolu, lumière toute la journée Plan en étoile ultra fonctionnel Charme de l'ancien (parquet, moulures, cheminées) Petite copropriété à faibles charges Quelques travaux de rafraîchissement permettront de lui donner un petit coup de peps et de valoriser encore davantage tout son charme (potentiel classement D après isolation des combles). Un bien rare comme on en voit peu, à visiter sans tarder ! (4.20 % honoraires TTC à la charge de l'acquéreur.) Copropriété de 6 lots - dont 3 lots habitation. (Pas de procédure en cours). Charges annuelles : 1920 euros.
Voir plus

Référence: 1054
Bien en copropriété. Nombre de lots : 6. Charges de copropriété : 1920 €.
Honoraires d'agence de 4.2% à la charge de l'acquéreur
Barème des honoraires
DPE
A
B
C
D
E
F
G
GES
A
B
C
D
E
F
G

Prêt immobilier

Vous souhaitez connaître votre capacité d’emprunt et trouver le meilleur crédit immobilier ?
Réaliser une simulation gratuite

Appartement à SAINT-MAURICE
Appartement à SAINT-MAURICE
Appartement à SAINT-MAURICE
Appartement à SAINT-MAURICE
Appartement à SAINT-MAURICE
Appartement à SAINT-MAURICE
Appartement à SAINT-MAURICE
Appartement à SAINT-MAURICE
Appartement à SAINT-MAURICE
Appartement à SAINT-MAURICE
Appartement à SAINT-MAURICE
Appartement à SAINT-MAURICE
Appartement à SAINT-MAURICE
Appartement à SAINT-MAURICE
Appartement à SAINT-MAURICE
Ce site est protégé par reCAPTCHA la Politique de confidentialité et les Conditions d’utilisation de Google s’appliquent.
Obtenir un prêt immobilier au meilleur taux ?

En poursuivant votre navigation sans modifier vos paramètres, vous acceptez l'utilisation de cookies susceptibles de réaliser des statistiques de visite. Cliquez ici pour plus d'informations