Bénéficiez des services de nos partenaires locaux soigneusement sélectionnés
pour vous accompagner dans votre parcours d'achat immobilier

Maison 190m² à cregy-les-meaux

— Cregy-Les-Meaux 77124 —
699 000 €
190 m² / 3 200 m²
5 pièces
jardin

Nos partenaires locaux
Iad France - Sabrina DERRIEN vous propose : * MAISON FAMILIALE - PROCHE GARE DE MEAUX *

Belle maison familiale de 190 m² habitables, implantée sur une propriété de 3200 m², offrant confort, luminosité et de beaux volumes.

Au rez-de-chaussée :
oUn vaste séjour lumineux
oUne cuisine indépendante, aménagée et équipée
oUne grande chambre
oUne salle d'eau avec WC séparé

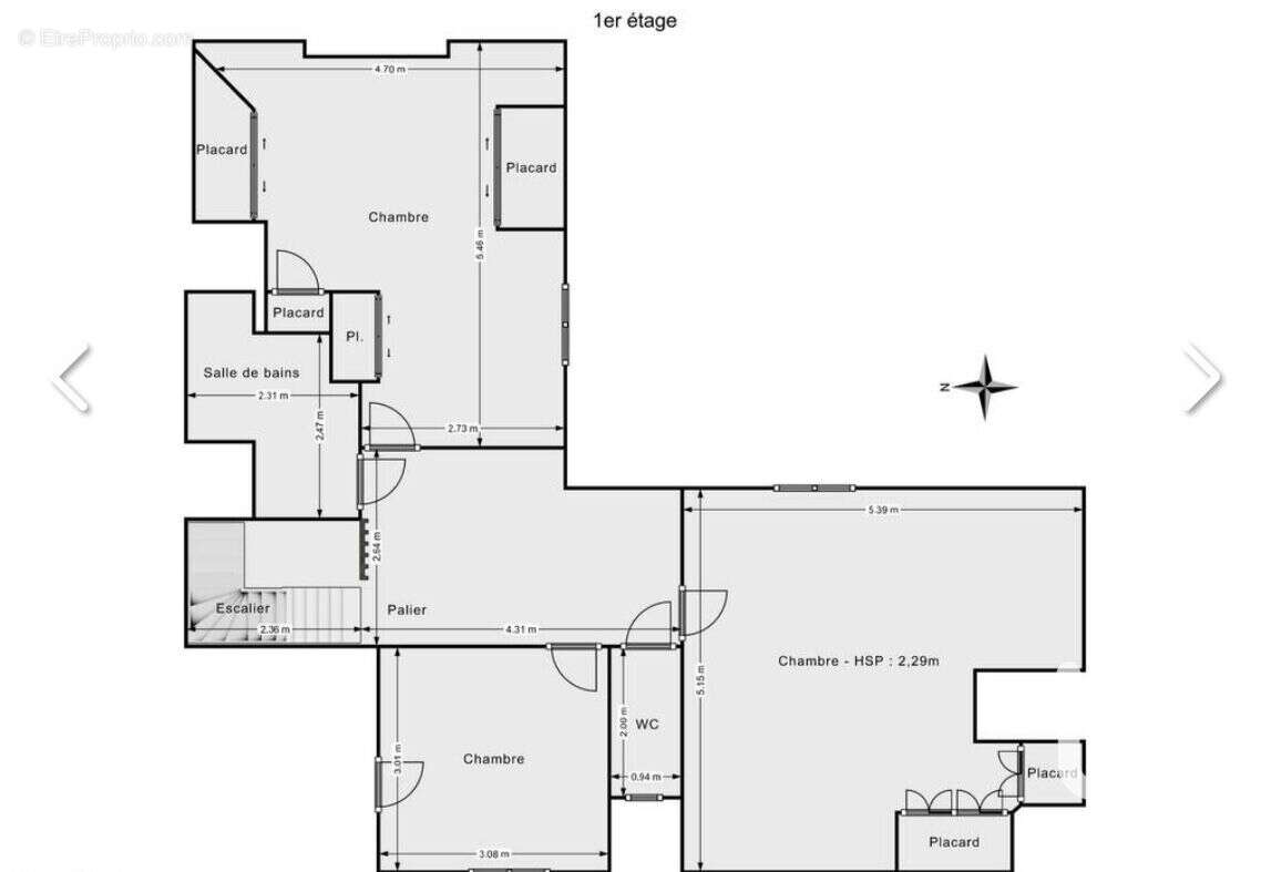
À l'étage :
oTrois chambres spacieuses et lumineuses
oUne salle de bain avec WC séparé
oNombreux placards et rangements

Atouts complémentaires :
oSous-sol de 66 m² avec buanderie et chaufferie
oVéranda de 20 m²
oDeux dépendances de 35 m² chacune (studio et T2), idéales pour recevoir, louer ou exercer une activité professionnelle
oDeux terrains à bâtir de 1500 m² au total, avec la possibilité de division en 3 parcelles distinctes
oCave à vin et garage

Confort et équipements :
oChaudière gaz à condensation et pompe à chaleur
oDouble vitrage
oPanneaux photovoltaïques

Localisation : Situation idéale, à seulement 5 minutes en voiture du centre-ville et 1 km de la gare.

Honoraires d'agence à la charge du vendeur.
Information d'affichage énergétique sur ce bien : classe ENERGIE D indice 166 et classe CLIMAT D indice 30. Les informations sur les risques auxquels ce bien est exposé, y compris l'obligation légale de débroussaillement, sont disponibles sur le site Géorisques : http://www.georisques.gouv.fr.
La présente annonce immobilière a été rédigée sous la responsabilité éditoriale de Mme Sabrina DERRIEN mandataire indépendant en immobilier (sans détention de fonds), agent commercial de la SAS I@D France immatriculé au RSAC de Meaux sous le numéro 851223057, titulaire de la carte de démarchage immobilier pour le compte de la société I@D France SAS.
Informations LOI ALUR :
Honoraires charge vendeur. (gedeon_6727_31746753)
Voir plus

Référence: 1824673
Honoraires à la charge du vendeur.
DPE
A
B
C
D
E
F
G
GES
A
B
C
D
E
F
G

Prêt immobilier

Vous souhaitez connaître votre capacité d’emprunt et trouver le meilleur crédit immobilier ?
Réaliser une simulation gratuite

Photo 1 - Maison à CREGY-LES-MEAUX
Photo 1
Photo 2 - Maison à CREGY-LES-MEAUX
Photo 2
Photo 3 - Maison à CREGY-LES-MEAUX
Photo 3
Photo 4 - Maison à CREGY-LES-MEAUX
Photo 4
Photo 5 - Maison à CREGY-LES-MEAUX
Photo 5
Photo 6 - Maison à CREGY-LES-MEAUX
Photo 6
Photo 7 - Maison à CREGY-LES-MEAUX
Photo 7
Photo 8 - Maison à CREGY-LES-MEAUX
Photo 8
Photo 9 - Maison à CREGY-LES-MEAUX
Photo 9
Ce site est protégé par reCAPTCHA la Politique de confidentialité et les Conditions d’utilisation de Google s’appliquent.
Obtenir un prêt immobilier au meilleur taux ?

En poursuivant votre navigation sans modifier vos paramètres, vous acceptez l'utilisation de cookies susceptibles de réaliser des statistiques de visite. Cliquez ici pour plus d'informations