Magnifique maison de 204 m2 - 5 chambres - terrasse - jardin

— Jenlain 59144 —
318 900 €
204 m² / 822 m²
7 pièces
jardin

Benoit Gossart vous propose ce bien :

COUP de CŒUR Nouveauté Benoît Gossart - MeilleursBiens
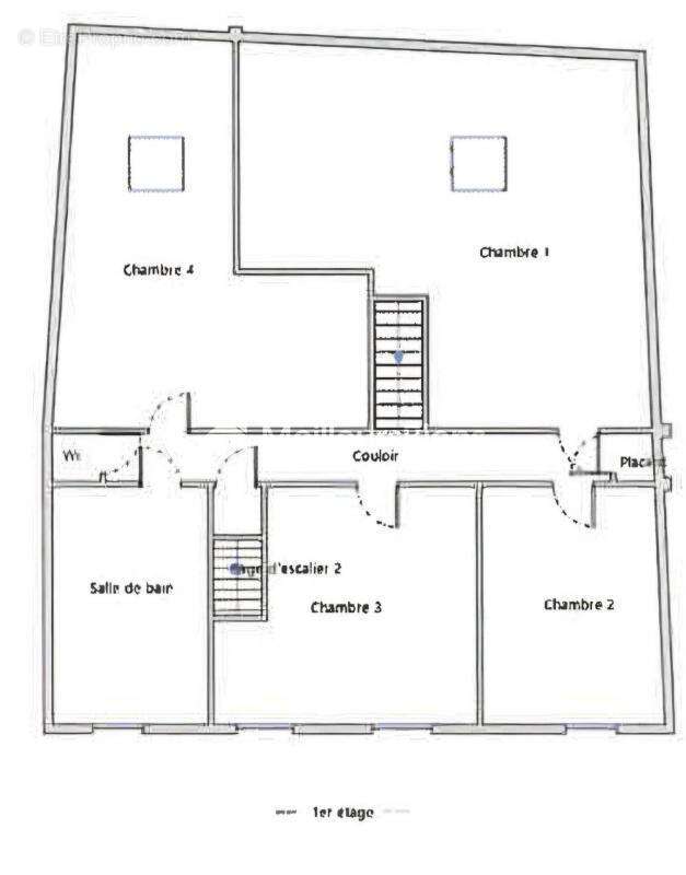
Superbe Maison INDIVIDUELLE de 204 m2 - 5 chambres - Parcelle 822 m2 SITUATION PRISÉE, ESPACE ET MODERNITÉ ! RÉNOVATION de QUALITÉ 59 144 JENLAIN 318900 € Honoraires Inclus Entrée, Wc, Salon, Cuisine, Salle à Manger, Lingerie À l' Étage : Palier, 4 chambres, Salle de Bains + Douche, Wc Combles : Grande Chambre avec possibilité Dressing
À savoir : Chauffage GAZ + Insert Bois Parcelle 822 m2 Terrasse Portail Automatique
Terrain de Pétanque Taxe Foncière 1123€ Sous-Sol avec Atelier, Chaufferie et Cave DPE C
Distance : 07 kms Le Quesnoy 13 kms Bavay 13 kms Valenciennes 26 kms Le Cateau-Cambrésis 26 kms Saint-Amand-les-Eaux 27 kms Maubeuge 40 kms Mons 43 kms Avesnes-sur-Helpe 45 kms Cambrai Merci pour vos Partages I My Job - I MeilleursBiens Benoît Gossart [Coordonnées masquées] [Coordonnées masquées]\nLes informations sur les risques auxquels ce bien est exposé sont disponibles sur le site Géorisques : www.georisques.gouv.fr
Voir plus

Référence: MB5962165461
DPE
A
B
C
D
E
F
G
GES
A
B
C
D
E
F
G

Prêt immobilier

Vous souhaitez connaître votre capacité d’emprunt et trouver le meilleur crédit immobilier ?
Réaliser une simulation gratuite

Maison à JENLAIN
Maison à JENLAIN
Maison à JENLAIN
Maison à JENLAIN
Maison à JENLAIN
Maison à JENLAIN
Maison à JENLAIN
Maison à JENLAIN
Maison à JENLAIN
Maison à JENLAIN
Maison à JENLAIN
Maison à JENLAIN
Maison à JENLAIN
Maison à JENLAIN
Maison à JENLAIN
Maison à JENLAIN
Maison à JENLAIN
Maison à JENLAIN
Maison à JENLAIN
Maison à JENLAIN
Maison à JENLAIN
Maison à JENLAIN
Maison à JENLAIN
Maison à JENLAIN
Ce site est protégé par reCAPTCHA la Politique de confidentialité et les Conditions d’utilisation de Google s’appliquent.
Obtenir un prêt immobilier au meilleur taux ?

En poursuivant votre navigation sans modifier vos paramètres, vous acceptez l'utilisation de cookies susceptibles de réaliser des statistiques de visite. Cliquez ici pour plus d'informations