Local commercial à vendre – emplacement stratégique à la clusaz (74220)

— La Clusaz 74220 —
308 000 €
31 m²
1 pièce

Situé au cœur d'un axe très passant et commerçant, ce local commercial bénéficie d'un emplacement de premier choix à La Clusaz, station prisée été comme hiver.
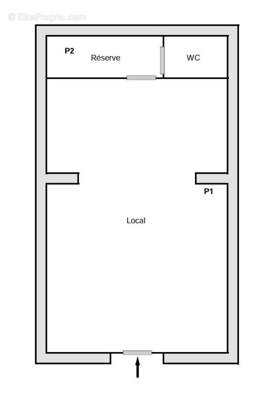
Installé en rez-de-chaussée d'une petite copropriété, il se compose d'un espace de vente lumineux donnant sur la rue, et d'une réserve à l'arrière. Il conviendra parfaitement pour une activité de commerce de détail, de services, ou un bureau avec vitrine.
Les atouts : excellente visibilité, Flux piétons et voitures élevé toute l'année, Petite copropriété bien entretenue, Libre de toute occupation à la vente, à compter d'avril 2026.
Taxe foncière 631€ - appel de fonds 174€/trimestre - DPE E(343)/B(9)
Idéal investisseur ou commerçant souhaitant s'implanter dans une station dynamique Les honoraires d'agence sont à la charge de l'acquéreur, soit 10,00% TTC du prix hors honoraires.
Les informations sur les risques auxquels ce bien est exposé sont disponibles sur le site Géorisques : www. georisques. gouv. fr.

Réseau Immobilier CAPIFRANCE - Votre agent commercial (RSAC N°438 586 216 - Greffe de ANNECY) Irène DUBOIS Entrepreneur Individuel [Coordonnées masquées] - Réf.915120
Voir plus

Référence: 340939662856

Prêt immobilier

Vous souhaitez connaître votre capacité d’emprunt et trouver le meilleur crédit immobilier ?
Réaliser une simulation gratuite

Commerce à LA CLUSAZ
Commerce à LA CLUSAZ
Commerce à LA CLUSAZ
Commerce à LA CLUSAZ
Ce site est protégé par reCAPTCHA la Politique de confidentialité et les Conditions d’utilisation de Google s’appliquent.
Obtenir un prêt immobilier au meilleur taux ?

En poursuivant votre navigation sans modifier vos paramètres, vous acceptez l'utilisation de cookies susceptibles de réaliser des statistiques de visite. Cliquez ici pour plus d'informations