Bénéficiez des services de nos partenaires locaux soigneusement sélectionnés
pour vous accompagner dans votre parcours d'achat immobilier

Maison 200m² à issy-les-moulineaux

— Issy-Les-Moulineaux 92130 —
1 720 000 €
200 m² / 60 m²
9 pièces
parkingbalcon/terrassejardin

Nos partenaires locaux
92130 - ISSY-LES-MOULINEAUX - CENTRE-VILLE - 9 PIECES - 7 CHAMBRES - 200 M² - MAISON D'EXCEPTION AVEC TERRASSE ET JARDIN- efficity, l'agence qui estime votre bien en ligne, vous propose cette superbe maison familiale située en plein cœur du centre-ville d'Issy-les-Moulineaux.

Idéalement agencée sur 2 niveaux, cette maison d'une surface Carrez de 170,92 m² (surface totale environ 200 m²) offre un cadre de vie unique, chaleureux et fonctionnel.

Dès l'entrée, vous serez séduit par son excellent état général, véritable gage de confort et de qualité. La luminosité est un atout majeur : l'exposition sud-est baigne les espaces de vie de lumière naturelle toute la journée.

Vous profiterez pleinement d'une terrasse de 18 m² et d'un jardin de 60 m², idéaux pour vos moments de détente en extérieur, dans un environnement calme.

Description détaillée :

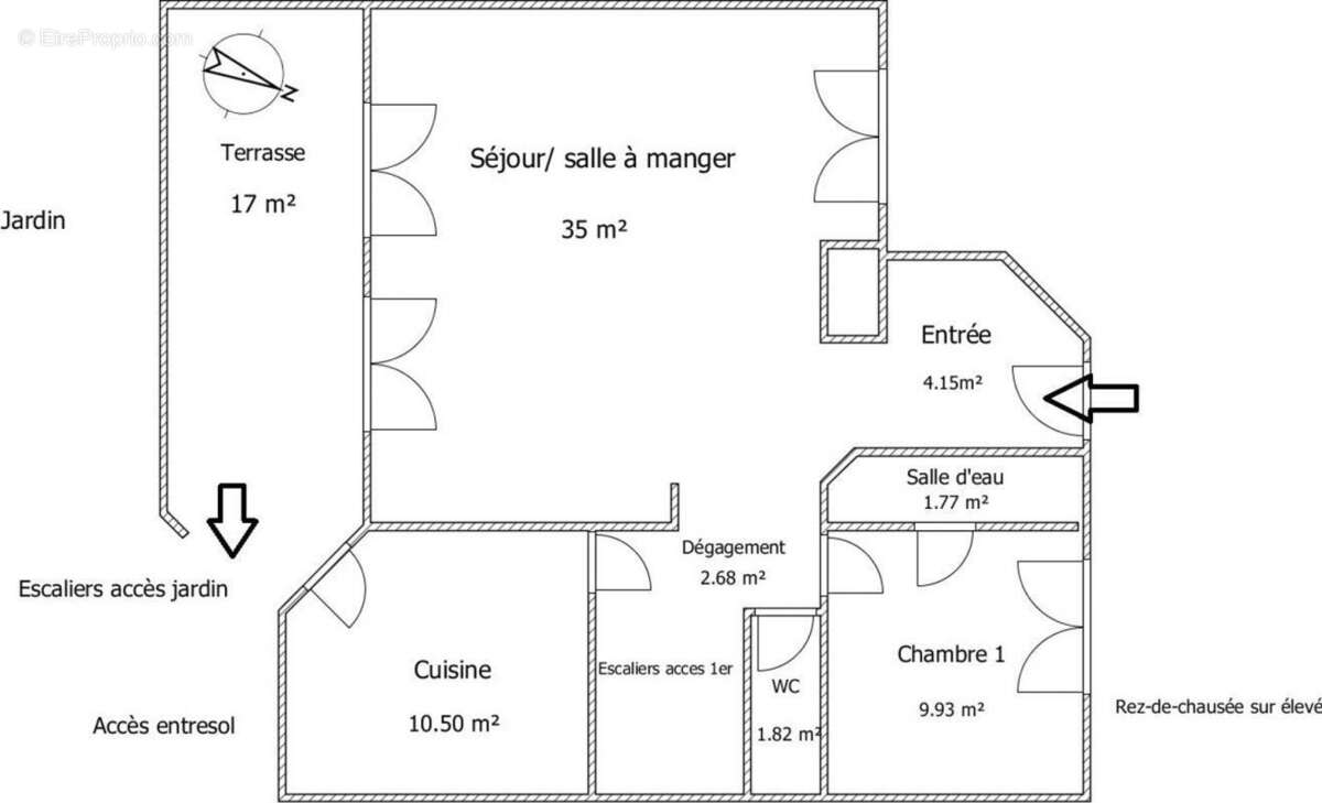
Rez-de-chaussée surélevé :

Une spacieuse entrée avec placard (4,15 m²)

Un grand séjour traversant de 40 m² avec belle hauteur sous plafond (>3 m) ouvrant sur la terrasse

Une cuisine équipée avec accès direct à la terrasse et au jardin

Une chambre avec sa salle d'eau

Un WC indépendant

1er étage :

Un palier distribuant en étoile 4 belles chambres, dont une suite parentale avec salle d'eau et WC

Deux salles d'eau supplémentaires

Un WC indépendant

Un balcon de 7 m² partagé par les deux chambres côté sud

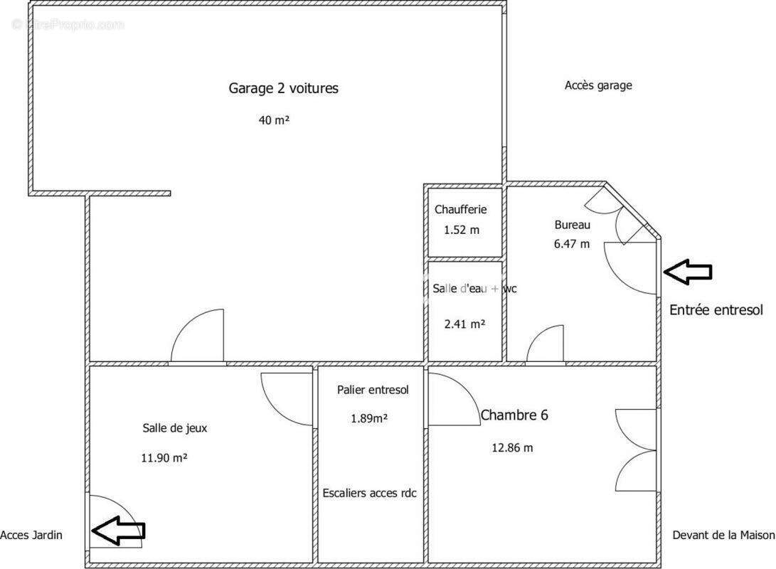
Entresol 75m² :

Un grand garage de 40 m² (rangement, espace chaufferie)

Une buanderie

Une salle de jeux avec accès au jardin

Un bureau et une petite chambre disposant de sa salle d'eau et WC, avec un accès extérieur indépendant

Atouts supplémentaires :

Deux stationnements intérieurs + un stationnement extérieur

Fenêtres double vitrage avec stores et volets roulants électriques

Chaudière mixte à condensation haute performance installée en 2019

Localisation privilégiée :

Métro Mairie d'Issy à 10 min à pied

Commerces et commodités à proximité immédiate

Ne manquez pas l'opportunité de visiter ce bien rare sur le marché, contactez-nous dès maintenant pour organiser une visite !
Les informations sur les risques auxquels ce bien est exposé sont disponibles sur le site Georisque : georisques. gouv. fr
Sandrine Elbaz - EI - est Agent Commercial mandataire en immobilier, immatriculé au Registre Spécial des Agents Commerciaux du Tribunal de Commerce de Nanterre sous le n°348075508.
Siège social du mandant : effiCity, 48 avenue de Villiers - 75017 PARIS - Société par Actions Simplifiée, société au capital de 132 373,05 euros, immatriculée au RCS Paris 497 617 746 et titulaire de la Carte professionnelle CPI 75[Coordonnées masquées]02 025 - CCI Paris IDF - Caisse de Garantie : GALIAN Assurances 89 rue de la Boétie 75008 Paris
Voir plus

Référence: 188664
Honoraires d'agence de 2.99% à la charge de l'acquéreur
Barème des honoraires
DPE
A
B
C
D
E
F
G
GES
A
B
C
D
E
F
G

Prêt immobilier

Vous souhaitez connaître votre capacité d’emprunt et trouver le meilleur crédit immobilier ?
Réaliser une simulation gratuite

Maison à ISSY-LES-MOULINEAUX
Maison à ISSY-LES-MOULINEAUX
Maison à ISSY-LES-MOULINEAUX
Maison à ISSY-LES-MOULINEAUX
Maison à ISSY-LES-MOULINEAUX
Maison à ISSY-LES-MOULINEAUX
Maison à ISSY-LES-MOULINEAUX
Maison à ISSY-LES-MOULINEAUX
Maison à ISSY-LES-MOULINEAUX
Maison à ISSY-LES-MOULINEAUX
Maison à ISSY-LES-MOULINEAUX
Maison à ISSY-LES-MOULINEAUX
Maison à ISSY-LES-MOULINEAUX
Maison à ISSY-LES-MOULINEAUX
Maison à ISSY-LES-MOULINEAUX
Maison à ISSY-LES-MOULINEAUX
Maison à ISSY-LES-MOULINEAUX
Maison à ISSY-LES-MOULINEAUX
Maison à ISSY-LES-MOULINEAUX
Maison à ISSY-LES-MOULINEAUX
Maison à ISSY-LES-MOULINEAUX
Maison à ISSY-LES-MOULINEAUX
Maison à ISSY-LES-MOULINEAUX
Maison à ISSY-LES-MOULINEAUX
Ce site est protégé par reCAPTCHA la Politique de confidentialité et les Conditions d’utilisation de Google s’appliquent.
Obtenir un prêt immobilier au meilleur taux ?

En poursuivant votre navigation sans modifier vos paramètres, vous acceptez l'utilisation de cookies susceptibles de réaliser des statistiques de visite. Cliquez ici pour plus d'informations