Bénéficiez des services de nos partenaires locaux soigneusement sélectionnés
pour vous accompagner dans votre parcours d'achat immobilier

Commerce 180m² à orleans

— Orleans 45000 —
450 000 €
180 m²
parkingascenseur

Nos partenaires locaux

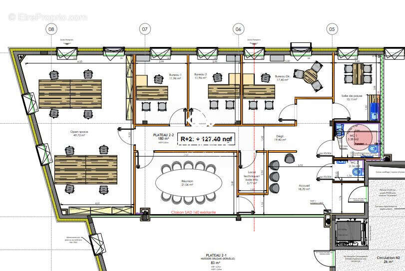
Nous proposons à la vente ce très beau plateau de bureau neuf de 180m².

Localisé sur l'avenue des droits de l'Homme, (Orléans Est), au sein d'in immeuble construit dans le respect des dernières normes environnementales, il offre un accès direct au centre ville et aux grands axes routiers (tangentielle, autoroute).

A moins de 10 minutes du centre-ville d'Orléans, arrêt de bus réseau TAO (ligne 4) au pied de l'immeuble, station de tramway et parking relais à proximité, très bonne visibilité (18 000 véhicules par jour).

L'immeuble de bureaux au sein duquel vous vous implanterez développe 1 900 m², est édifié en R+3, intègre une toiture végétalisée, et pourra être aménagé selon votre cahier des charges. Il offre un accès à la fibre optique, 50 places de parking, un local vélo.

Le plateau en lui-même est vendu pré-équipé (plan joint).
NB: Le plan aménagé n'est qu'une esquisse de faisabilité pour permettre au prospect de se projeter.
Il dispose de 2 parkings privatifs

Disponible immédiatement il est proposé au conditions suivantes:
Prix FAI: 450.000€ HT
Prix net vendeur : 425 400€ HT

Location possible 36500€/HT/AN.

Pour plus de renseignements n'hésitez pas à me contacter au [Coordonnées masquées] ou sur [Coordonnées masquées].

RESEAU BROKERS® cabinet spécialisé en immobilier d'entreprise. Nous maillons avec notre équipe de 100 Brokers une grande partie du territoire national pour accompagner nos entreprises clientes dans leurs recherches de commerces, bureaux, locaux d'activités, immeubles et fonciers.
www.reseau-brokers.com

Honoraires inclus de 5.78% à la charge de l'acquéreur. Prix hors honoraires 425 400 € HT. Dans une copropriété de 10 lots. Aucune procédure n'est en cours. DPE en cours. Les informations sur les risques auxquels ce bien est exposé sont disponibles sur le site Géorisques : georisques.gouv.fr.

Votre conseiller AVINIM RESEAU BROKERS : Hugues VENON
Agent commercial (Entreprise individuelle)
RSAC 491.254.413
RCP 7953190/S17667735
Voir plus

Référence: VP22655-BROKERS
Bien en copropriété. Nombre de lots : 10.
Honoraires d'agence de 5.78% à la charge de l'acquéreur
Barème des honoraires

Prêt immobilier

Vous souhaitez connaître votre capacité d’emprunt et trouver le meilleur crédit immobilier ?
Réaliser une simulation gratuite

Commerce à ORLEANS
Commerce à ORLEANS
Commerce à ORLEANS
Commerce à ORLEANS
Commerce à ORLEANS
Commerce à ORLEANS
Commerce à ORLEANS
Commerce à ORLEANS
Commerce à ORLEANS
Ce site est protégé par reCAPTCHA la Politique de confidentialité et les Conditions d’utilisation de Google s’appliquent.
Obtenir un prêt immobilier au meilleur taux ?

En poursuivant votre navigation sans modifier vos paramètres, vous acceptez l'utilisation de cookies susceptibles de réaliser des statistiques de visite. Cliquez ici pour plus d'informations