Terrain 984m² à mont-de-marsan

— Mont-De-Marsan 40000 —
120 000 €
984 m²

Iad France - Christel Lajous vous propose : Projet spécial investisseur - Mont de Marsan - Secteur à forte demande locative

En partenariat avec Aquitaine Résidences, constructeur de maisons individuelles reconnu, découvrez un projet immobilier clé en main idéal pour les investisseurs.. Localisation : terrain de 984 m² situé à Mont-de-Marsan, à proximité immédiate de toutes les commodités.. Le projet :
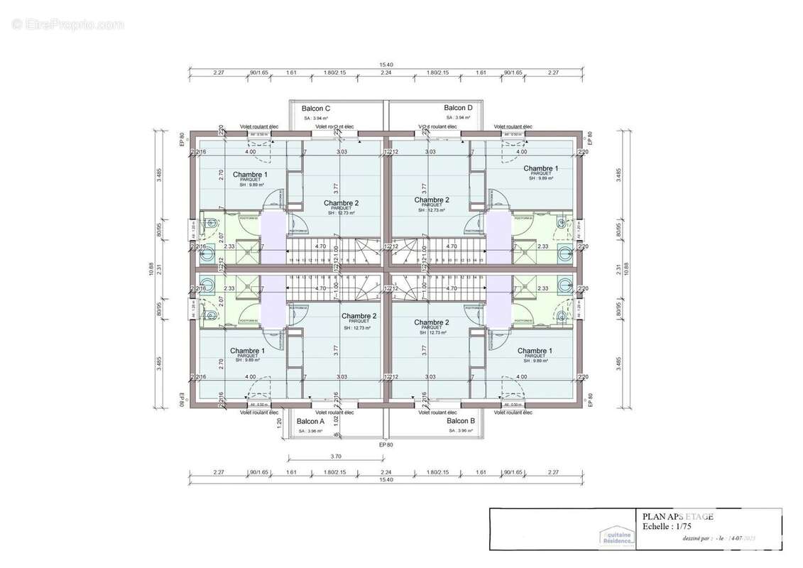
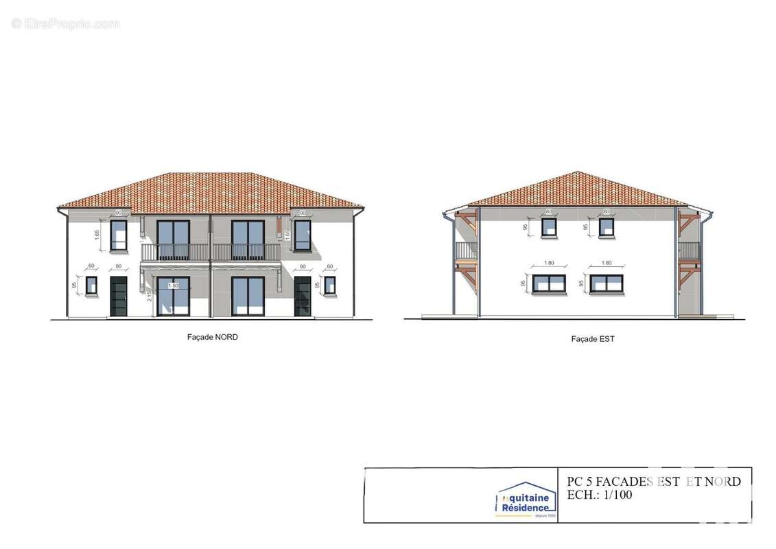
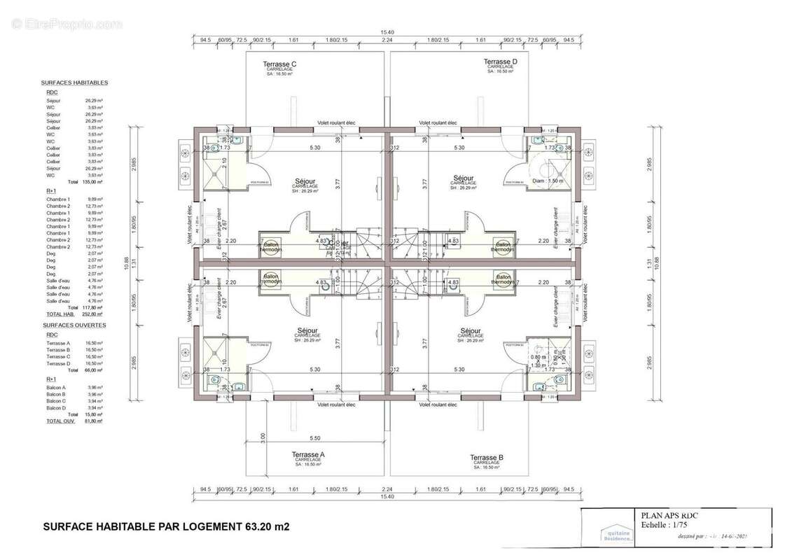
- Construction d'un immeuble R + 1
- Composé de 4 logements T3 de 63,20 m² chacun
- Chaque appartement dispose de sa place de parking. Avantages :
- Projet étudié et sécurisé
- Rentabilité locative assurée
- Emplacement recherché proche commerces, écoles et transports

Une belle opportunité pour investir dans l'immobilier locatif à Mont-de-Marsan : contactez moi pour une visite

Honoraires d'agence à la charge du vendeur.
Bien non soumis au DPE. Les informations sur les risques auxquels ce bien est exposé, y compris l'obligation légale de débroussaillement, sont disponibles sur le site Géorisques : http://www.georisques.gouv.fr.
La présente annonce immobilière a été rédigée sous la responsabilité éditoriale de Mme Christel Lajous mandataire indépendant en immobilier (sans détention de fonds), agent commercial de la SAS I@D France immatriculé au RSAC de MONT-DE-MARSAN sous le numéro 984780775, titulaire de la carte de démarchage immobilier pour le compte de la société I@D France SAS.
Informations LOI ALUR :
Honoraires charge vendeur. (gedeon_6727_31750460)
Voir plus

Référence: 1822418
Honoraires à la charge du vendeur.

Prêt immobilier

Vous souhaitez connaître votre capacité d’emprunt et trouver le meilleur crédit immobilier ?
Réaliser une simulation gratuite

Photo 1 - Terrain à MONT-DE-MARSAN
Photo 1
Photo 2 - Terrain à MONT-DE-MARSAN
Photo 2
Photo 3 - Terrain à MONT-DE-MARSAN
Photo 3
Photo 4 - Terrain à MONT-DE-MARSAN
Photo 4
Ce site est protégé par reCAPTCHA la Politique de confidentialité et les Conditions d’utilisation de Google s’appliquent.
Obtenir un prêt immobilier au meilleur taux ?

En poursuivant votre navigation sans modifier vos paramètres, vous acceptez l'utilisation de cookies susceptibles de réaliser des statistiques de visite. Cliquez ici pour plus d'informations