Exclusivité - garches - quartier gare/mairie - bureaux libres de 115m2

— Garches 92380 —
610 000 €
115 m²

Exclusivité - Garches - Quartier Gare/Mairie - Bureaux libres de 115m2


Idéalement situés, rue de Villeneuve, à 2 min à pied (200m) de la gare de Garches - Marnes-la-Coquette (Ligne L) et à 400m du centre-ville.


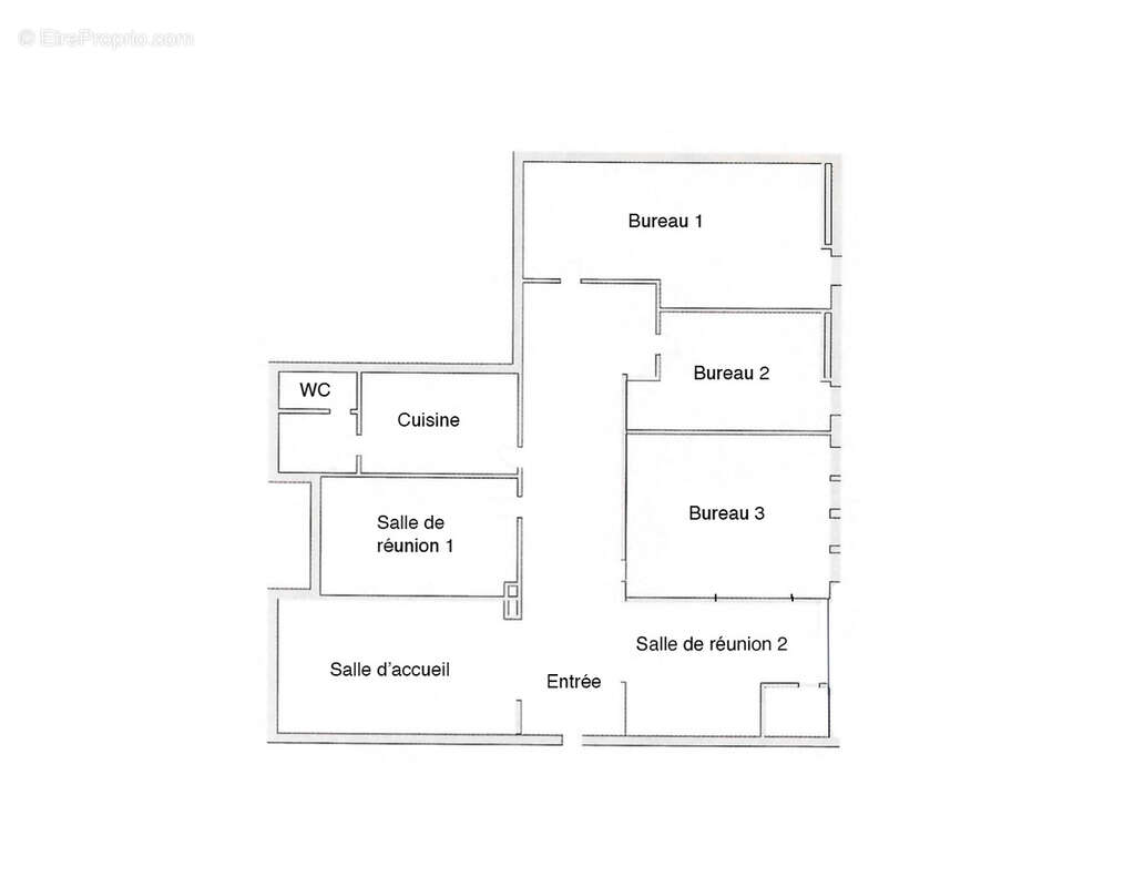
En rez-de-jardin d’un immeuble contemporain avec une entrée indépendante, des bureaux climatisés de 115m2 lumineux et calmes donnant sur un jardin arboré et sans vis à vis. Ils se composent en l’état, d’une salle d’accueil, de WC, de 3 bureaux indépendants, de deux salles de réunion et d’une cuisine équipée.


Deux places de parking complètent ce bien (un troisième parking en sus est possible).


Climatisation, alarme, raccordement en Fibre Optique, cloisonnements modulables, immeuble sécurisé.


Contacter Isabelle Prothon [Coordonnées masquées] - [Coordonnées masquées] - Paris Normandie Transactions 7j/7

Voir plus

Référence: 314
Honoraires d'agence de 4.8% à la charge de l'acquéreur
Barème des honoraires
DPE
A
B
C
D
E
F
G
GES
A
B
C
D
E
F
G

Prêt immobilier

Vous souhaitez connaître votre capacité d’emprunt et trouver le meilleur crédit immobilier ?
Réaliser une simulation gratuite

Commerce à GARCHES
Commerce à GARCHES
Commerce à GARCHES
Commerce à GARCHES
Commerce à GARCHES
Ce site est protégé par reCAPTCHA la Politique de confidentialité et les Conditions d’utilisation de Google s’appliquent.
Obtenir un prêt immobilier au meilleur taux ?

En poursuivant votre navigation sans modifier vos paramètres, vous acceptez l'utilisation de cookies susceptibles de réaliser des statistiques de visite. Cliquez ici pour plus d'informations