Maison t5 elven avec garage au calme

— Elven 56250 —
330 000 €
102 m²
5 pièces
parking

Maison familiale 4 chambres avec beau terrain sans vis-à-vis – Elven

Liberkeys vous propose cette charmante maison familiale, idéalement située à Elven, commune dynamique et prisée à seulement 20 minutes de Vannes et aux portes du Golfe du Morbihan.

Un cadre de vie privilégié
Nichée dans un environnement calme et résidentiel, cette maison vous séduira par ses volumes généreux, sa luminosité, et surtout son magnifique terrain de 731 m² entièrement clôturé, sans aucun vis-à-vis, parfait pour profiter des beaux jours en toute intimité.
Une grande cour permet également de stationner plusieurs véhicules en toute facilité, un véritable atout au quotidien.

Un intérieur fonctionnel et chaleureux
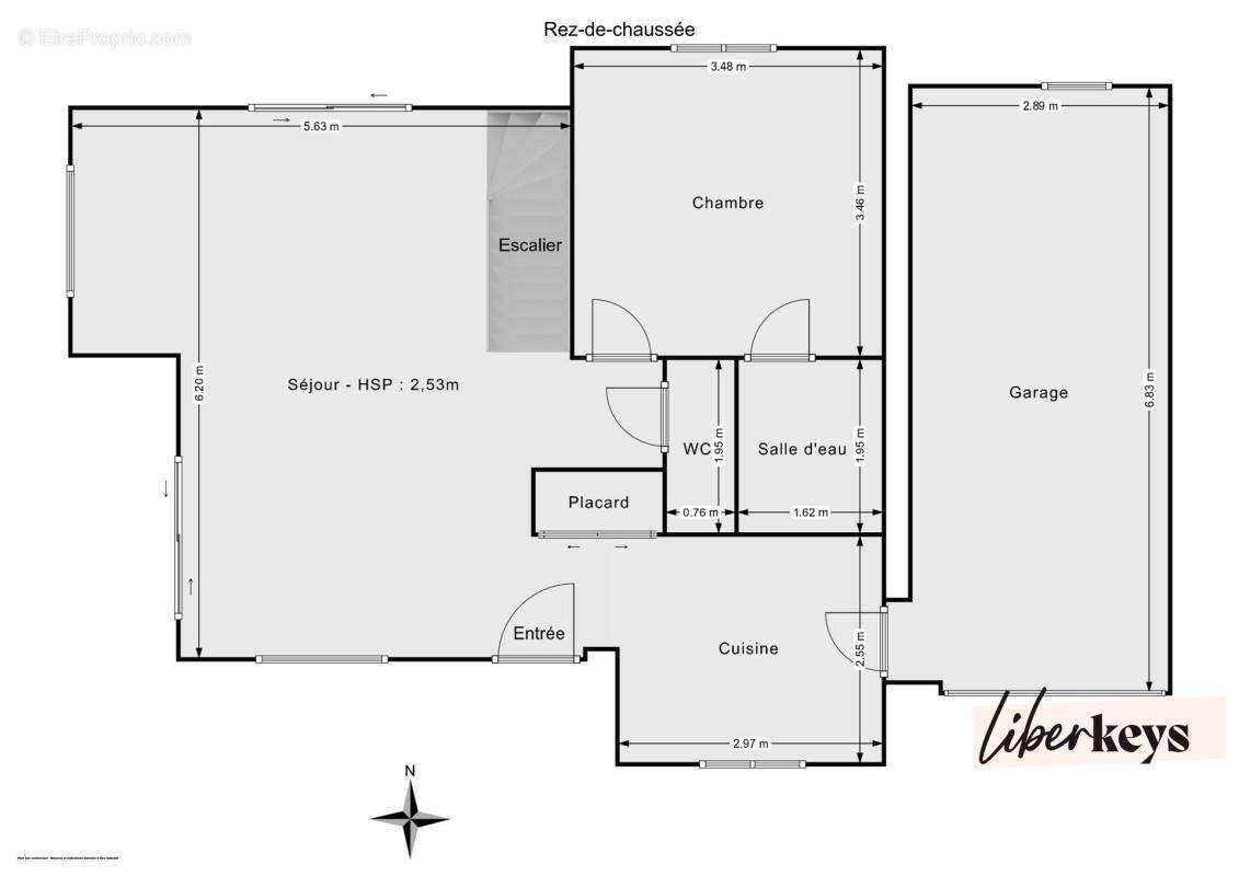
Dès l'entrée, vous découvrez une vaste pièce de vie, baignée de lumière grâce à son exposition traversante, idéale pour des moments conviviaux en famille ou entre amis.
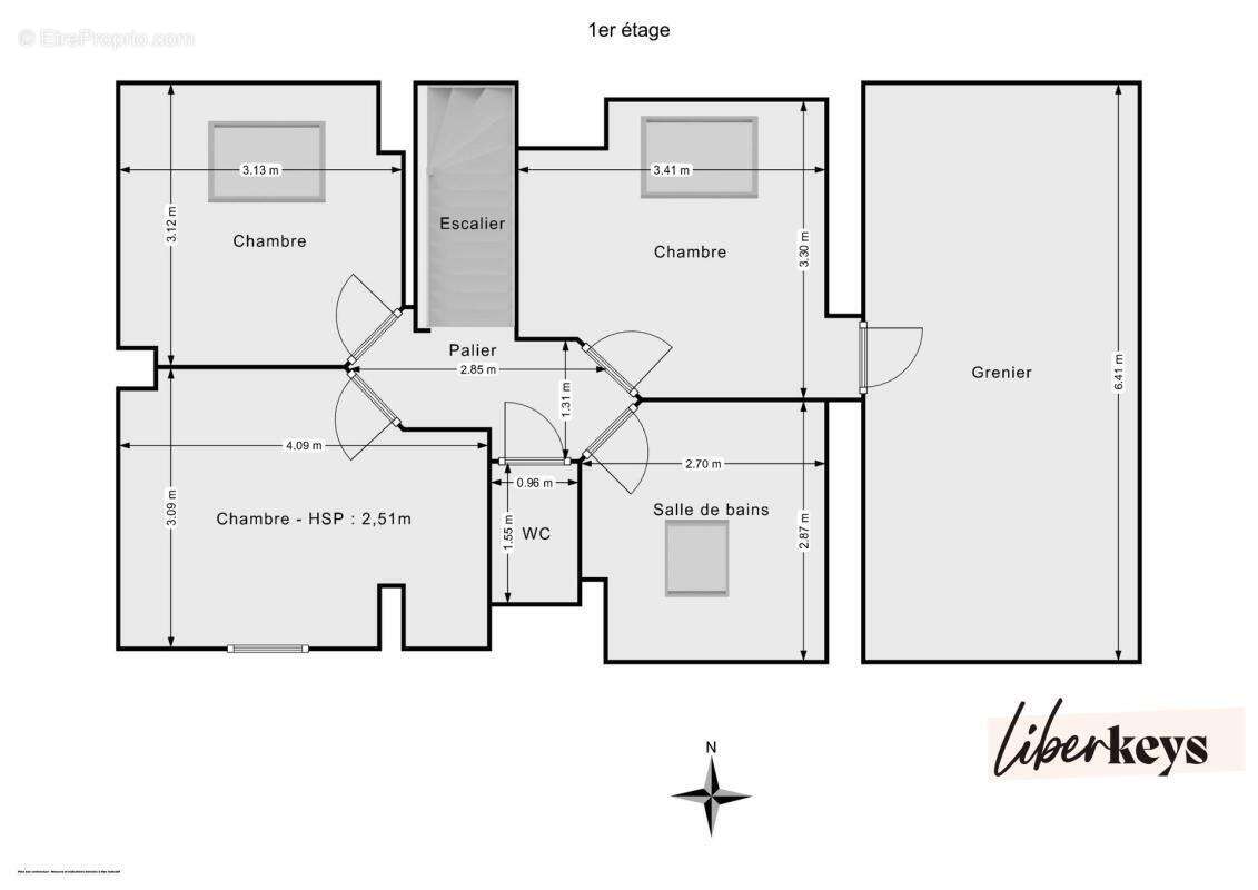
La cuisine attenante est fonctionnelle et bien agencée, et les quatre chambres permettent à chacun de disposer de son propre espace.
Un grenier de 20 m² à l'étage offre un beau potentiel d'aménagement supplémentaire selon vos besoins.
Le garage de 20 m², déjà construit en briques et plâtré, peut également être transformé en chambre, salle de jeu ou bureau, ajoutant encore à la modularité du bien.

Une localisation idéale
À proximité immédiate des écoles, espaces verts, commerces, restaurants et équipements sportifs, cette maison est parfaite pour une vie de famille équilibrée entre nature et commodités.

Informations complémentaires :

Taxe foncière avantageuse : 588 €/an

Estimation des dépenses annuelles d'énergie : entre 523 € et 890 € (prix indexés sur 2024, abonnements inclus)

Ce bien vous intéresse ?
Contactez directement votre conseiller :
Vincent Desgrippes, agent commercial immatriculé au RSAC de Vannes sous le numéro 808 985 915.
Référence annonce : DOM19814 – Diagnostic réalisé le 15/04/2025.
Honoraires à la charge de l'acquéreur.
Voir plus

Référence: DOM19814
Honoraires d'agence de 3.5% à la charge de l'acquéreur
DPE
A
B
C
D
E
F
G
GES
A
B
C
D
E
F
G

Prêt immobilier

Vous souhaitez connaître votre capacité d’emprunt et trouver le meilleur crédit immobilier ?
Réaliser une simulation gratuite

Maison à ELVEN
Maison à ELVEN
Maison à ELVEN
Maison à ELVEN
Maison à ELVEN
Maison à ELVEN
Maison à ELVEN
Maison à ELVEN
Ce site est protégé par reCAPTCHA la Politique de confidentialité et les Conditions d’utilisation de Google s’appliquent.
Obtenir un prêt immobilier au meilleur taux ?

En poursuivant votre navigation sans modifier vos paramètres, vous acceptez l'utilisation de cookies susceptibles de réaliser des statistiques de visite. Cliquez ici pour plus d'informations