Bénéficiez des services de nos partenaires locaux soigneusement sélectionnés
pour vous accompagner dans votre parcours d'achat immobilier

Appartement 60m² à neuilly-sur-seine

— Neuilly-Sur-Seine 92200 —
599 000 €
60 m²
3 pièces

Nos partenaires locaux
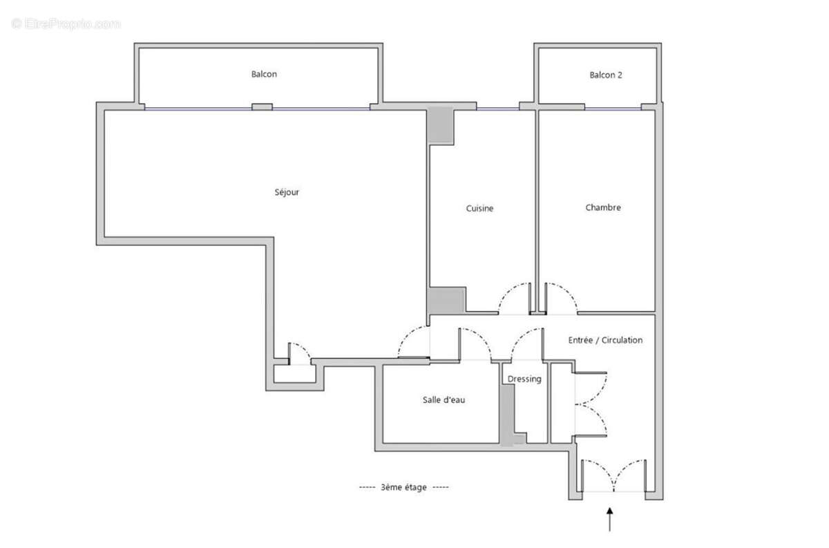
ERA IMMOBILIER, premier réseau d'agences en Europe vous propose en EXCLUSIVITE à Neuilly-sur-Seine à quelques pas de l'Hôpital Américain, découvrez cet élégant appartement de standing sur jardin, avec ascenseur, situé dans une résidence parfaitement entretenue avec gardiens.
Dès l'entrée un spacieux hall avec dressing. Un couloir distribue un salon-séjour très lumineux ouvrant sur un grand balcon (6,65m2). Une chambre dotée de rangements intégrés et de son propre balcon (2,2m2). Une salle d'eau contemporaine disposant d'une douche à l'italienne et toilettes. Un dressing indépendant et une cuisine aménagée. Possibilité 2 chambres en cloisonnant le salon (configuration d'origine) ou en lieu et place de la cuisine actuelle.
Une cave complète ce bien. Possibilité de parking en sus.
Appartement en parfait état. Chauffage collectif.
Un bien rare dans un secteur résidentiel et arboré avec prestations de qualité.
* Des suggestions de rénovation et d'aménagement générées par IA sont disponibles pour vous aider à visualiser le potentiel du bien. (Visuels non contractuels.)
Contactez-nous au : [Coordonnées masquées]
Voir plus

Référence: 736
DPE
A
B
C
D
E
F
G
GES
A
B
C
D
E
F
G

Prêt immobilier

Vous souhaitez connaître votre capacité d’emprunt et trouver le meilleur crédit immobilier ?
Réaliser une simulation gratuite

Appartement à NEUILLY-SUR-SEINE
Appartement à NEUILLY-SUR-SEINE
Appartement à NEUILLY-SUR-SEINE
Appartement à NEUILLY-SUR-SEINE
Appartement à NEUILLY-SUR-SEINE
Appartement à NEUILLY-SUR-SEINE
Appartement à NEUILLY-SUR-SEINE
Appartement à NEUILLY-SUR-SEINE
Appartement à NEUILLY-SUR-SEINE
Appartement à NEUILLY-SUR-SEINE
Ce site est protégé par reCAPTCHA la Politique de confidentialité et les Conditions d’utilisation de Google s’appliquent.
Obtenir un prêt immobilier au meilleur taux ?

En poursuivant votre navigation sans modifier vos paramètres, vous acceptez l'utilisation de cookies susceptibles de réaliser des statistiques de visite. Cliquez ici pour plus d'informations