Maison 105m² à saint-saulve

— Saint-Saulve 59880 —
224 900 €
105 m²
5 pièces

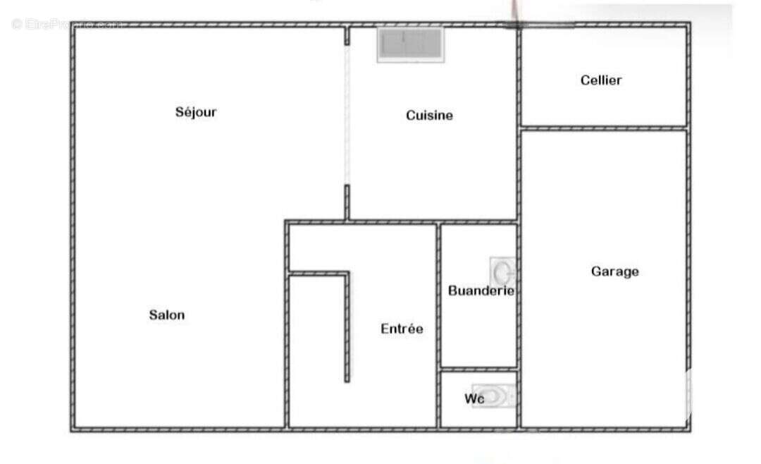
Iad France - Nathalie Azambre vous propose : Agréable maison semi individuelle avec garage attenant sur la commune prisée de Saint Saulve.
Belle entrée dégagée avec coin rangement, wc séparés, buanderie.
Double accès depuis cette entrée aux pièces de vie :
Cuisine équipée avec cellier et garage attenant ouverte sur un séjour et un salon agréable et lumineux (traversant) de 32 m², disposant de 2 portes fenêtres menant à une terrasse et un beau jardin clos de 250 m² exposé sud / ouest.
Porte de service depuis le cellier / garage donnant accès également au jardin, pratique!
À l'étage vous trouverez 4 belles chambres (rare ! ) sur parquet (12 / 12 / 10 / 10 m²), une salle de bains avec douche et baignoire ! Wc séparés !
Maison très fonctionnelle, lumineuse, au calme en large impasse, avec places de parking pour les visites famille / amis.
1 cave traversante (devanture / jardin) avec Adoucisseur, chaudière gaz avec ballon d'eau chaude.
Double vitrage partout avec volets.
1 grenier isolé avec plancher, accessible par trappe (prêt à être aménagé).
2 places de stationnement devant le garage sur macadam, avec 2 points de charge indépendants pour véhicules électriques dont une de 32A avec gestion à distance.
Poêle a granulés programmable.
Travaux d'électricité effectués.
Situation idéale à proximité immédiate des commerces transports écoles et centre ville mais au calme!
Tout y est!
Faire vite produit recherché

Honoraires d'agence à la charge du vendeur.
Information d'affichage énergétique sur ce bien : classe ENERGIE D indice 196 et classe CLIMAT D indice 35. Les informations sur les risques auxquels ce bien est exposé, y compris l'obligation légale de débroussaillement, sont disponibles sur le site Géorisques : http://www.georisques.gouv.fr.
La présente annonce immobilière a été rédigée sous la responsabilité éditoriale de Mme Nathalie Azambre mandataire indépendant en immobilier (sans détention de fonds), agent commercial de la SAS I@D France immatriculé au RSAC de VALENCIENNES sous le numéro 843098617, titulaire de la carte de démarchage immobilier pour le compte de la société I@D France SAS.
Informations LOI ALUR :
Honoraires charge vendeur. (gedeon_6727_31759519)
Voir plus

Référence: 1807045
Honoraires à la charge du vendeur.
DPE
A
B
C
D
E
F
G
GES
A
B
C
D
E
F
G

Prêt immobilier

Vous souhaitez connaître votre capacité d’emprunt et trouver le meilleur crédit immobilier ?
Réaliser une simulation gratuite

Photo 1 - Maison à SAINT-SAULVE
Photo 1
Photo 2 - Maison à SAINT-SAULVE
Photo 2
Photo 3 - Maison à SAINT-SAULVE
Photo 3
Photo 4 - Maison à SAINT-SAULVE
Photo 4
Photo 5 - Maison à SAINT-SAULVE
Photo 5
Photo 6 - Maison à SAINT-SAULVE
Photo 6
Photo 7 - Maison à SAINT-SAULVE
Photo 7
Photo 8 - Maison à SAINT-SAULVE
Photo 8
Photo 9 - Maison à SAINT-SAULVE
Photo 9
Ce site est protégé par reCAPTCHA la Politique de confidentialité et les Conditions d’utilisation de Google s’appliquent.
Obtenir un prêt immobilier au meilleur taux ?

En poursuivant votre navigation sans modifier vos paramètres, vous acceptez l'utilisation de cookies susceptibles de réaliser des statistiques de visite. Cliquez ici pour plus d'informations