Bénéficiez des services de nos partenaires locaux soigneusement sélectionnés
pour vous accompagner dans votre parcours d'achat immobilier

Appartement 3 pièces avec terrasse et garage

— Nantes 44300 —
190 000 €
61 m²
3 pièces
parkingbalcon/terrasseascenseur

Nos partenaires locaux
EN EXCLUSIVITÉ, NANTES- ROND POINT DE PARIS
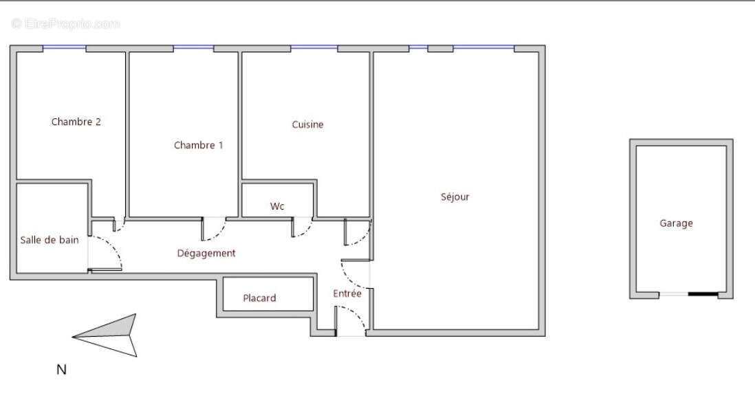
Découvrez ce charmant appartement T3, un véritable havre de paix au coeur d'un environnement calme ! Avec sa terrasse d'environ 24 m2 donnant sur une cour intérieure, vous profiterez d'une luminosité toute la journée. Dès l'entrée, laissez-vous séduire par un espace accueillant qui s'ouvre sur un salon/séjour baigné de lumière, idéal pour vos moments de convivialité. La cuisine séparée vous offre un espace fonctionnel pour préparer vos repas. L'appartement comprend deux belles chambres, dont une équipée d'un dressing pratique pour optimiser votre rangement. Une salle de bains et un WC séparé complète ce bien confortable. Les atouts supplémentaires : double vitrage avec volets roulants pour votre confort, un local à vélo et un garage privatif au sein de la copropriété. Vous apprécierez également la proximité des transports en commun (C1 et tram 1), des écoles, lycées (Blanche de Castille, Livet, Clémenceau) ainsi que les facs, A proximité des commerces Informations pratiques : - Copropriété de 20 lots - Charges annuelles : 1193 EUR (soit 298 EUR par trimestre) - Taxe foncière : 1251 EUR - Diagnostic énergétique : DPE D (indice 223), GES C (indice 45) Un grand merci à Sweet Home et à Valérie Bodineau, décoratrice d'intérieur, pour leur contribution à l'aménagement (photos non contractuelles).
Honoraires : TTC de 184 000 EUR ( prix de vente honoraires exclus). Soit 190 000 EUR honoraires . inclus. Honoraires à la charge de l'acquéreur. Pour une visite contacter votre conseiller Noovimo Sylvie Cayen [Coordonnées masquées] [Coordonnées masquées] vous. Nos honoraires sont consultables sur : www.noovimo.fr.Ref : 18257SCN .Votre agent indépendant Noovimo inscrit au RSAC de Nantes No RSAC 823 213 475. Les informations sur les risques auxquels ce bien est exposé sont disponibles sur le site Géorisques : http://www.georisques.gouv.fr 1 - Annonce rédigée et publiée par un Agent Mandataire -
Cette annonce vous est proposée par NOOVIMO OUEST - - NoRSAC: , Enregistré à de - Annonce rédigée et publiée par un Agent Mandataire -
Voir plus

Référence: 19_SCN7-0018994
Bien en copropriété. Nombre de lots : 2. Charges de copropriété : 94 €.
Honoraires d'agence de 3.26% à la charge de l'acquéreur
DPE
A
B
C
D
E
F
G
GES
A
B
C
D
E
F
G

Prêt immobilier

Vous souhaitez connaître votre capacité d’emprunt et trouver le meilleur crédit immobilier ?
Réaliser une simulation gratuite

Appartement à NANTES
Appartement à NANTES
Appartement à NANTES
Appartement à NANTES
Appartement à NANTES
Appartement à NANTES
Appartement à NANTES
Appartement à NANTES
Appartement à NANTES
Appartement à NANTES
Appartement à NANTES
Appartement à NANTES
Appartement à NANTES
Ce site est protégé par reCAPTCHA la Politique de confidentialité et les Conditions d’utilisation de Google s’appliquent.
Obtenir un prêt immobilier au meilleur taux ?

En poursuivant votre navigation sans modifier vos paramètres, vous acceptez l'utilisation de cookies susceptibles de réaliser des statistiques de visite. Cliquez ici pour plus d'informations