Bénéficiez des services de nos partenaires locaux soigneusement sélectionnés
pour vous accompagner dans votre parcours d'achat immobilier

Coup de coeur ! appartement de 96 m² au sol - dernier étage avec ascenseur - très lumineux - quai des queyries 33100 bordeaux

— Bordeaux 33100 —
385 000 €
89 m²
4 pièces
parkingbalcon/terrasseascenseur

Nos partenaires locaux
Hosman vous propose à la vente ce 4 pièces d'une surface de 82,5 m² Carrez, situé Quai des Queyries à Bordeaux.

Profitez de ce splendide appartement situé sur la rive droite. Sorti de terre en 2019, ce T4 a toutes les qualités requises pour vous combler vous et votre famille. Luminosité, espace extérieur, place de parking, rangements, ce bien n'attend que vous et vos valises. Ne passez pas à côté de ce havre de paix.

L'appartement est situé au quatrième et dernier étage d'un immeuble bâti en 2019. L'appartement est en duplex.
Un ascenseur est présent dans l'immeuble.
La résidence est également sécurisée.

Le bien se compose :

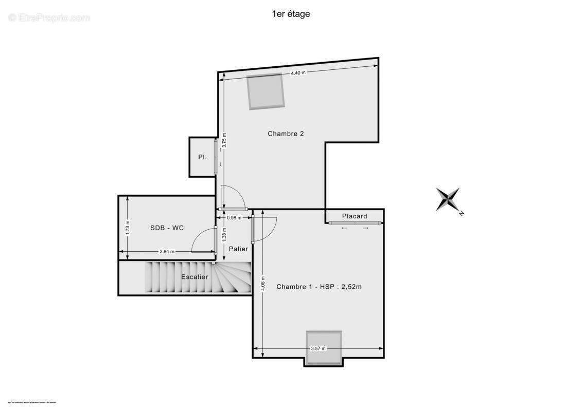
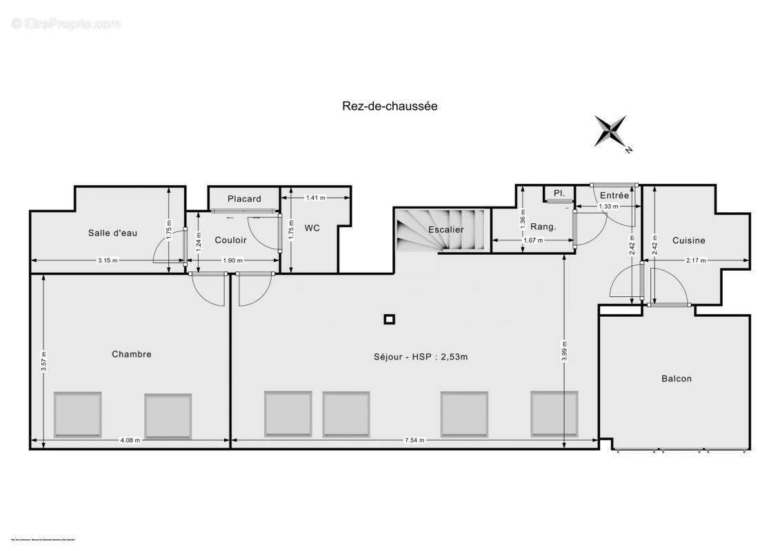
au 1er étage :
D'un séjour de 30 m², exposé Nord Est.
Un balcon de 8m² est rattaché au séjour et est exposé Nord Est
D'une chambre de 14,56 m²
D'une cuisine de 5m² entièrement équipée
D'une salle d'eau de 5,51 m².
D'un sellier.
Ce bien comporte également des toilettes séparées.

Au 2nd étage :
D'une chambre de 14,74 m²
Une seconde chambre de 13,64 m²
Une salle de bain de 4,56 m²

De nombreux emplacements de rangements sont présents.

Une place de parking intérieure accompagne ce bien.
Un local à vélo / un local à poussette est également présent dans l'immeuble.

Le bien se situe à proximité direct de l'écosystème Darwin.
Il est également proche des transports en communs, mais aussi de toutes commodités. (écoles, commerces, restaurants.)
Tout comme le Bato, pour ralier rive gauche.

Le système de chauffage est: Collectif

Les charges de copropriété s'élèvent à 638 € par trimestre.
La taxe foncière est de 1835 €.

Le bien est soumis au statut de copropriété.

Profitez de la visite virtuelle en 3D pour vous projeter dans ce bien !
Si vous souhaitez le visiter, choisissez le créneau qui vous convient le mieux et planifiez votre visite en toute autonomie, depuis notre site hosman . co

Hosman s'efforce de réinventer l'agence immobilière en offrant un service innovant et transparent aux acheteurs et aux vendeurs.
Nos frais d'agence sont de 6900 euros fixes à la charge du vendeur.
Si vous êtes un professionnel de l'immobilier (agent, mandataire ou chasseur immobilier) sachez que toutes les annonces Hosman sont ouvertes à la collaboration. N'hésitez pas à nous contacter pour en discuter.
Voir plus

Référence: 0261b8
Bien en copropriété. Charges de copropriété : 228 €.
Honoraires à la charge du vendeur.
DPE
A
B
C
D
E
F
G
GES
A
B
C
D
E
F
G

Prêt immobilier

Vous souhaitez connaître votre capacité d’emprunt et trouver le meilleur crédit immobilier ?
Réaliser une simulation gratuite

Appartement à BORDEAUX
Appartement à BORDEAUX
Appartement à BORDEAUX
Appartement à BORDEAUX
Appartement à BORDEAUX
Appartement à BORDEAUX
Appartement à BORDEAUX
Appartement à BORDEAUX
Appartement à BORDEAUX
Appartement à BORDEAUX
Appartement à BORDEAUX
Appartement à BORDEAUX
Appartement à BORDEAUX
Appartement à BORDEAUX
Appartement à BORDEAUX
Ce site est protégé par reCAPTCHA la Politique de confidentialité et les Conditions d’utilisation de Google s’appliquent.
Obtenir un prêt immobilier au meilleur taux ?

En poursuivant votre navigation sans modifier vos paramètres, vous acceptez l'utilisation de cookies susceptibles de réaliser des statistiques de visite. Cliquez ici pour plus d'informations