Maison 210m² à odenas

— Odenas 69460 —
359 000 €
210 m² / 927 m²
8 pièces
parkingbalcon/terrassejardinaccès handicapé

EXCLUSIVITE
Maison familiale de 210 m² avec vue sur le Beaujolais sur terrain de 930m2 – Fort potentiel
Située dans un environnement calme à Odenas, avec une belle vue dégagée sur le Beaujolais, cette grande maison des années 90 offre un cadre de vie agréable et sans vis-à-vis.
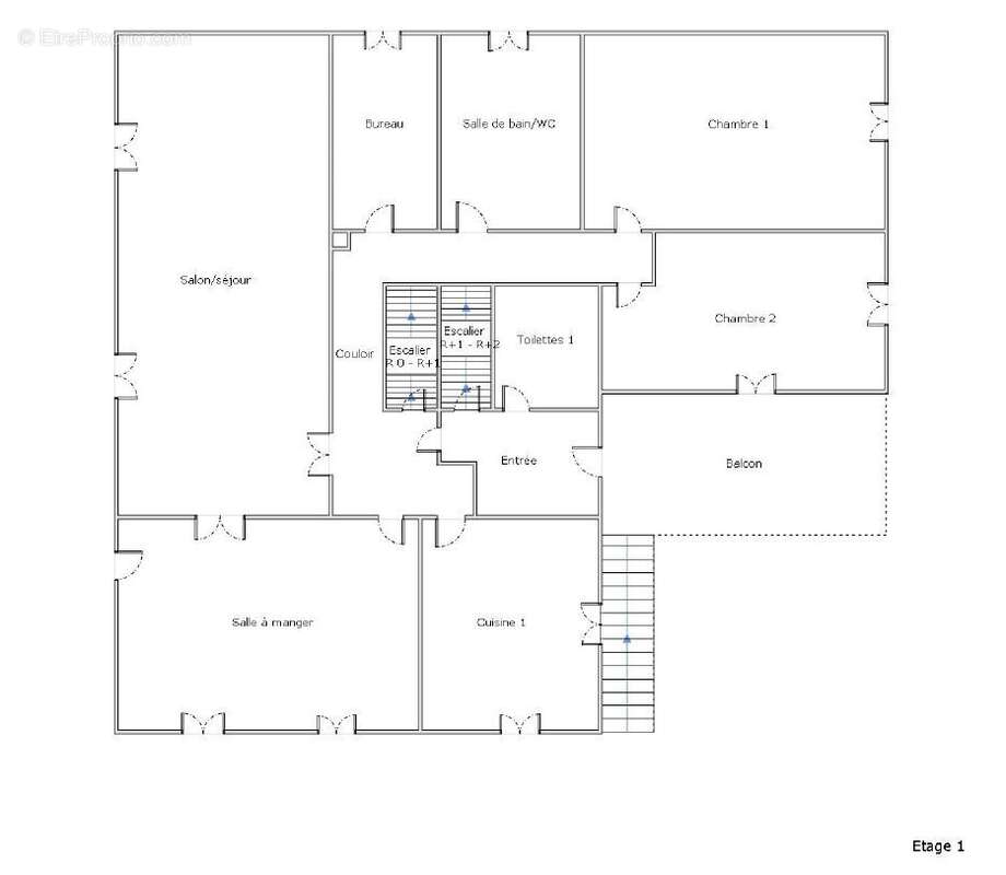
D'une surface habitable d'environ 210 m², elle propose de beaux volumes avec un grand salon, un séjour lumineux, une cuisine indépendante, 5 grandes chambres de 13 à 20m2, une grande salle de bain, une salles d'eau et un bureau.
Une maison idéale pour accueillir une grande famille, elle offrent des possibilités d'aménagement très intéressantes, notamment pour accueillir plusieurs générations ou envisager une division en deux logements.
Un espace de vie de 70m2 pourrait être aisément crée en suppriment quelques cloisons.
Le sous-sol complet d'environ 150 m² offre un espace exceptionnel : garage, atelier, stockage, salle de jeux, tout est possible.
Vous profiterez également d'une grande terrasse pour passer d'agréable moment en contemplant le beaujolais environnant.
La parcelle clos et arboré de plus de 930m² permet de profiter d'un jardin agréable et au calme, vous bénéficierez de toutes les commodités, école, lycée, collège, commerces, gare, A6 à seulement 10 ou 15min. (Belleville en Beaujolais)
Des travaux de rafraîchissement sont à prévoir, mais la structure est saine et le potentiel est énorme.
Cette maison attend simplement que leurs nouveaux propriétaire la remette au goût du jour.
Un accès en plain pied à été pensé pour plus de facilité au quotidien ! (Trois accès au total terrasse, garage et plain pied)
Le chauffage est assuré par une chaudière à granulés entretenue et installée en 2017 et un insert bois dans le salon, le cumulus est récent, la toiture, la plomberie, l'électricité ainsi que la façade sont en bon état.
Coup de coeur assuré pour les amateurs d'espace et de tranquillité !
Contactez-moi vite pour une visite.
Retrouvez les coordonnées de l'agent directement sur l'annonce du site internet ci dessous.
www.tendance-immo.fr
Votre Conseiller immobilier
Laurent JURADO
Tel: [Coordonnées masquées]
ESTIMATION GRATUITE DE VOTRE BIEN IMMOBILIER [Coordonnées masquées]
[Coordonnées masquées]
RSAC 904 637 741 EI Villefranche sur Saône/Tarare
Retrouvez l'annonce de l'agence immobilière TENDANCE IMMOBILIER CONSEILS sur : http://www.tendance-immo.fr/immobilier/maison-maison-de-campagne-odenas-vente-fr_VM1212.htm
Voir plus

Référence: VM1212-TENDANCEIMMO
Honoraires à la charge du vendeur.
Barème des honoraires
DPE
A
B
C
D
E
F
G
GES
A
B
C
D
E
F
G

Prêt immobilier

Vous souhaitez connaître votre capacité d’emprunt et trouver le meilleur crédit immobilier ?
Réaliser une simulation gratuite

Maison à ODENAS
Maison à ODENAS
Maison à ODENAS
Maison à ODENAS
Maison à ODENAS
Maison à ODENAS
Maison à ODENAS
Maison à ODENAS
Maison à ODENAS
Ce site est protégé par reCAPTCHA la Politique de confidentialité et les Conditions d’utilisation de Google s’appliquent.
Obtenir un prêt immobilier au meilleur taux ?

En poursuivant votre navigation sans modifier vos paramètres, vous acceptez l'utilisation de cookies susceptibles de réaliser des statistiques de visite. Cliquez ici pour plus d'informations