Bien rare / deficit foncier – ensemble immobilier de 267 m² a renover situé en cœur de ville, avec stationnement et jardin (terr

— Frouzins 31270 —
499 000 €
267 m² / 500 m²
4 pièces
parkingjardin

Venez découvrir cet ensemble immobilier à fort potentiel A RENOVER, au sein d’une belle maison de ville de fin XIXéme/début XXème siècle: scindée en deux lieux de vie séparés (un par niveau, chacun bénéficiant d’une entrée indépendante), pouvant faire l'objet d'une rénovation globale pour divers usages : résidence principale, lieu d’activités de services ou autres…

Chaque logement est également à la vente de manière dissociée.

Traversant, lumineux, ce bien a conservé son cachet d’origine : carrelage et parquet d’époque, radiateurs en fonte, belle hauteur sous plafond, cheminées….

En cœur de ville de FROUZINS, à quelques pas des commerces, services, écoles et collège.
Arrêt de bus à 5 mn, gare de Portet-sur-Garonne à 10 mn, aéroport de Blagnac à 20 mn, Toulouse à 30 mn.

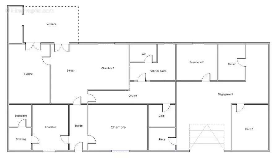
En rez-de-chaussée, vous découvrirez un T4 de 105,27 m², composé d’un couloir d’entrée desservant :
- 2 belles pièces avec placards de rangement sur l’avant (15,8 m² et 17,5 m²)
- le séjour avec cuisine séparée et cellier attenant, disposant également d’un espace supplémentaire pouvant être ouvert ou fermé selon les usages, le tout représentant 43,72 m². Cet espace s’ouvre une véranda de 14 m² donnant sur le jardin d’environ 250 m² exposé sud ouest.
Un couloir permet l’accès à la salle d’eau et ses toilettes, ainsi qu’à une buanderie et un espace garage auquel sont associées plusieurs pièces.

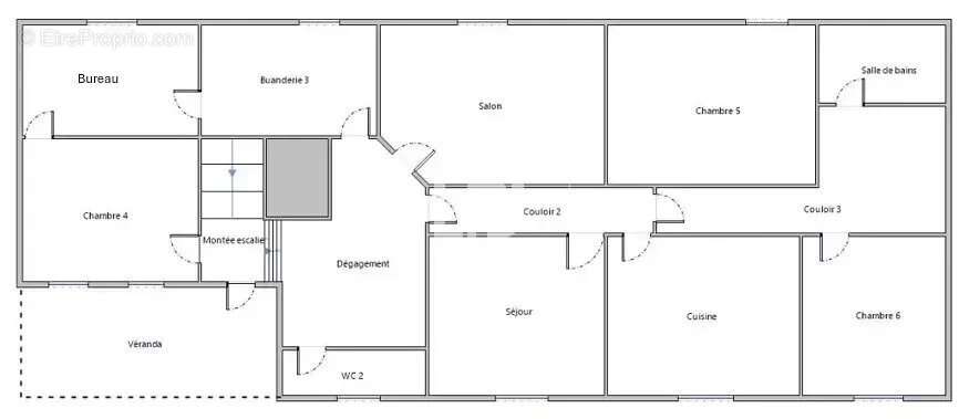
Le second logement, un T5 de 162,17 m², est situé au 1er étage et dispose d'une entrée indépendante. Il est composé d’une belle entrée (10,94 m²) en rez-de-chaussée accueillant un magnifique escalier avec garde-corps en ferronnerie permettant d’accéder à l’appartement.

Un vaste dégagement (16,6 m²) dessert d’une part le salon (16,3 m²), et d’autre part le séjour (17,66 m²), doté d’une magnifique cheminée fonctionnelle. La cuisine (11,65 m²) est attenante au séjour.

Cet appartement offre également deux espaces nuits séparés :
- l’un accueille une chambre (16,12 m²) ainsi qu’un bureau pouvant faire office de dressing (13,4 m²)
- le second, accessible par un couloir depuis les pièces de vie, dessert 2 chambres (10,2 m² et 18,7 m²) ainsi qu’une salle de bain (6,3 m²).
Toilettes séparées.

Cet appartement dispose également d’une buanderie (9,1 m²) et d’une véranda (15,8 m²) orientée sud-ouest donnant sur le jardin.

En complément un jardin de 500 m² (terrain constructible à viabiliser) disposant d'un accès véhicule complète ce bien qui ne demande qu’à être aménagé à votre convenance !


Ce bien ne demande qu’à être aménagé à votre convenance!

Contactez-nous pour tout complément d’information ou pour organiser une visite, nous vous accompagnons dans votre projet immobilier.

SARL au capital de 1 000 € RCS Toulouse 893 458 547 Code NAF : 6831Z - Siège social : 25 rue des Crouzettes 31120 PORTET SUR GARONNE – France -Carte professionnelle « Transaction sur immeuble et fonds de commerce » N° CPI 000 030 délivrée par la CCI de Toulouse (Haute-Garonne).

Honoraires à la charge des acquéreurs

Date de réalisation du dossier des diagnostics : 23/10/2023. Montant estimé des dépenses annuelles d'énergie pour un usage standard : entre 5 140 € et 7 000 € par an. Prix moyens des énergies indexés au 1er janvier 2021 (abonnements compris). Consommation énergie primaire : 334 kWh/m²/an. Consommation énergie finale : 320 kWh/m²/an.
Voir plus

Référence: 85982910
DPE
A
B
C
D
E
F
G
GES
A
B
C
D
E
F
G

Prêt immobilier

Vous souhaitez connaître votre capacité d’emprunt et trouver le meilleur crédit immobilier ?
Réaliser une simulation gratuite

Appartement à FROUZINS
Appartement à FROUZINS
Appartement à FROUZINS
Appartement à FROUZINS
Appartement à FROUZINS
Appartement à FROUZINS
Appartement à FROUZINS
Appartement à FROUZINS
Appartement à FROUZINS
Appartement à FROUZINS
Appartement à FROUZINS
Appartement à FROUZINS
Appartement à FROUZINS
Appartement à FROUZINS
Appartement à FROUZINS
Appartement à FROUZINS
Appartement à FROUZINS
Appartement à FROUZINS
Appartement à FROUZINS
Appartement à FROUZINS
Ce site est protégé par reCAPTCHA la Politique de confidentialité et les Conditions d’utilisation de Google s’appliquent.
Obtenir un prêt immobilier au meilleur taux ?

En poursuivant votre navigation sans modifier vos paramètres, vous acceptez l'utilisation de cookies susceptibles de réaliser des statistiques de visite. Cliquez ici pour plus d'informations