Bénéficiez des services de nos partenaires locaux soigneusement sélectionnés
pour vous accompagner dans votre parcours d'achat immobilier

Cœur de village, bords de garonne – maison lumineuse 4 chambres + 1 bureau, avec piscine sur une parcelle de près de 1500 m², va

— Portet-Sur-Garonne 31120 —
850 000 €
351 m²
9 pièces
parking

Nos partenaires locaux
En exclusivité,

Venez découvrir cette superbe maison familiale, située au calme, à proximité immédiate des bords de Garonne, des parcs, des commerces et services du cœur de Village de Portet-sur-Garonne et de toutes commodités.
Bus à quelques pas, accessibilité téléphérique et centre-ville de Toulouse en 20 mn.
Gare de Portet-sur-Garonne à 5 mn de bus, Toulouse à 10 mn de train.
Périphérique à 5 mn de voiture.

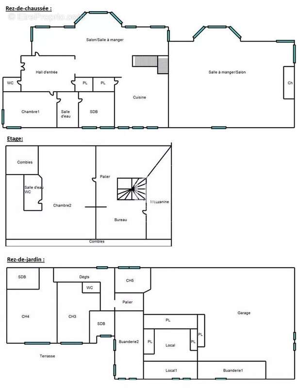
Vous serez charmés par la qualité de vie, les volumes, la fonctionnalité et la luminosité qu’offre cette maison. De style Art Déco, elle a été rénovée en 2020 avec des matériaux de bonne facture, lui conférant un bien-être au quotidien. Elle se compose comme suit :
- Une belle entrée (16 m²) avec un espace dressing.
- Au cœur d'une rotonde baignée de lumière, la cuisine s'unit à la salle à repas (69 m²) dans une harmonie de volumes et de douceur. De là, une vaste terrasse orientée sud-est domine un jardin verdoyant et paysager, ainsi que la piscine.
- Dans une atmosphère majestueuse, un vaste salon/salle à manger de 73 m² s'élève sous un toit cathédrale, où les poutres apparentes dessinent des lignes de caractère et d'authenticité. Cette pièce est sublimée par de superbes vitraux qui projettent, au fil du jour, des jeux de couleurs et de reflets, offrant un décor changeant et inspirant.

Le rez-de-chaussée dispose également d’une suite parentale de 38 m² : 1 belle chambre avec placards (18 m²) ainsi qu’une salle de bain (20 m²) avec baignoire, douche à l’italienne et espaces de rangement.
Toilettes séparées avec lave-mains.

L’étage est accessible par un escalier en bois. Il dessert un bureau (11 m²) qui dispose également d’un accès à une mezzanine (5 m²) en surplomb du salon/salle à manger, ainsi qu’une seconde suite parentale de 40 m² : une chambre (26 m²), un espace dressing (11 m²) et une salle d’eau avec toilettes.

Le rez-de-jardin, accessible également par une entrée indépendante, dessert 2 belles chambres (27 m² et 31 m²), chacune disposant de sa propre salle de bain et donnant sur une terrasse face à la piscine.
Toilettes séparées avec lave-mains.
Cet espace pourrait accueillir un usage indépendant.

Ce bien prend place au sein d’une parcelle arborée de près de 1500 m² avec piscine (10 m x 5 m) à l’abri des regards.

En complément, vous disposerez d’un grand garage (102 m²) permettant de garer plusieurs voitures, de deux buanderies (dont une avec point d’eau), d’autres pièces permettant des espaces de rangement complémentaires, ainsi qu’une cave, le tout représentant une surface de 95 m².

Stationnement possible de 3 voitures sur la parcelle, portail électrique.

Cette maison dispose également des équipements suivants: chauffage gaz (chaudière thermodynamique), complété par des climatisations réversibles, menuiseries intérieur bois/extérieur alu, volets électriques.

Un bien RARE qui vous séduira !

Contactez-nous pour tout complément d’information ou pour organiser une visite, nous vous accompagnons dans votre projet immobilier.

SARL au capital de 1 000 € RCS Toulouse 893 458 547 Code NAF : 6831Z
Siège social : 25 rue des Crouzettes 31120 PORTET SUR GARONNE – France
Carte professionnelle « Transaction sur immeuble et fonds de commerce » N° CPI 000 030 délivrée par la CCI de Toulouse (Haute-Garonne).

Honoraires à la charge de : Acquéreur
Date de réalisation du diagnostic énergétique : 23/04/2025. Montant estimé des dépenses annuelles d'énergie pour un usage standard : entre 3 571 € et 4 831 € par an. Prix moyens des énergies indexés sur les années 2021 à 2023 (abonnements compris). Consommation énergie primaire : 128 kWh/m²/an. Consommation énergie finale : 101 kWh/m²/an.
Voir plus

Référence: 85891821
DPE
A
B
C
D
E
F
G
GES
A
B
C
D
E
F
G

Prêt immobilier

Vous souhaitez connaître votre capacité d’emprunt et trouver le meilleur crédit immobilier ?
Réaliser une simulation gratuite

Maison à PORTET-SUR-GARONNE
Maison à PORTET-SUR-GARONNE
Maison à PORTET-SUR-GARONNE
Maison à PORTET-SUR-GARONNE
Maison à PORTET-SUR-GARONNE
Maison à PORTET-SUR-GARONNE
Maison à PORTET-SUR-GARONNE
Maison à PORTET-SUR-GARONNE
Maison à PORTET-SUR-GARONNE
Maison à PORTET-SUR-GARONNE
Maison à PORTET-SUR-GARONNE
Maison à PORTET-SUR-GARONNE
Maison à PORTET-SUR-GARONNE
Maison à PORTET-SUR-GARONNE
Maison à PORTET-SUR-GARONNE
Maison à PORTET-SUR-GARONNE
Maison à PORTET-SUR-GARONNE
Maison à PORTET-SUR-GARONNE
Maison à PORTET-SUR-GARONNE
Maison à PORTET-SUR-GARONNE
Maison à PORTET-SUR-GARONNE
Maison à PORTET-SUR-GARONNE
Maison à PORTET-SUR-GARONNE
Maison à PORTET-SUR-GARONNE
Maison à PORTET-SUR-GARONNE
Maison à PORTET-SUR-GARONNE
Ce site est protégé par reCAPTCHA la Politique de confidentialité et les Conditions d’utilisation de Google s’appliquent.
Obtenir un prêt immobilier au meilleur taux ?

En poursuivant votre navigation sans modifier vos paramètres, vous acceptez l'utilisation de cookies susceptibles de réaliser des statistiques de visite. Cliquez ici pour plus d'informations