Bénéficiez des services de nos partenaires locaux soigneusement sélectionnés
pour vous accompagner dans votre parcours d'achat immobilier

Hem centre - immeuble mixte - professionnel et habitation 375 m2

— Hem 59510 —
370 000 €
375 m²
12 pièces
parking

Nos partenaires locaux
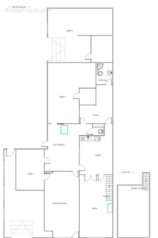
Fabrice PAYNE vous propose cet immeuble, ancien commerce, proche du centre ville, totalisant plus de 375 m2 utiles.
Il se compose actuellement de la partie professionnelle et d'une habitation, avec parking et garages, un extérieur de 100m2.
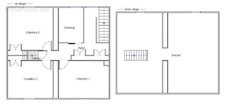
Les surfaces sont réparties comme suit: 262 m2 en RDC, 51 m2 au 1er étage, un comble aménageable de 45 m2 au sol, une cave saine et cuvelée de 23 m2.
L'habitation en elle-même fait 114 m2 habitables.
Bon état général et de nombreuses possibilités de redécoupage selon la destination ou l'activité future.
En bref une rare opportunité sur Hem ! Les honoraires d'agence sont à la charge de l'acquéreur, soit 4,23% TTC du prix hors honoraires.
Les informations sur les risques auxquels ce bien est exposé sont disponibles sur le site Géorisques : www. georisques. gouv. fr.

Contactez Fabrice PAYNE Entrepreneur Individuel, Agent commercial OptimHome (RSAC N°507 529 212 Greffe de LILLE) [Coordonnées masquées] (réf. 591352 )
Voir plus

Référence: 830032182917
DPE
A
B
C
D
E
F
G
GES
A
B
C
D
E
F
G

Prêt immobilier

Vous souhaitez connaître votre capacité d’emprunt et trouver le meilleur crédit immobilier ?
Réaliser une simulation gratuite

Appartement à HEM
Appartement à HEM
Appartement à HEM
Appartement à HEM
Appartement à HEM
Appartement à HEM
Appartement à HEM
Appartement à HEM
Appartement à HEM
Appartement à HEM
Appartement à HEM
Appartement à HEM
Appartement à HEM
Appartement à HEM
Appartement à HEM
Appartement à HEM
Appartement à HEM
Appartement à HEM
Appartement à HEM
Appartement à HEM
Appartement à HEM
Appartement à HEM
Ce site est protégé par reCAPTCHA la Politique de confidentialité et les Conditions d’utilisation de Google s’appliquent.
Obtenir un prêt immobilier au meilleur taux ?

En poursuivant votre navigation sans modifier vos paramètres, vous acceptez l'utilisation de cookies susceptibles de réaliser des statistiques de visite. Cliquez ici pour plus d'informations