Bénéficiez des services de nos partenaires locaux soigneusement sélectionnés
pour vous accompagner dans votre parcours d'achat immobilier

Lumineux t3 avec terrasse

— Rillieux-La-Pape 69140 —
229 000 €
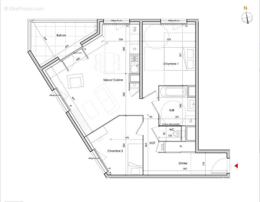
64 m²
3 pièces
balcon/terrasseascenseur

Nos partenaires locaux
Belle opportunité !

Tatiana SAUMET vous propose en exclusivité un T3 64 m², deux chambres avec terrasse ensoleillée.

A la recherche d'un appartement confortable, moderne et prêt à vous accueillir sans attendre ? Cet appartement jamais habité est une véritable opportunité !

Un emplacement idéal !
Situé à Rillieux-la-Pape, Avenue Victor Hugo, au 2 étage sur 3 d'une résidence récente (2024), profitez d'un cadre de vie agréable avec toutes les commodités à proximité : écoles, commerces, transports et gare accessibles en quelques minutes.

L'appartement se compose :

- D'un salon lumineux avec accès direct à une terrasse ensoleillée de 7 m² vue Mont d'Or (exposition nord-ouest).
- De deux chambres spacieuses et confortables.
- D'une cuisine ouverte sur le séjour pour un espace de vie convivial.
- D'une salle de bain moderne et de toilettes séparées.

A découvrir rapidement !

Bien en copropriété de 90 lots d'habitation (Pas de procédure en cours). Charges 1000 euros par ans.

DPE C
Estimation des coûts annuels d'énergie entre 405 euros et 548 euros.

Pour visiter et vous accompagner dans votre projet, contactez Tatiana SAUMET, au [Coordonnées masquées] ou par courriel à [Coordonnées masquées]

Mandat réf : 419310 - Le professionnel garantit et sécurise votre projet immobilier.
Copropriété de 200 lots - dont 90 lots habitation. ().

Charges annuelles : 1000 euros.
Tatiana SAUMET (EI) Agent Commercial - Numéro RSAC : LYON 844 566 315 - .
Les informations sur les risques auxquels ce bien est exposé sont disponibles sur le site Géorisques : www. georisques. gouv. fr
Voir plus

Référence: 419310STT
Bien en copropriété. Nombre de lots : 200. Charges de copropriété : 83 €.
Honoraires à la charge du vendeur.
DPE
A
B
C
D
E
F
G
GES
A
B
C
D
E
F
G

Prêt immobilier

Vous souhaitez connaître votre capacité d’emprunt et trouver le meilleur crédit immobilier ?
Réaliser une simulation gratuite

Appartement à RILLIEUX-LA-PAPE
Appartement à RILLIEUX-LA-PAPE
Appartement à RILLIEUX-LA-PAPE
Appartement à RILLIEUX-LA-PAPE
Appartement à RILLIEUX-LA-PAPE
Appartement à RILLIEUX-LA-PAPE
Appartement à RILLIEUX-LA-PAPE
Appartement à RILLIEUX-LA-PAPE
Appartement à RILLIEUX-LA-PAPE
Appartement à RILLIEUX-LA-PAPE
Appartement à RILLIEUX-LA-PAPE
Appartement à RILLIEUX-LA-PAPE
Appartement à RILLIEUX-LA-PAPE
Appartement à RILLIEUX-LA-PAPE
Ce site est protégé par reCAPTCHA la Politique de confidentialité et les Conditions d’utilisation de Google s’appliquent.
Obtenir un prêt immobilier au meilleur taux ?

En poursuivant votre navigation sans modifier vos paramètres, vous acceptez l'utilisation de cookies susceptibles de réaliser des statistiques de visite. Cliquez ici pour plus d'informations