Ploubazlanec - plage de launay à 400mètres, bourg et commerces à 1km ! familiale de charme! 8 pièces 220m²

— Ploubazlanec 22620 —
765 040 €
223 m² / 2 527 m²
8 pièces
jardin

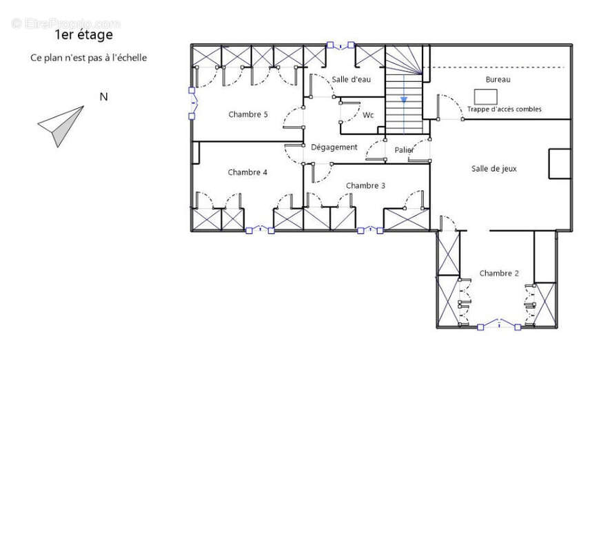
Je vous propose d'acquérir, dans un secteur prisé, une néo-bretonne de charme, située à quelques minutes de la mer, de 223m² sur un terrain paysager arboré de 2527 m². Cette confortable maison récemment rénové, nichée au coeur de la baie de Launay, offre une vue dégagée jusqu'à la mer ! Elle se compose au rez-de-chaussée : d'une belle entrée, d'une cuisine séparée aménagée/équipée avec une arrière-cuisine très fonctionnelle, un couloir dressing donne accès à la suite parentale avec une salle de bain/douche et wc. Un vaste salon/séjour lumineux de 60m² qui possède une cossue cheminée en pierre avec insert à bois, et s'ouvre sur une vaste terrasse de 80 m² exposée Sud-Est. Un bel escalier mène au 1er étage desservant : trois chambres, une salle d'eau, un WC séparé, Une grande pièce de 25m² (salle de sport ou cinéma) suivant les besoins, ... Cet espace vous conduit sur une cinquième belle chambre, ainsi qu'un spacieux bureau. Un Sous-sol complet avec plusieurs espaces : dont un garage de 60m², avec une buanderie, un atelier, une cave à vins, une pièce, un grand rangement sous la terrasse... Les huisseries sont en double vitrage/volets électriques. Cette propriété est reliée au tout à l'égout. Venez poser vos valises, bien rare à la vente ! Prix FAI : 765 040 euros dont 4.80 % honoraires TTC à la charge de l'acquéreur. Rachel PEREZ (EI) Agent Commercial - Numéro RSAC : 930 727 979 - SAINT BRIEUC.
Voir plus

Référence: 31946
Honoraires d'agence de 4.8% à la charge de l'acquéreur
Barème des honoraires
DPE
A
B
C
D
E
F
G
GES
A
B
C
D
E
F
G

Prêt immobilier

Vous souhaitez connaître votre capacité d’emprunt et trouver le meilleur crédit immobilier ?
Réaliser une simulation gratuite

Maison à PLOUBAZLANEC
Maison à PLOUBAZLANEC
Maison à PLOUBAZLANEC
Maison à PLOUBAZLANEC
Maison à PLOUBAZLANEC
Maison à PLOUBAZLANEC
Maison à PLOUBAZLANEC
Maison à PLOUBAZLANEC
Maison à PLOUBAZLANEC
Maison à PLOUBAZLANEC
Maison à PLOUBAZLANEC
Maison à PLOUBAZLANEC
Maison à PLOUBAZLANEC
Maison à PLOUBAZLANEC
Maison à PLOUBAZLANEC
Maison à PLOUBAZLANEC
Maison à PLOUBAZLANEC
Maison à PLOUBAZLANEC
Maison à PLOUBAZLANEC
Maison à PLOUBAZLANEC
Maison à PLOUBAZLANEC
Maison à PLOUBAZLANEC
Maison à PLOUBAZLANEC
Maison à PLOUBAZLANEC
Ce site est protégé par reCAPTCHA la Politique de confidentialité et les Conditions d’utilisation de Google s’appliquent.
Obtenir un prêt immobilier au meilleur taux ?

En poursuivant votre navigation sans modifier vos paramètres, vous acceptez l'utilisation de cookies susceptibles de réaliser des statistiques de visite. Cliquez ici pour plus d'informations