Bénéficiez des services de nos partenaires locaux soigneusement sélectionnés
pour vous accompagner dans votre parcours d'achat immobilier

Maison au pied du m° pleyel

— Saint-Denis 93200 —
299 000 €
85 m² / 28 m²
4 pièces
balcon/terrasse

Nos partenaires locaux
Liberkeys, via son agent spécialisé du secteur M. Nicolas Vallée vous propose de découvrir cette charmante maison à rénover entièrement de 85 m² située dans un quartier paisible de Saint-Denis. Idéalement placée à proximité du métro Pleyel, accessible en seulement 600 mètres, cette propriété séduira aussi bien les familles que les investisseurs en quête d'un cadre de vie agréable et pratique.

Maison comportant des travaux, nombreuses possibilités.
Devis effectués : entre 80.000€ et 150.000€ selon projet.

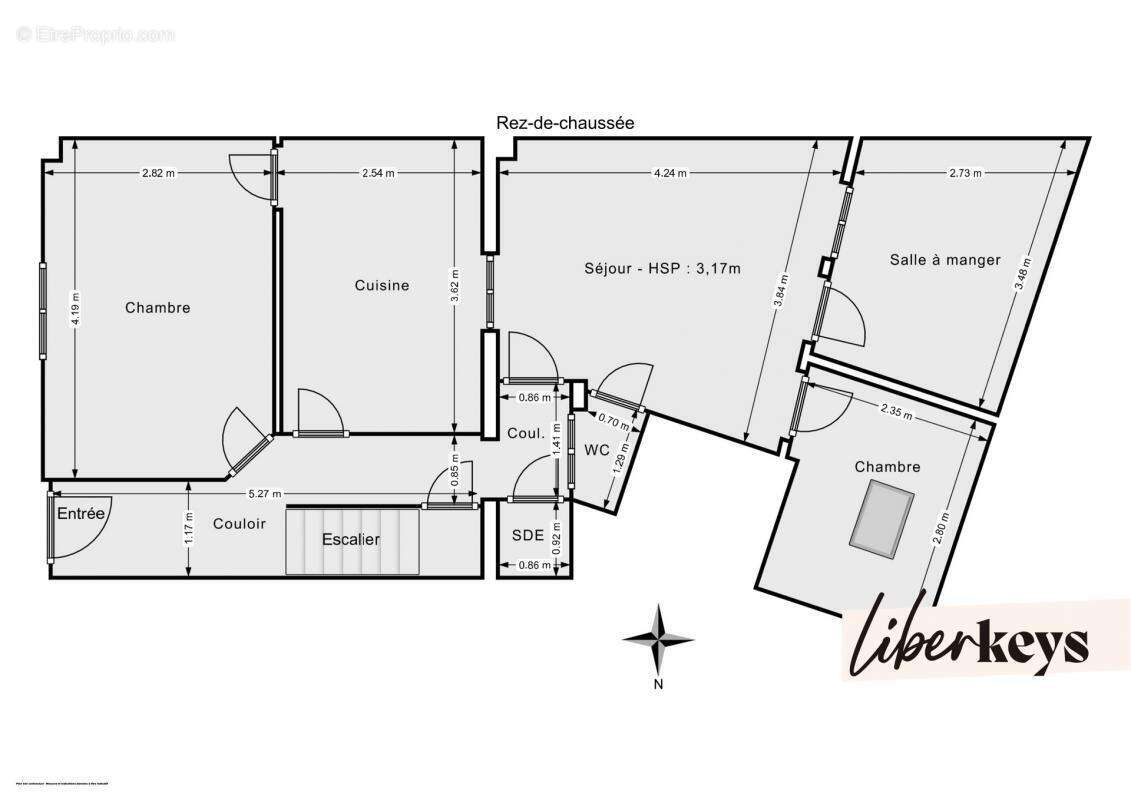
Elle comprend: entrée sur courette, au rdc : entrée, une chambre, cuisine, salle à manger, wc, salle d'eau, 2 bureaux, accès sous sol (15m²).
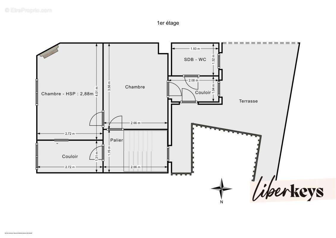
A l'étage : Cuisine, 2 chambres, une salle de bains avec wc, accès à la terrasse de 28m².
Possibilité de tous réagencer, surélevé ou de créer 2 appartements.

La localisation de cette maison est un véritable atout avec un accès rapide aux métros, commerces de proximité, restaurants et établissements scolaires de qualité. Les familles apprécieront la proximité avec les espaces verts, parfaits pour les sorties dominicales.

L'atmosphère conviviale de ce quartier est renforcée par la dynamique culturelle de Saint-Denis, à deux pas de monuments historiques tels que la Basilique Saint-Denis, pour des enrichissements culturels au quotidien.

Ce bien vous plaît ? Visitez-le virtuellement en 3D sur le site de Liberkeys ou contactez directement votre conseiller. Référence annonce : DOM11501. Date de réalisation du diagnostic : 19/12/2023. Les honoraires sont à la charge du vendeur.
Voir plus

Référence: DOM11501
Honoraires à la charge du vendeur.
DPE
A
B
C
D
E
F
G
GES
A
B
C
D
E
F
G

Prêt immobilier

Vous souhaitez connaître votre capacité d’emprunt et trouver le meilleur crédit immobilier ?
Réaliser une simulation gratuite

Maison à SAINT-DENIS
Maison à SAINT-DENIS
Maison à SAINT-DENIS
Maison à SAINT-DENIS
Maison à SAINT-DENIS
Maison à SAINT-DENIS
Maison à SAINT-DENIS
Ce site est protégé par reCAPTCHA la Politique de confidentialité et les Conditions d’utilisation de Google s’appliquent.
Obtenir un prêt immobilier au meilleur taux ?

En poursuivant votre navigation sans modifier vos paramètres, vous acceptez l'utilisation de cookies susceptibles de réaliser des statistiques de visite. Cliquez ici pour plus d'informations