Bénéficiez des services de nos partenaires locaux soigneusement sélectionnés
pour vous accompagner dans votre parcours d'achat immobilier

Local commercial 114 m2 à fréjus

— Frejus 83600 —
342 500 €
114 m²
5 pièces

Nos partenaires locaux
Nous vous proposons un local commercial de qualité, situé dans un quartier recherché de Fréjus, à proximité immédiate du bord de mer, des commerces et des axes de circulation principaux. Son emplacement stratégique, en fait un lieu idéal pour l’exercice d’une activité libérale, médicale, paramédicale ou de bien-être.
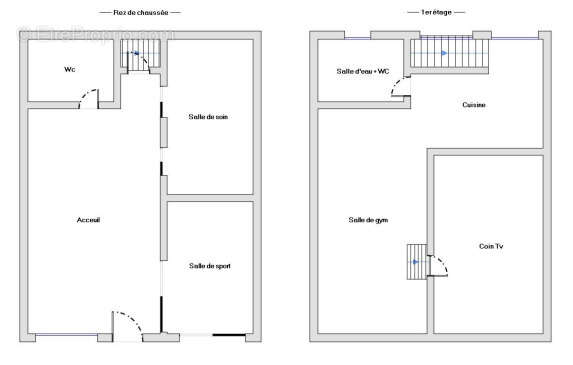
D’une superficie totale de 113.75 m2 (110 m2 Carrez), le local se développe sur deux niveaux parfaitement agencés, permettant une séparation claire entre les espaces professionnels et les espaces complémentaires.
Rez-de-chaussée :


Un espace accueil accueillant et lumineux, idéal pour recevoir la clientèle.


Une salle de sport / activité, adaptée aux pratiques corporelles, de remise en forme ou de rééducation.


Une salle de soin, parfaitement conçue pour un usage médical, paramédical ou esthétique.


Un WC indépendant.


Étage :


Une salle d’eau avec WC, moderne et fonctionnelle.


Une cuisine équipée, permettant confort et praticité au quotidien.


Deux espaces polyvalents, pouvant être aménagés en zone de stockage, bureau supplémentaire, salle de repos ou coin détente (coin TV par exemple).


Les + :


Entièrement climatisé, garantissant un confort optimal en toute saison.


Sécurité renforcée grâce à un système de vidéo-surveillance.


Aménagements permettant une exploitation immédiate, sans travaux nécessaires.


Le local bénéficie d'un emplacement privilégié, à quelques minutes du bord de mer et de ses espaces de promenade.
Le quartier, dynamique et attractif, réunit habitants, professionnels et flux de passage, offrant ainsi une excellente visibilité pour une activité libérale. La proximité des commodités, commerces et stationnements facilite l’accès pour la clientèle comme pour les praticiens.
Cette annonce vous est proposée par FROMONT Léa - - NoRSAC: 939 830 618 , Enregistré au Greffe du tribunal de commerce de Fréjus
Voir plus

Référence: 4722
Bien en copropriété. Nombre de lots : 203. Charges de copropriété : 1293 €.
Honoraires d'agence de 4.55% à la charge de l'acquéreur
Barème des honoraires
DPE
A
B
C
D
E
F
G
GES
A
B
C
D
E
F
G

Prêt immobilier

Vous souhaitez connaître votre capacité d’emprunt et trouver le meilleur crédit immobilier ?
Réaliser une simulation gratuite

Commerce à FREJUS
Commerce à FREJUS
Commerce à FREJUS
Commerce à FREJUS
Commerce à FREJUS
Commerce à FREJUS
Commerce à FREJUS
Ce site est protégé par reCAPTCHA la Politique de confidentialité et les Conditions d’utilisation de Google s’appliquent.
Obtenir un prêt immobilier au meilleur taux ?

En poursuivant votre navigation sans modifier vos paramètres, vous acceptez l'utilisation de cookies susceptibles de réaliser des statistiques de visite. Cliquez ici pour plus d'informations