Bénéficiez des services de nos partenaires locaux soigneusement sélectionnés
pour vous accompagner dans votre parcours d'achat immobilier

Locaux/biens immobiliers

— Angouleme 16000 —
158 500 €
175 m²
6 pièces

Nos partenaires locaux
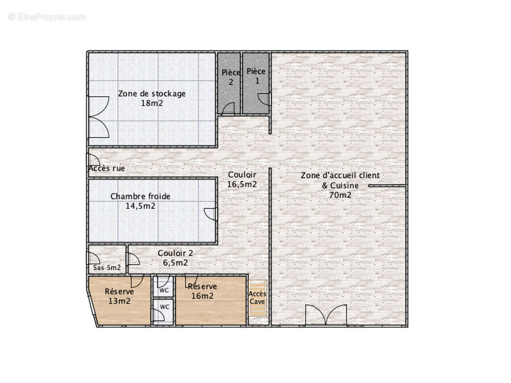
16000 ANGOULÊME – LOCAL COMMERCIAL – ANCIENNE PIZZERIA – SURFACE DU BÂTIMENT 175 M2 – CHAMBRE FROIDE – ACCÈS PMR.

Efficity, l'agence qui estime votre bien en ligne, vous propose sur la commune d'Angoulême, un local commercial de 175 m2 qui était utilisé auparavant par une pizzeria. Vous trouverez sur le local une chambre froide et le conduit d'aération de la hotte à réutiliser dans le cadre d'une activité de restauration.

Le local se compose de la manière suivante :
- L'espace client/cuisine (70 m²).
- Un espace desservant la zone technique (23 m²) avec un accès sur l'extérieur.
- Deux bureaux (3 m²) chacun.
- Une réserve (16 m²).
- Un sanitaire.
- Un vestiaire (15,5 m²) avec un second sanitaire.
- Un sas (5 m²) qui donne sur l'extérieur.
- Une pièce de stockage (18 m²) accessible depuis la rue.

Informations complémentaires :
Le bien est raccordé au réseau collectif des eaux usées.
****** Bien non soumis au DPE ******

Idéalement situé à Angoulême dans une zone dynamique. À visiter rapidement.
Contactez LOUIS-EUGÈNE Morgan au [Coordonnées masquées] ou [Coordonnées masquées]
Les informations sur les risques auxquels ce bien est exposé sont disponibles sur le site Georisque : georisques. gouv. fr
Morgan Louis-Eugene - EI - est Agent Commercial mandataire en immobilier, immatriculé au Registre Spécial des Agents Commerciaux du Tribunal de Commerce de Poitiers sous le n°910697812.
Siège social du mandant : effiCity, 48 avenue de Villiers - 75017 PARIS - Société par Actions Simplifiée, société au capital de 132 373,05 euros, immatriculée au RCS Paris 497 617 746 et titulaire de la Carte professionnelle CPI 75[Coordonnées masquées]02 025 - CCI Paris IDF - Caisse de Garantie : GALIAN Assurances 89 rue de la Boétie 75008 Paris
Voir plus

Référence: 192618
Honoraires à la charge du vendeur.
Barème des honoraires
DPE
A
B
C
D
E
F
G
GES
A
B
C
D
E
F
G

Prêt immobilier

Vous souhaitez connaître votre capacité d’emprunt et trouver le meilleur crédit immobilier ?
Réaliser une simulation gratuite

Commerce à ANGOULEME
Commerce à ANGOULEME
Commerce à ANGOULEME
Commerce à ANGOULEME
Commerce à ANGOULEME
Ce site est protégé par reCAPTCHA la Politique de confidentialité et les Conditions d’utilisation de Google s’appliquent.
Obtenir un prêt immobilier au meilleur taux ?

En poursuivant votre navigation sans modifier vos paramètres, vous acceptez l'utilisation de cookies susceptibles de réaliser des statistiques de visite. Cliquez ici pour plus d'informations