Bénéficiez des services de nos partenaires locaux soigneusement sélectionnés
pour vous accompagner dans votre parcours d'achat immobilier

Voir tous les partenaires locaux

Appartement 71m² à la rochelle

— La Rochelle 17000 —
430 000 €
71 m²
3 pièces
parking

Nos partenaires locaux
Appartement T3 de standing avec loggia et parking – Hyper centre de La Rochelle

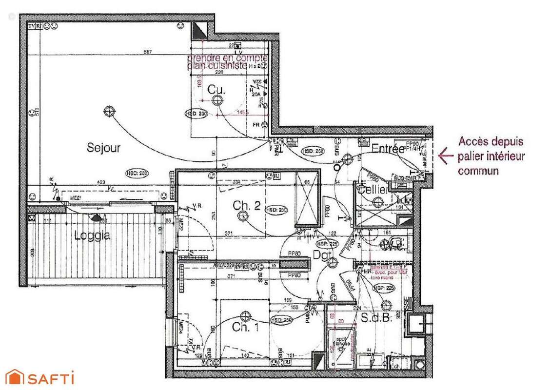
À moins de cinq minutes à pied du Marché Central et du Vieux-Port, cet appartement de 71,48 m² est situé au premier étage d'une résidence récente (2019) et sécurisée, avec ascenseur.

Il offre une entrée, un séjour lumineux ouvrant sur une loggia exposé Sud / Ouest donnant sur la cour intérieure végétalisée de la résidence (pelouse et espaces arborés), garantissant calme et intimité, une cuisine ouverte aménagée et équipée, un cellier / buanderie, ainsi qu'un coin nuit comprenant deux chambres avec placards, une salle d'eau avec douche à l'italienne et un WC indépendant avec lave-mains.

Ce bien se distingue par ses prestations modernes, notamment un système de domotique permettant de piloter à distance le chauffage et les volets. Son exposition optimale garantit une belle luminosité toute la journée.

Une place de stationnement privative en sous-sol complète l'ensemble, un atout rare en plein centre-ville.

Si vous êtes pressé de poser vos valises à La Rochelle, cet appartement est libre de toute occupation afin de vous permettre d'emménager rapidement.

Le bien comprend 2 lots, et il est situé dans une copropriété de 87 lots (les charges courantes annuelles moyennes de copropriété sont de 1377 ¤ et le syndicat des copropriétaires ne fait pas l'objet d'une procédure citée à l'article L. 721-1 du code de la construction et de l'habitation).

Les informations sur les risques auxquels ce bien est exposé sont disponibles sur le site Géorisques : www.georisques.gouv.fr
Prix de vente : 430 000 ¤
Honoraires charge vendeur

Contactez votre conseiller SAFTI : Cyrielle LE CARROUR, Tél. : [Coordonnées masquées], E-mail : [Coordonnées masquées] - EI - Agent commercial immatriculé au RSAC de LA ROCHELLE sous le numéro 890 302 771.
Informations LOI ALUR :
Soumis au régime de copropriété.
Nombre de lots : 87.
Quote part annuelle(moyenne) : 1377 euros.
Honoraires charge vendeur. (gedeon_26118_31798493)
Voir plus

Référence: 1522319
Bien en copropriété. Nombre de lots : 87. Charges de copropriété : 1377 €.
Honoraires à la charge du vendeur.
Barème des honoraires
DPE
A
B
C
D
E
F
G
GES
A
B
C
D
E
F
G

Prêt immobilier

Vous souhaitez connaître votre capacité d’emprunt et trouver le meilleur crédit immobilier ?
Réaliser une simulation gratuite

Photo 1 - Appartement à LA ROCHELLE
Photo 1
Photo 2 - Appartement à LA ROCHELLE
Photo 2
Photo 3 - Appartement à LA ROCHELLE
Photo 3
Photo 4 - Appartement à LA ROCHELLE
Photo 4
Photo 5 - Appartement à LA ROCHELLE
Photo 5
Photo 6 - Appartement à LA ROCHELLE
Photo 6
Photo 7 - Appartement à LA ROCHELLE
Photo 7
Photo 8 - Appartement à LA ROCHELLE
Photo 8
Photo 9 - Appartement à LA ROCHELLE
Photo 9
Ce site est protégé par reCAPTCHA la Politique de confidentialité et les Conditions d’utilisation de Google s’appliquent.
Obtenir un prêt immobilier au meilleur taux ?

En poursuivant votre navigation sans modifier vos paramètres, vous acceptez l'utilisation de cookies susceptibles de réaliser des statistiques de visite. Cliquez ici pour plus d'informations