Bénéficiez des services de nos partenaires locaux soigneusement sélectionnés
pour vous accompagner dans votre parcours d'achat immobilier

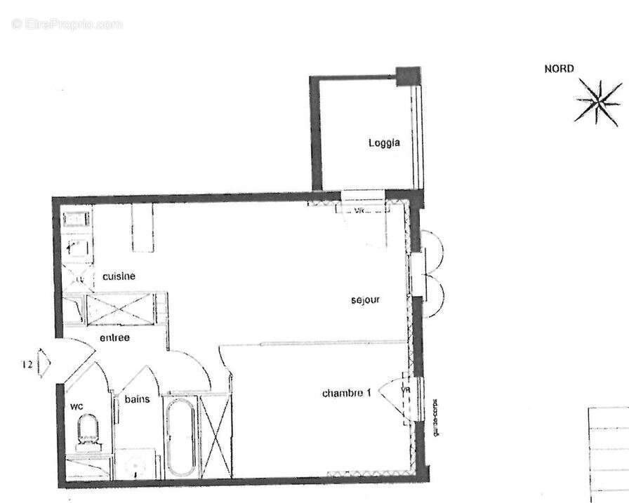
Appartement 2 pièce(s) 39.83 m2

— Cognac 16100 —
93 740 €
38 m²
2 pièces
parking

Nos partenaires locaux
AVANTIM AQUITAINE vous propose un T2 de 37.56 m² comprenant une entrée avec placard, un séjour avec cuisine ouverte aménagée et semi-équipée, une chambre et une salle de douche avec WC. Vous profiterez également d'une loggia et d'une place de parking privative. Contact : [Coordonnées masquées] DPE: D - GES: A . Taxe Foncière: 772 euros / an. Charges moyennes de copropriété: 1090 euros/ an dont 792 euros récupérables auprès du locataire. PRIX : 86 000 euros + 9% frais d'agence à la charge de l'acquéreur. Les informations sur les risques auxquels ce bien est exposé sont disponibles sur le site Géorisques : www.georisques.gouv.fr (9.00 % honoraires TTC à la charge de l'acquéreur.) Copropriété de 39 lots ().
Voir plus

Honoraires d'agence de 9% à la charge de l'acquéreur
DPE
A
B
C
D
E
F
G
GES
A
B
C
D
E
F
G

Prêt immobilier

Vous souhaitez connaître votre capacité d’emprunt et trouver le meilleur crédit immobilier ?
Réaliser une simulation gratuite

Appartement à COGNAC
Appartement à COGNAC
Appartement à COGNAC
Appartement à COGNAC
Appartement à COGNAC
Appartement à COGNAC
Appartement à COGNAC
Appartement à COGNAC
Appartement à COGNAC
Appartement à COGNAC
Appartement à COGNAC
Appartement à COGNAC
Ce site est protégé par reCAPTCHA la Politique de confidentialité et les Conditions d’utilisation de Google s’appliquent.
Obtenir un prêt immobilier au meilleur taux ?

En poursuivant votre navigation sans modifier vos paramètres, vous acceptez l'utilisation de cookies susceptibles de réaliser des statistiques de visite. Cliquez ici pour plus d'informations