Maison fonctionnelle et modulable de 131 m² et 164m² au sol - rue pierre moulie, ivry-sur-seine

— Ivry-Sur-Seine 94200 —
645 000 €
150 m² / 14 m²
6 pièces
balcon/terrasse

Cette maison de ville, niché au cœur d'une petite copropriété de 6 lots, se démarque par son caractère rare et atypique. Dissimulée derrière l'immeuble principal, elle jouit d'une tranquillité absolue grâce à sa situation en retrait sur une rue calme.

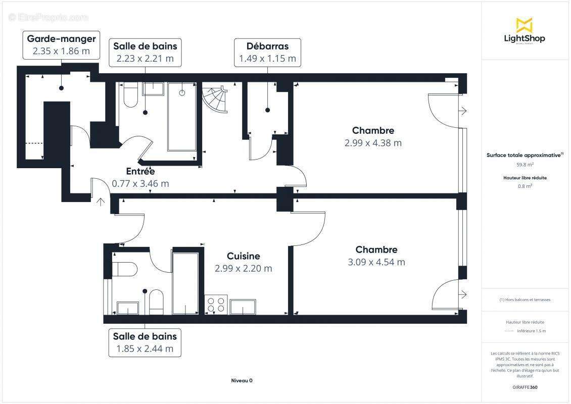
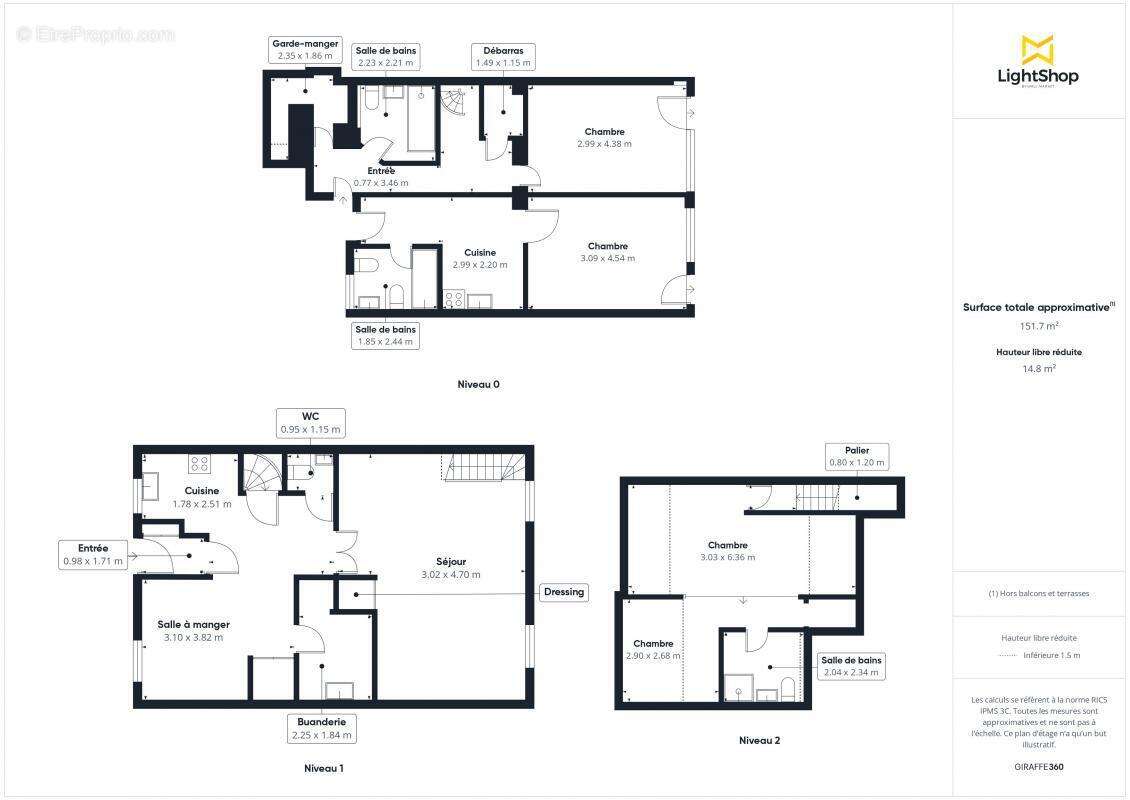
Répartie sur trois niveaux, cette demeure de 131 m² Carrez et 164 m² au sol allie avec brio charme et fonctionnalité. Initialement divisée en deux parties distinctes, elle offre des espaces extrêmement adaptables selon les modes de vie et les aspirations de ses occupants.

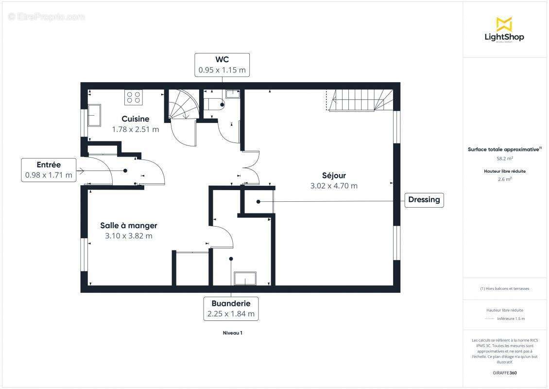
Le niveau principal de 60 m² accueille ainsi les pièces de vie communes : cuisine équipée ouverte sur la salle à manger et double séjour exposé sud-est, arrière-cuisine buanderie.

À l'étage, un bel espace climatisé de 28 m² aménagé en chambre, coin bureau et espace salle de bain.

Le premier niveau quant à lui dispose d'une chambre avec entrée indépendante, salle de bains et dressing, le tout ouvrant sur une terrasse de 12,6m².

Un studio mitoyen de 28 m², avec entrée séparée, vient compléter cette offre, offrant de multiples possibilités d'utilisation.
La terrasse est également accessible depuis le studio.

Les charges de copropriétés sont de 567€/trimestre et la taxe foncière annuelle est de 2 286 €.

Situé dans un quartier dynamique et recherché, à quelques minutes à pied du centre historique d'Ivry, cet ensemble immobilier bénéficie d'un environnement particulièrement agréable, avec de nombreux commerces, marchés et espaces verts à proximité. A 5 minutes à pied de la station de métro Pierre et Marie Curie (ligne 7) et à 8 minutes du T9, également à moins de 15 min à pied du RER C Ivry Sur Seine.

Hosman s'efforce de réinventer l'agence immobilière en offrant un service innovant et transparent aux acheteurs et aux vendeurs. Nos frais d'agence sont de 19 900 euros fixes à la charge du vendeur.

Si vous êtes un professionnel de l'immobilier (agent, mandataire ou chasseur immobilier), sachez que toutes les annonces Hosman sont ouvertes à la collaboration. N'hésitez pas à nous contacter pour en discuter.
Voir plus

Référence: e82fa2
Honoraires à la charge du vendeur.
DPE
A
B
C
D
E
F
G
GES
A
B
C
D
E
F
G

Prêt immobilier

Vous souhaitez connaître votre capacité d’emprunt et trouver le meilleur crédit immobilier ?
Réaliser une simulation gratuite

Maison à IVRY-SUR-SEINE
Maison à IVRY-SUR-SEINE
Maison à IVRY-SUR-SEINE
Maison à IVRY-SUR-SEINE
Maison à IVRY-SUR-SEINE
Maison à IVRY-SUR-SEINE
Maison à IVRY-SUR-SEINE
Maison à IVRY-SUR-SEINE
Maison à IVRY-SUR-SEINE
Maison à IVRY-SUR-SEINE
Maison à IVRY-SUR-SEINE
Maison à IVRY-SUR-SEINE
Maison à IVRY-SUR-SEINE
Maison à IVRY-SUR-SEINE
Maison à IVRY-SUR-SEINE
Maison à IVRY-SUR-SEINE
Maison à IVRY-SUR-SEINE
Maison à IVRY-SUR-SEINE
Maison à IVRY-SUR-SEINE
Maison à IVRY-SUR-SEINE
Maison à IVRY-SUR-SEINE
Maison à IVRY-SUR-SEINE
Ce site est protégé par reCAPTCHA la Politique de confidentialité et les Conditions d’utilisation de Google s’appliquent.
Obtenir un prêt immobilier au meilleur taux ?

En poursuivant votre navigation sans modifier vos paramètres, vous acceptez l'utilisation de cookies susceptibles de réaliser des statistiques de visite. Cliquez ici pour plus d'informations