Bénéficiez des services de nos partenaires locaux soigneusement sélectionnés
pour vous accompagner dans votre parcours d'achat immobilier

Nice carré d'or, superbe et atypique appartement mansardé en dernier étage

— Nice 06000 —
547 000 €
116 m²
3 pièces
ascenseur

Nos partenaires locaux
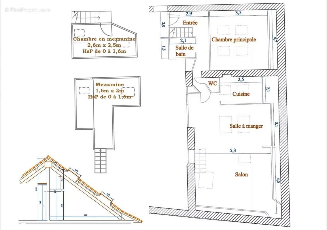
NICE CENTRE / CARRÉ D'OR : Emplacement de 1er choix coeur à 400 mètres de la mer, au 5ème et dernier étage d'un immeuble bourgeois, accessible par ascenseur jusqu'au 4ème étage situé sur la place Grimaldi, à pied de toutes commodités; commerces, bus, tramway, boutiques et restaurants.

Atypique avec un charme fou, sous les toits et mansardé avec poutres apparentes, 4 mètres de hauteur sous plafond, cette pépite offre 116 m² au sol et presque 50 m² en loi carrez.

L'entrée dessert le séjour avec cuisine ouverte équipée intégrant un ilôt central, la chambre principale avec une penderie murale et 2 grands placards sous pentes, une salle d'eau avec bains, douche et toilettes, un espace buanderie, des toilettes séparés avec lave mains.
Deux mezzanines offrent deux chambres mansardées avec lit double.

Il bénéficie d'une extrême luminosité et clarté avec 12 vélux exposés principalement Sud et Ouest équipés de volets électriques à commande vocale avec vue dégagée sur les toits.
Les prestations soignées et harmonieuses participent au sentiment de bien être dans un nid douillet, de cocooning avec une savante distribution des volumes sans perte d'espace.
Domotique, climatisation réversible, double vitrage, volets électriques et de nombreux rangements sous pentes.
Idéal pour villégiature ou investissement locatif pour profiter de la riviera.

62 lots principaux, 43 d'habitations, DPE C et C, faibles charges avec eau froide et chaude comprises, possibilité location saisonnière.
Honoraires d'agence 5% inclus à la charge du vendeur. Les informations sur les risques auxquels ce bien est exposé sont disponibles sur le site Géorisques : georisques.gouv.fr
Voir plus

Référence: TA-11224-3P
DPE
A
B
C
D
E
F
G
GES
A
B
C
D
E
F
G

Prêt immobilier

Vous souhaitez connaître votre capacité d’emprunt et trouver le meilleur crédit immobilier ?
Réaliser une simulation gratuite

Appartement à NICE
Appartement à NICE
Appartement à NICE
Appartement à NICE
Appartement à NICE
Appartement à NICE
Appartement à NICE
Appartement à NICE
Appartement à NICE
Appartement à NICE
Appartement à NICE
Appartement à NICE
Appartement à NICE
Appartement à NICE
Appartement à NICE
Appartement à NICE
Appartement à NICE
Appartement à NICE
Appartement à NICE
Appartement à NICE
Appartement à NICE
Appartement à NICE
Appartement à NICE
Appartement à NICE
Appartement à NICE
Ce site est protégé par reCAPTCHA la Politique de confidentialité et les Conditions d’utilisation de Google s’appliquent.
Obtenir un prêt immobilier au meilleur taux ?

En poursuivant votre navigation sans modifier vos paramètres, vous acceptez l'utilisation de cookies susceptibles de réaliser des statistiques de visite. Cliquez ici pour plus d'informations