Bénéficiez des services de nos partenaires locaux soigneusement sélectionnés
pour vous accompagner dans votre parcours d'achat immobilier

Saint-ouen "mairie" - 3 pieces - 349 000 fai

— Saint-Ouen 93400 —
349 000 €
49 m²
3 pièces

Nos partenaires locaux
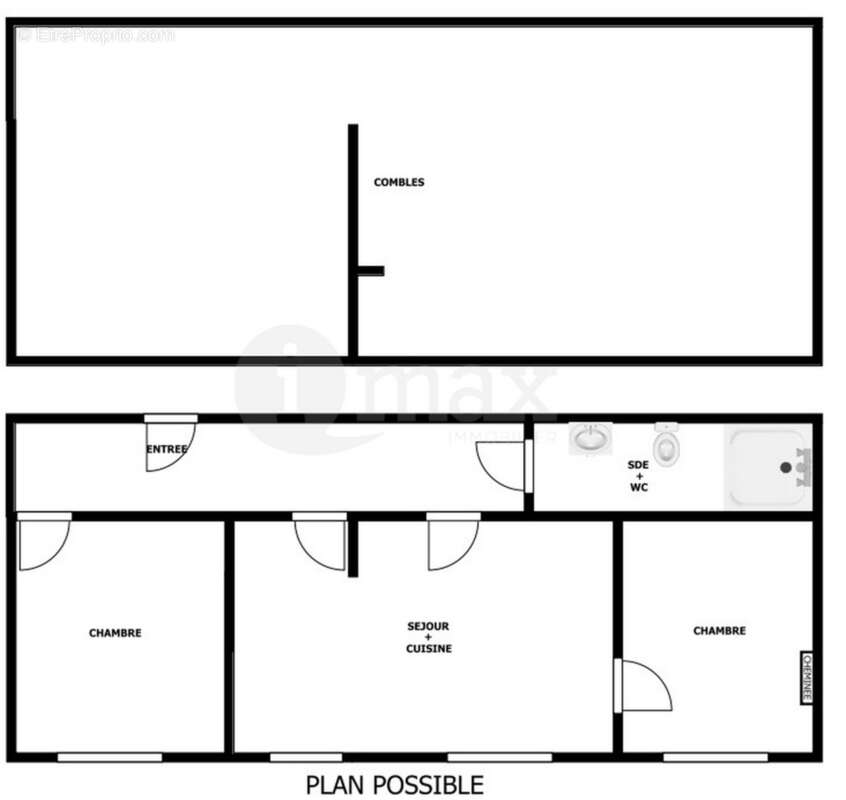
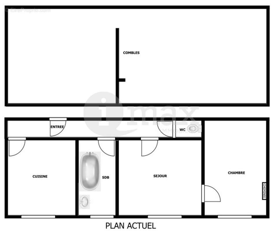
A quelques pas de la Mairie de Saint-Ouen, des commerces et du métro Mairie de Saint-Ouen (L14 et L13), au sein d'un immeuble ancien en brique et bien entretenu. Imax vous propose ce trois pièces lumineux au dernier étage. Il se compose comme suit : une entrée, un séjour avec cuisine US, de deux chambres, d'une salle de bain et d'un wc séparé. Possibilité d'aménager les combles. Mandat simple de vente : V561 - DPE EN COURS DE REALISATION (5.28 % honoraires TTC à la charge de l'acquéreur.) Copropriété de 32 lots.
Voir plus

Référence: V561
Bien en copropriété. Nombre de lots : 32. Procédure en cours.
Honoraires d'agence de 5.28% à la charge de l'acquéreur
Barème des honoraires

Prêt immobilier

Vous souhaitez connaître votre capacité d’emprunt et trouver le meilleur crédit immobilier ?
Réaliser une simulation gratuite

Appartement à SAINT-OUEN
Appartement à SAINT-OUEN
Appartement à SAINT-OUEN
Appartement à SAINT-OUEN
Appartement à SAINT-OUEN
Appartement à SAINT-OUEN
Appartement à SAINT-OUEN
Ce site est protégé par reCAPTCHA la Politique de confidentialité et les Conditions d’utilisation de Google s’appliquent.
Obtenir un prêt immobilier au meilleur taux ?

En poursuivant votre navigation sans modifier vos paramètres, vous acceptez l'utilisation de cookies susceptibles de réaliser des statistiques de visite. Cliquez ici pour plus d'informations