Bénéficiez des services de nos partenaires locaux soigneusement sélectionnés
pour vous accompagner dans votre parcours d'achat immobilier

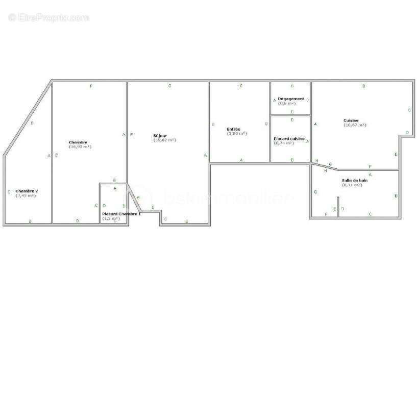
T3 à rénover – quartier châteaudun orléans (69,78 m²)

— Orleans 45000 —
140 000 €
69 m²
3 pièces

Nos partenaires locaux
À deux pas du centre-ville d'Orléans et des bords de Loire, appartement traversant de 69,78 m² au 1er étage. Séjour lumineux, cuisine indépendante, deux chambres. Travaux à prévoir, idéal projet de rénovation dans un quartier recherché.
Il comprend :
- Un séjour lumineux de 19,62 m²,
- Une cuisine indépendante de 10,67 m² avec placard attenant,
- Deux chambres dont une grande de 16,93 m² avec rangements intégrés,
- Une salle de bain de 8,71 m².
Chauffage collectif au gaz.
L'absence de copropriété garantit une gestion libre et sans charges collectives.

Pour plus d'informations ou pour organiser une visite, contactez-nous dès maintenant.

Cette annonce référence 301391 vous est présentée par votre agent commercial BSK Immobilier KARINE DESMYTER (EI) immatriculé au RSAC de ORLEANS (45000) sous le numéro 48[Coordonnées masquées]23.

Prix du bien : 140 000,00 €
Les honoraires d'agence sont à la charge du vendeur.

A propos des performances énergétiques :
Date de réalisation du diagnostic énergétique : 06/04/2023
Score DPE : 383 kWhEP/m²/an
Score GES : 84 kgepCO2/m²/an
Montant estimé des dépenses annuelles d'énergie pour un usage standard : entre 1590.00 € et 2190.00 € par an. Prix moyens des énergies indexés sur l'année 2021 (abonnements compris).

Les informations sur les risques auxquels ce bien est exposé sont disponibles sur le site Géorisques : www.georisques.gouv.fr
Voir plus

Référence: 301391
Honoraires à la charge du vendeur.
DPE
A
B
C
D
E
F
G
GES
A
B
C
D
E
F
G

Prêt immobilier

Vous souhaitez connaître votre capacité d’emprunt et trouver le meilleur crédit immobilier ?
Réaliser une simulation gratuite

Appartement à ORLEANS
Appartement à ORLEANS
Appartement à ORLEANS
Appartement à ORLEANS
Appartement à ORLEANS
Appartement à ORLEANS
Appartement à ORLEANS
Appartement à ORLEANS
Appartement à ORLEANS
Ce site est protégé par reCAPTCHA la Politique de confidentialité et les Conditions d’utilisation de Google s’appliquent.
Obtenir un prêt immobilier au meilleur taux ?

En poursuivant votre navigation sans modifier vos paramètres, vous acceptez l'utilisation de cookies susceptibles de réaliser des statistiques de visite. Cliquez ici pour plus d'informations