Bénéficiez des services de nos partenaires locaux soigneusement sélectionnés
pour vous accompagner dans votre parcours d'achat immobilier

Maison 287m² à caluire-et-cuire

— Caluire-Et-Cuire 69300 —
650 000 €
287 m² / 1 049 m²
11 pièces
jardin

Nos partenaires locaux
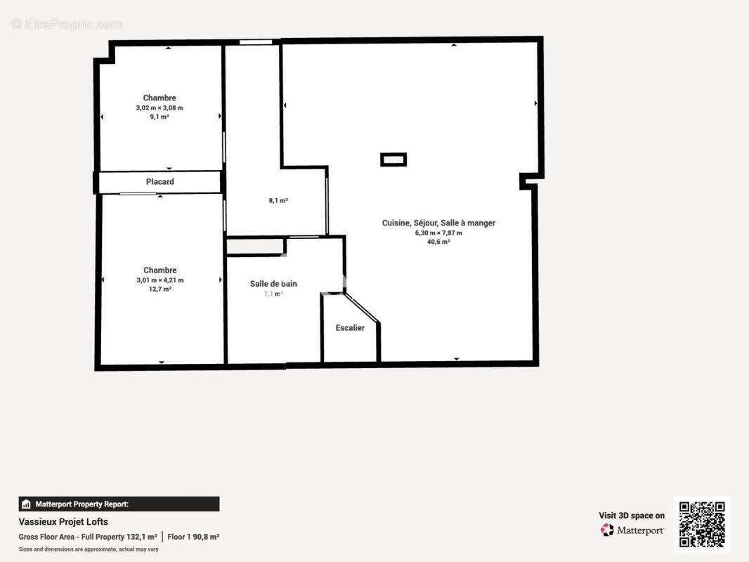
69300 CALUIRE VASSIEUX – MAISON + ENTREPÔT DIVISIBLE – 287 m² existant – PARCELLE DE 1049 m² – FORT POTENTIEL – REHABILITATION IDEAL INVESTISSEURS / MARCHANDS DE BIENS

À seulement 3 minutes du parc de la Tête d'Or et de la Cité Internationale, découvrez cette opportunité rare d'investissement à Caluire-Vassieux, secteur recherché aux portes de Lyon 6ème et de la Presqu'île, à 2 min du périphérique nord, 10 min de Cordeliers ou de la gare Part-Dieu.
Ce bien atypique de 287 m² habitables s'élève sur 3 niveaux (potentiellement 4) et se prêterait idéalement à une division en plusieurs lots.

LES ATOUTS PRINCIPAUX :
Entrepôt en RDC de 170 m² avec 4 mètres de hauteur sous plafond – idéal pour créer 2 à 3 lofts avec mezzanines.
Étage indépendant comme une maison sur toit de 91 m² Carrez (117 m² au sol), comprenant un séjour traversant, 4 chambres, 2 terrasses, et accès privatif.
Parcelle plane de 1049 m² en zone UPp du PLU-H (non constructible, mais extension possible de 50 m²).

TRAVAUX À PRÉVOIR :
Ancien siège d'une entreprise de maçonnerie, le site offre de nombreuses possibilités :
Division en plusieurs logements (3 à 4 lots potentiels) avec mise en copropriété, ou revente par lots après rénovation
Usage mixte : habitation ou bureaux + activité professionnelle
Projet de colocation haut de gamme ou coliving
Changement de destination à prévoir

Investisseurs, marchands de biens, professionnels, entrepreneurs ou promoteurs spécialisés en réhabilitation, ce bien est fait pour vous.
Ce bien plein de potentiel vous est proposé au prix de 650 000€ (honoraires d'agence inclus, à charge vendeurs).

N'hésitez pas à me contacter pour organiser une visite et découvrir cette opportunité d'investir dans l'une des communes les plus prisées de la Métropole Lyonnaise.
Les informations sur les risques auxquels ce bien est exposé sont disponibles sur le site Georisque : georisques. gouv. fr
Léonore Pillon - EI - est Agent Commercial mandataire en immobilier, immatriculé au Registre Spécial des Agents Commerciaux du Tribunal de Commerce de Lyon 2e Arrondissement sous le n°920346194.
Siège social du mandant : effiCity, 48 avenue de Villiers - 75017 PARIS - Société par Actions Simplifiée, société au capital de 132 373,05 euros, immatriculée au RCS Paris 497 617 746 et titulaire de la Carte professionnelle CPI 75[Coordonnées masquées]02 025 - CCI Paris IDF - Caisse de Garantie : GALIAN Assurances 89 rue de la Boétie 75008 Paris
Voir plus

Référence: 175128
Honoraires à la charge du vendeur.
Barème des honoraires
DPE
A
B
C
D
E
F
G
GES
A
B
C
D
E
F
G

Prêt immobilier

Vous souhaitez connaître votre capacité d’emprunt et trouver le meilleur crédit immobilier ?
Réaliser une simulation gratuite

Maison à CALUIRE-ET-CUIRE
Maison à CALUIRE-ET-CUIRE
Maison à CALUIRE-ET-CUIRE
Maison à CALUIRE-ET-CUIRE
Maison à CALUIRE-ET-CUIRE
Maison à CALUIRE-ET-CUIRE
Maison à CALUIRE-ET-CUIRE
Maison à CALUIRE-ET-CUIRE
Maison à CALUIRE-ET-CUIRE
Maison à CALUIRE-ET-CUIRE
Maison à CALUIRE-ET-CUIRE
Maison à CALUIRE-ET-CUIRE
Maison à CALUIRE-ET-CUIRE
Maison à CALUIRE-ET-CUIRE
Maison à CALUIRE-ET-CUIRE
Maison à CALUIRE-ET-CUIRE
Maison à CALUIRE-ET-CUIRE
Maison à CALUIRE-ET-CUIRE
Maison à CALUIRE-ET-CUIRE
Maison à CALUIRE-ET-CUIRE
Maison à CALUIRE-ET-CUIRE
Maison à CALUIRE-ET-CUIRE
Ce site est protégé par reCAPTCHA la Politique de confidentialité et les Conditions d’utilisation de Google s’appliquent.
Obtenir un prêt immobilier au meilleur taux ?

En poursuivant votre navigation sans modifier vos paramètres, vous acceptez l'utilisation de cookies susceptibles de réaliser des statistiques de visite. Cliquez ici pour plus d'informations