Nice nord - cyrille besset - 2p 51m² - terrasse 10m² - sud - dégagé - 210.000 €

— Nice 06100 —
210 000 €
51 m²
2 pièces
ascenseur

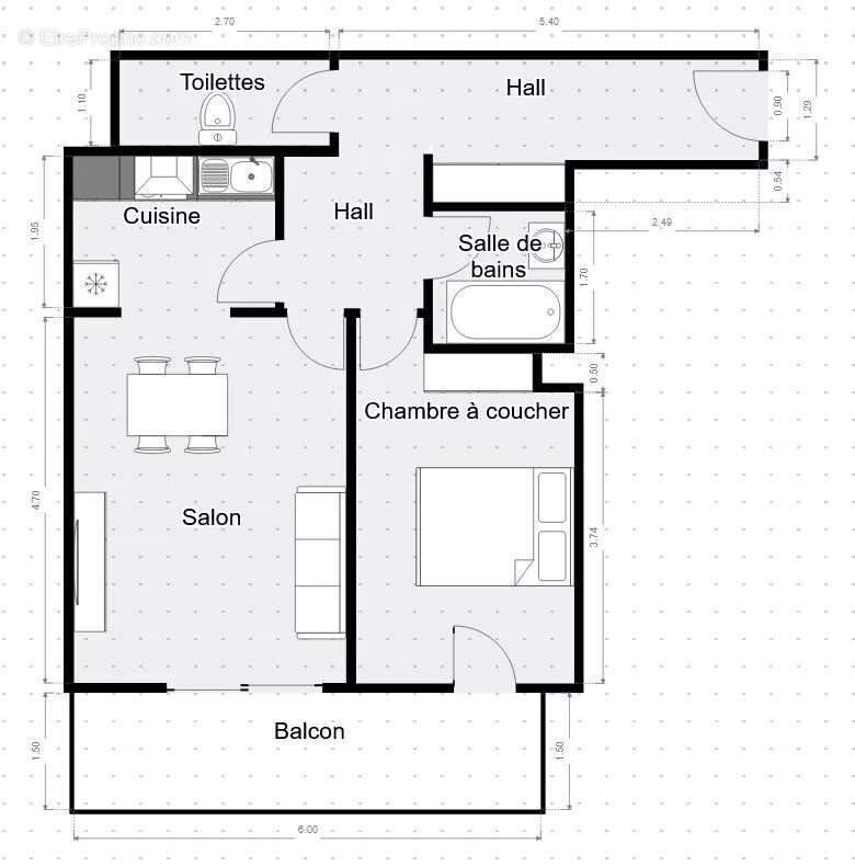
NICE NORD, Cyrille Besset, dans une impasse au calme. Au 4ème étage avec ascenseur d'un immeuble moderne. Appartement 2P de 51m² récemment rafraichie. Salon s'ouvrant sur terrasse plein Sud de 10m². Possibilité cuisine US. Vue dégagée. Très ensoleillé. Chambre avec placard. Wc séparé avec espace buanderie. Bon état général. Possibilité achat garage dans la résidence (+35.000 €)

Référence: 86194087

Prêt immobilier

Vous souhaitez connaître votre capacité d’emprunt et trouver le meilleur crédit immobilier ?
Réaliser une simulation gratuite

Appartement à NICE
Appartement à NICE
Appartement à NICE
Appartement à NICE
Appartement à NICE
Appartement à NICE
Appartement à NICE
Appartement à NICE
Ce site est protégé par reCAPTCHA la Politique de confidentialité et les Conditions d’utilisation de Google s’appliquent.
Obtenir un prêt immobilier au meilleur taux ?

En poursuivant votre navigation sans modifier vos paramètres, vous acceptez l'utilisation de cookies susceptibles de réaliser des statistiques de visite. Cliquez ici pour plus d'informations