Beausoleil, monaco: villa individuelle avec terrasse vue mer

— Beausoleil 06240 —
999 000 €
117 m² / 236 m²
6 pièces
parkingbalcon/terrasse

Charmante villa provençale a Beausoleil aux portes de Monaco vue mer. Cette superbe villa d'une superficie totale de 236 mètres carrés (Surface habitable 177 m2), sur trois niveaux avec grande terrasse au rez-de-chaussée et balcons, vous séduira par son charme, sa luminosité et sa situation exceptionnelle. Au calme, elle bénéficie d'une vue dégagée sur la mer et la végétation

Nichée dans un cadre idyllique, la villa est située sur Chemin de la Bordina, à seulement 5-7 minutes en voiture de Monaco et à 20 minute à pied de la gare de Monaco-Monte-Carlo. Une vue époustouflante depuis chaque pièce, profitez d'une vue panoramique à couper le souffle sur la mer Méditerranée et Monaco. Un spectacle quotidien qui transforme votre quotidien en vacances.

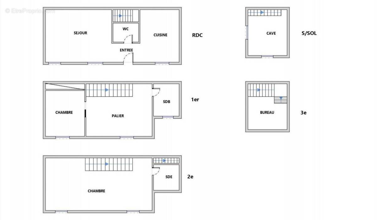
Au rez-de-chaussée : séjour, cuisine équipée, toilettes invitées de plain-pied avec la terrasse de 34m2.

Au 1er niveau: une suite parentale avec un bureau, deux balcons avec une vue mer et salle de bain.

Au 2e niveau une grande chambre lumineuse avec salles de douche et toilette. Au dernier étage petit chambre ou bureau.

Il y a plusieurs écoles (maternelle, élémentaire et collège) à moins de 10 minutes à pied. Niveau transports, on trouve deux lignes de bus (LR112 et LR100) juste à côté. Les autoroutes A500 et A8 sont accessibles à moins de 3 km et Nice se situe à 15 km.

Old style Provençal villa with a sea view in Beausoleil, close to Monaco. This superb villa, with a gross surface of 236 m² (2,600 sq ft), spread over three levels with a large ground-floor terrace and balconies, it is full of charm, brightness, and in an exceptional location. In a peaceful hill it enjoys a fantastic view of the sea and surrounding vegetation.

Nestled in an idyllic setting, the villa is located on Chemin de la Bordina, just a 5-7 minutes drive from Monaco and a 20-minutes walk from Monaco-Monte-Carlo train station. Scenic views from every room, offering a panoramic views of the Mediterranean Sea and Monaco as well as Roquebrune Cap Martin.

The villa comprises: at the ground floor: living room, equipped kitchen, guest toilet and on the same level 34m² of terrace. On the first level: a master suite and a room used as an office, two balconies with sea views, and a bathroom. On the second level, a large, bright bedroom with a shower room and toilet. On the top floor, a small bedroom or office.

Located 20 minute walk from Larvotto Beach and a 19-minute walk to Grimaldi Forum Monaco. Nearby attractions include Chapiteau of Monaco, Prince's Palace of Monaco at 4 km, Pont de Fer Beach at 1.9 km, Golfe Bleu Beach at 2.9 km Saint-Jean-Cap-Ferrat Lighthouse at 17 km.

There are several schools (nursery, elementary, and middle school) within a 10-minute walk. Regarding transportation, there are two bus lines (LR112 and LR100) right next door. The A500 and A8 motorways are less than 3 km away, and Nice is 15 km away.
Voir plus

Référence: 26-232
Honoraires à la charge du vendeur.
DPE
A
B
C
D
E
F
G
GES
A
B
C
D
E
F
G

Prêt immobilier

Vous souhaitez connaître votre capacité d’emprunt et trouver le meilleur crédit immobilier ?
Réaliser une simulation gratuite

Maison à BEAUSOLEIL
Maison à BEAUSOLEIL
Maison à BEAUSOLEIL
Maison à BEAUSOLEIL
Maison à BEAUSOLEIL
Maison à BEAUSOLEIL
Maison à BEAUSOLEIL
Maison à BEAUSOLEIL
Maison à BEAUSOLEIL
Maison à BEAUSOLEIL
Maison à BEAUSOLEIL
Maison à BEAUSOLEIL
Maison à BEAUSOLEIL
Maison à BEAUSOLEIL
Maison à BEAUSOLEIL
Ce site est protégé par reCAPTCHA la Politique de confidentialité et les Conditions d’utilisation de Google s’appliquent.
Obtenir un prêt immobilier au meilleur taux ?

En poursuivant votre navigation sans modifier vos paramètres, vous acceptez l'utilisation de cookies susceptibles de réaliser des statistiques de visite. Cliquez ici pour plus d'informations