Bénéficiez des services de nos partenaires locaux soigneusement sélectionnés
pour vous accompagner dans votre parcours d'achat immobilier

Vente maison 8 pièces de 205m² - 44470 thouaré-sur-loire

— Thouare-Sur-Loire 44470 —
499 000 €
205 m² / 736 m²
8 pièces
jardin

Nos partenaires locaux
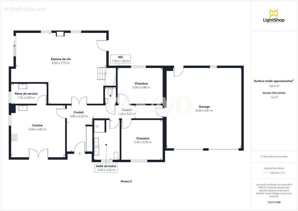
Casavo vous propose à la vente cette maison familiale de 205 m², située à deux pas du bourg, des commerces, des bords de Loire et de la gare, cette maison spacieuse et lumineuse offre un cadre de vie calme et recherché.

Au rez-de-chaussée, vous profiterez d'une entrée avec placard desservant une vaste pièce de vie avec poêle à bois, d'une cuisine équipée avec buanderie attenante, de deux chambres, d'une salle d'eau ainsi que d'un double garage avec portes motorisés.

À l'étage, vous trouverez un palier desservant trois chambres confortables et un bureau, une salle de bains, un second WC et une grande salle de jeux complétée par un atelier au-dessus du garage.

Le terrain, joliment fleuri et arboré, est aménagé avec un gazon synthétique haut de gamme qui assure un extérieur impeccable toute l'année, sans entretien contraignant.

Un aménagement virtuel de certaines pièces vous est proposé pour vous aider à vous projeter.

Ce bien est commercialisé par Casavo.

Intéressé par ce bien ? Plus d'informations sur le site de Casavo.
Voir plus

Référence: 45147
Honoraires à la charge du vendeur.
DPE
A
B
C
D
E
F
G
GES
A
B
C
D
E
F
G

Prêt immobilier

Vous souhaitez connaître votre capacité d’emprunt et trouver le meilleur crédit immobilier ?
Réaliser une simulation gratuite

Maison à THOUARE-SUR-LOIRE
Maison à THOUARE-SUR-LOIRE
Maison à THOUARE-SUR-LOIRE
Maison à THOUARE-SUR-LOIRE
Maison à THOUARE-SUR-LOIRE
Maison à THOUARE-SUR-LOIRE
Maison à THOUARE-SUR-LOIRE
Maison à THOUARE-SUR-LOIRE
Maison à THOUARE-SUR-LOIRE
Maison à THOUARE-SUR-LOIRE
Maison à THOUARE-SUR-LOIRE
Maison à THOUARE-SUR-LOIRE
Maison à THOUARE-SUR-LOIRE
Maison à THOUARE-SUR-LOIRE
Maison à THOUARE-SUR-LOIRE
Maison à THOUARE-SUR-LOIRE
Maison à THOUARE-SUR-LOIRE
Maison à THOUARE-SUR-LOIRE
Maison à THOUARE-SUR-LOIRE
Maison à THOUARE-SUR-LOIRE
Maison à THOUARE-SUR-LOIRE
Ce site est protégé par reCAPTCHA la Politique de confidentialité et les Conditions d’utilisation de Google s’appliquent.
Obtenir un prêt immobilier au meilleur taux ?

En poursuivant votre navigation sans modifier vos paramètres, vous acceptez l'utilisation de cookies susceptibles de réaliser des statistiques de visite. Cliquez ici pour plus d'informations