Local d'activité 234m2 saint-fons

— Saint-Fons 69190 —
187 000 €
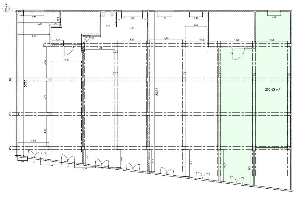
234 m²

Demarcq & Vous propose à la vente ce local d'activité et d'entrepôt de 234 m2.

Idéalement situé, à proximité immédiate des axes routiers et de la gare, ce local se trouve dans un parc récemment fermé et sécurisé par vidéo surveillance.
La rue vient d'être rénovée et de nombreuses entreprises s'installe dans cette zone qui présente de nombreux avantages.

De multiples activités de l'artisanat, de production et du service sont présentent dans la copropriété créant une bel dynamique.:

Ce lot en RDC s'adresse aux professionnels souhaitant acquérir une surface adaptée à la création de stockage, de bureaux et ou d'un lieu de production.
Il dispose d'une porte sectionnelle coté quai et d'une baie vitrée coté rue.

Il sera vendu avec un compteur Linky, un tableau électrique, une arrivée et évacuation d'eau.

Hauteur sous plafond 3,60m

Nombreux stationnements libres dans le parc.

Valeur 187 000€
Voir plus

Référence: 104
Bien en copropriété.
Barème des honoraires

Prêt immobilier

Vous souhaitez connaître votre capacité d’emprunt et trouver le meilleur crédit immobilier ?
Réaliser une simulation gratuite

Commerce à SAINT-FONS
Commerce à SAINT-FONS
Commerce à SAINT-FONS
Ce site est protégé par reCAPTCHA la Politique de confidentialité et les Conditions d’utilisation de Google s’appliquent.
Obtenir un prêt immobilier au meilleur taux ?

En poursuivant votre navigation sans modifier vos paramètres, vous acceptez l'utilisation de cookies susceptibles de réaliser des statistiques de visite. Cliquez ici pour plus d'informations