Bénéficiez des services de nos partenaires locaux soigneusement sélectionnés
pour vous accompagner dans votre parcours d'achat immobilier

Maison 114m² à ploemel

— Ploemel 56400 —
252 000 €
115 m²
6 pièces

Nos partenaires locaux
Situé au coeur du bourg de Ploemel, cet immeuble de rapport d'environ 115 m2 est issu de la réhabilitation d'une maison à étage avec boutique au rez-de-chaussée datant du 18e siècle.

C'est en 1996 que cette maison historique en pierres sous ardoises fut aménagée de trois appartements confortables sur 3 niveaux. Un T2 au rez-de-chaussée offrant une vie de plain-pied, et deux T2 type duplex au 1er étage, accessible par un escalier en pierre symétrique de cinq marches.

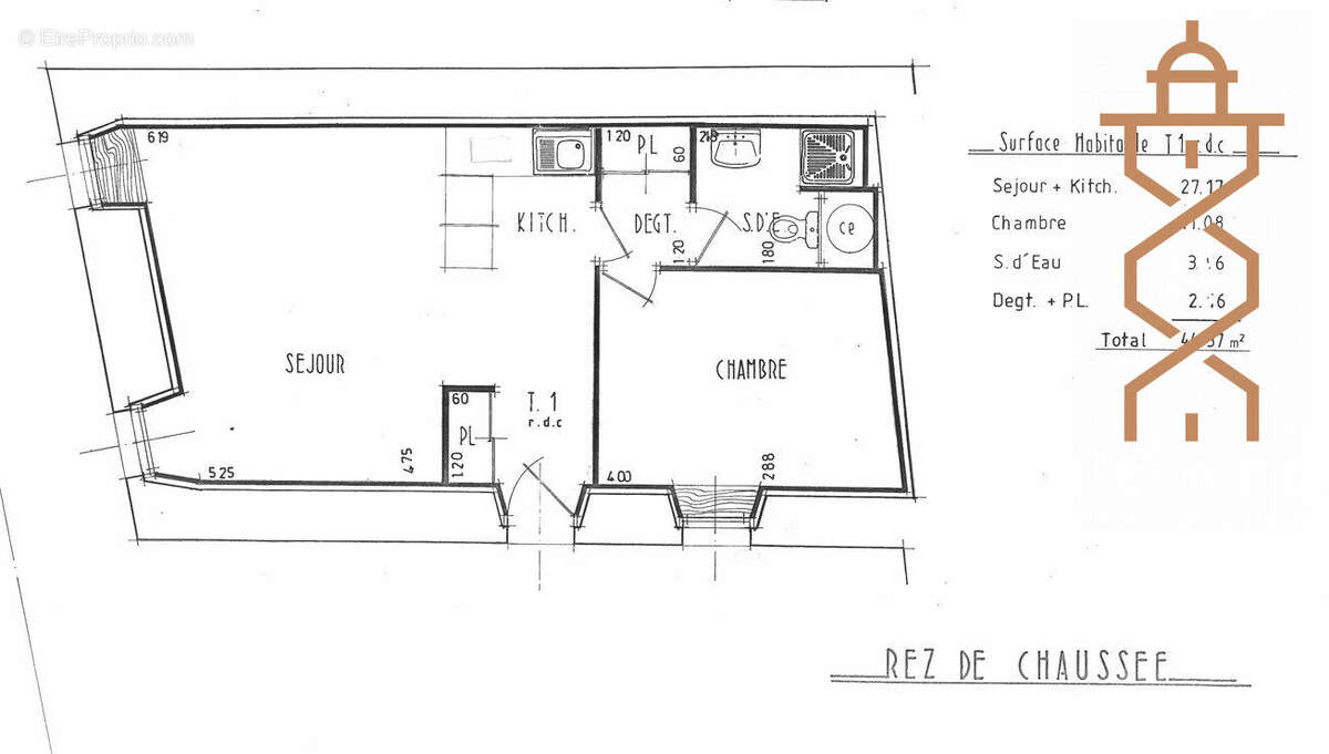
Le logement du rez-de-chaussée d'environ 44 m2 propose : entrée avec placard, séjour avec cuisine équipée, dégagement avec placard, chambre et une salle d'eau avec WC.
Au 1er étage à gauche, un logement sur deux niveaux d'environ 36 m2 propose : entrée avec placard, séjour avec cuisine équipée, et un escalier en bois mène à la chambre avec salle d'eau et WC, sous combles.
Au 1er étage à droite, un logement sur deux niveaux d'environ 34 m2 propose : séjour avec placard et cuisine équipée, et un escalier en bois mène à la chambre avec salle d'eau et WC, sous combles.

Vendu loué et idéalement situé avec accès direct aux commerces, aux écoles et aux transports, ce bien offre une réelle opportunité pour un investissement locatif serein, à seulement 10 minutes de la gare TGV d'Auray et de la Ria d'Etel, et à moins d'1/4 d'heure des plages de l'Océan.

CLASSE ÉNERGIE : E / CLASSE CLIMAT : B
Montant moyen estimé des dépenses annuelles d'énergie pour un usage standard, établi à partir des prix de l'énergie de l'année 2021 : entre 1 000 € et 1 400 €, pour le plus grand logement.

Les informations sur les risques auxquels ce bien est exposé sont disponibles sur le site Géorisques : www.georisques.gouv.fr

Honoraires inclus de 5% TTC à la charge de l'acquéreur. Prix hors honoraires 240 000 €. Classe énergie E, Classe climat B Montant estimé des dépenses annuelles d'énergie pour un usage standard : entre 1000.00 € et 1400.00 € sur les années 2021, 2022 et 2023 (abonnements compris). Les informations sur les risques auxquels ce bien est exposé sont disponibles sur le site Géorisques : georisques.gouv.fr.
Voir plus

Référence: TR250807-LEBEC
Honoraires d'agence de 5% à la charge de l'acquéreur
Barème des honoraires
DPE
A
B
C
D
E
F
G
GES
A
B
C
D
E
F
G

Prêt immobilier

Vous souhaitez connaître votre capacité d’emprunt et trouver le meilleur crédit immobilier ?
Réaliser une simulation gratuite

Maison à PLOEMEL
Maison à PLOEMEL
Maison à PLOEMEL
Maison à PLOEMEL
Maison à PLOEMEL
Maison à PLOEMEL
Maison à PLOEMEL
Maison à PLOEMEL
Maison à PLOEMEL
Ce site est protégé par reCAPTCHA la Politique de confidentialité et les Conditions d’utilisation de Google s’appliquent.
Obtenir un prêt immobilier au meilleur taux ?

En poursuivant votre navigation sans modifier vos paramètres, vous acceptez l'utilisation de cookies susceptibles de réaliser des statistiques de visite. Cliquez ici pour plus d'informations