Bénéficiez des services de nos partenaires locaux soigneusement sélectionnés
pour vous accompagner dans votre parcours d'achat immobilier

Propriété 10 pièces (8 chambres) 205m² à vallet

— Vallet 44330 —
450 000 €
205 m² / 6 127 m²
10 pièces
parkingbalcon/terrassejardin

Nos partenaires locaux
Propriété 10 pièces (8 chambres) 205m² à VALLET
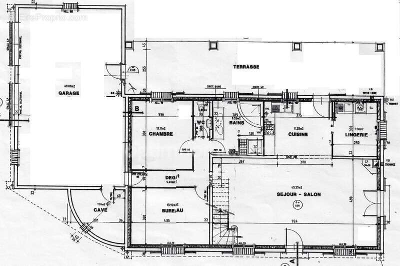
Propriété atypique située au calme de sa campagne à 10 minutes de Vallet. Édifiée en 2000 avec un esprit longère, elle bénéficie d'une parcelle de plus de 6 000 m², une aire de stationnement privative. Idéale pour une grande famille, recevoir ses amis, faire de l'hébergement (maison d'hôtes, Location de vacances …). Elle se répartit sur 2 niveaux comme suit :
RdC : Entrée sur belle pièce de Vie ouverte sur Cuisine et Préau, Arrière Cuisine / Buanderie, Dégagement, 2 Chambres, Toilettes, Salle de bains / Salle d'eau, Atelier, Cave, double Garage, Préau orientée Sud-est.
Étage : Couloir / Dégagement desservant 6 Chambres, Salle d'eau et WC.
VISITE VIRTUELLE DISPONIBLE APRÈS ÉCHANGE TÉLÉPHONIQUE.
PLAN REMIS LORS DE CHAQUE VISITE POUR LES CLIENTS POTENTIELLEMENT SUSCEPTIBLES DE SE POSITIONNER.

Côté prestations :
Menuiseries bois double vitrage avec Volets battants au RdC et Volets roulants électriques sur les fenêtres de toits.
PAC géothermie assurant le chauffage au sol pour le RdC, chauffage électrique à l'étage,
Production d'Eau Chaude Sanitaire individuelle (chauffe-eau,
Panneau photovoltaïque de 2024 assurant en grande partie la consommation d'énergie électrique.
Côté jardin : Pommiers, prunier, noisetier, noyer, cognassier, mûrier, framboisier, cassissier, groseiller.
Côté finances : Taxes Foncières 1 401€
Côté transports :
Gare du Pallet à 15 minutes avec liaison TER pour Nantes.
Nantes - Gare TGV de Nantes à 34 minutes en voiture, Aéroport de Nantes-Atlantique à 40 minutes en voiture.
Ancenis – Gare SNCF d'Ancenis à 27 minutes en voiture
Côté Internet : Fibre jusqu'à 2 Gbit/s en réception et 800 Mbit/s en envoie.
Côté scolarité :
Ecole primaire la plus proche 800 mètres.
Plusieurs collèges à moins de 20 minutes (desservi par les transports scolaires).
Villes les plus proches :
Gesté à 5 minutes, Vallet à 12 minutes, Beaupréau à 19 minutes, Chollet à 30 minutes, Nantes à 40 minutes, Angers à 65 minutes.
Les honoraires sont à la charge du vendeur.
Les informations sur les risques auxquels ce bien est exposé sont disponibles sur le site Géorisques : www. georisques. gouv. fr.

Contactez Pascal ROGER Entrepreneur Individuel, Agent commercial OptimHome (RSAC N°490 791 456 Greffe de NANTES) [Coordonnées masquées] (réf. 591875 )
Voir plus

Référence: 830032903778
Honoraires à la charge du vendeur.
DPE
A
B
C
D
E
F
G
GES
A
B
C
D
E
F
G

Prêt immobilier

Vous souhaitez connaître votre capacité d’emprunt et trouver le meilleur crédit immobilier ?
Réaliser une simulation gratuite

Maison à VALLET
Maison à VALLET
Maison à VALLET
Maison à VALLET
Maison à VALLET
Maison à VALLET
Maison à VALLET
Maison à VALLET
Maison à VALLET
Maison à VALLET
Maison à VALLET
Maison à VALLET
Maison à VALLET
Maison à VALLET
Maison à VALLET
Maison à VALLET
Maison à VALLET
Ce site est protégé par reCAPTCHA la Politique de confidentialité et les Conditions d’utilisation de Google s’appliquent.
Obtenir un prêt immobilier au meilleur taux ?

En poursuivant votre navigation sans modifier vos paramètres, vous acceptez l'utilisation de cookies susceptibles de réaliser des statistiques de visite. Cliquez ici pour plus d'informations