Bénéficiez des services de nos partenaires locaux soigneusement sélectionnés
pour vous accompagner dans votre parcours d'achat immobilier

Appartement

— Paris-17e 75017 —
950 000 €
100 m²
4 pièces
ascenseur

Nos partenaires locaux
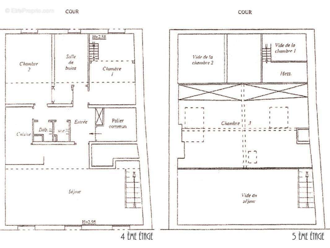
Paris 17ᵉ - PEREIRE/TOCQUEVILLE - Dernier étage lumineux - Appartement de 119 m² au sol/85m² Carrez aux volumes atypiques -

Rue de Tocqueville, à mi-chemin entre les quartiers commerçant de Tocqueville-Lévis et vivant du Pont Cardinet (Batignolles), découvrez cet appartement lumineux, situé au 4ème et dernier étage (ascenseur jusqu'au 3ème) d'un immeuble ancien sécurisé.

Développant 119 m² au sol (85 m² Carrez) sur deux niveaux, il propose :
- Un grand séjour cathédrale de 41 m², traversant et baigné de lumière, avec 4 mètres de hauteur sous plafond et poutres apparentes,
- Une cuisine ouverte et équipée, au cœur de l'appartement,
- Deux chambres, sans vis à vis, de plus de 11m² (une bénéficie en plus d'une mezzanine de 3m²),
- Une grande salle de bain avec baignoire, douche et WC séparés.
- À l'étage, en mezzanine une vaste chambre parentale spacieuse de 38 m² au sol, avec espace bureau et de très nombreux rangements sur mesure,

Atouts supplémentaires:
- Dernier étage calme,
- Appartement traversant très lumineux,
- Volumes atypiques et ambiance chaleureuse,
- Possibilité d'aménager une quatrième chambre,
- Espace de stockage privatif dans le local commun,
- Parc Martin Luther King a moins de 10 mn à pied,
- Possibilité de louer une place de parking à quelques numéros,
- Le DPE en E

Situation:
À quelques pas des quartiers Tocqueville-Lévis et du Pont Cardinet, dans un environnement résidentiel agréable, cet appartement bénéficie d'un accès rapide aux commerces de proximité, à la Coulée Verte Pereire et au Parc Martin Luther King, un espace vert idéal pour promenades et activités sportives, ainsi qu'à une excellente desserte en transports :
Métro Ligne 3 (Wagram), Tramway T3b, RER C, Ligne 14 (Pont Cardinet à moins de 10 minutes à pied).

Informations pratiques:
Surface : 85 m² Carrez (119 m² au sol), Charges de copropriété : 950 €/trimestre, Taxe foncière : 1 975 €/an, Chauffage individuel électrique, DPE : Classe E.

Magnifiques volumes, lumière omniprésente, plan en étoile sans perte de place et cadre de vie pratique et convivial dans le 17ᵉ arrondissement.
Un bien rare et idéal pour ceux qui recherchent un lieu de vie spacieux, atypique et parfaitement desservi.
Contactez-moi pour plus d'informations et organiser une visite !
Les informations sur les risques auxquels ce bien est exposé sont disponibles sur le site Georisque : georisques. gouv. fr
Joelle Perrody - EI - est Agent Commercial mandataire en immobilier, immatriculé au Registre Spécial des Agents Commerciaux du Tribunal de Commerce de Paris sous le n°883216384.
Siège social du mandant : effiCity, 48 avenue de Villiers - 75017 PARIS - Société par Actions Simplifiée, société au capital de 132 373,05 euros, immatriculée au RCS Paris 497 617 746 et titulaire de la Carte professionnelle CPI 75[Coordonnées masquées]02 025 - CCI Paris IDF - Caisse de Garantie : GALIAN Assurances 89 rue de la Boétie 75008 Paris
Voir plus

Référence: 192707
Bien en copropriété. Nombre de lots : 9. Charges de copropriété : 350 €.
Honoraires à la charge du vendeur.
Barème des honoraires
DPE
A
B
C
D
E
F
G
GES
A
B
C
D
E
F
G

Prêt immobilier

Vous souhaitez connaître votre capacité d’emprunt et trouver le meilleur crédit immobilier ?
Réaliser une simulation gratuite

Appartement à PARIS-17E
Appartement à PARIS-17E
Appartement à PARIS-17E
Appartement à PARIS-17E
Appartement à PARIS-17E
Appartement à PARIS-17E
Appartement à PARIS-17E
Appartement à PARIS-17E
Appartement à PARIS-17E
Appartement à PARIS-17E
Appartement à PARIS-17E
Appartement à PARIS-17E
Appartement à PARIS-17E
Appartement à PARIS-17E
Ce site est protégé par reCAPTCHA la Politique de confidentialité et les Conditions d’utilisation de Google s’appliquent.
Obtenir un prêt immobilier au meilleur taux ?

En poursuivant votre navigation sans modifier vos paramètres, vous acceptez l'utilisation de cookies susceptibles de réaliser des statistiques de visite. Cliquez ici pour plus d'informations